← Ribble Valley Borough Council

Status

Decided - Final Decision Demolition
Received
11 Nov 2024
New homes
0

Full proposal

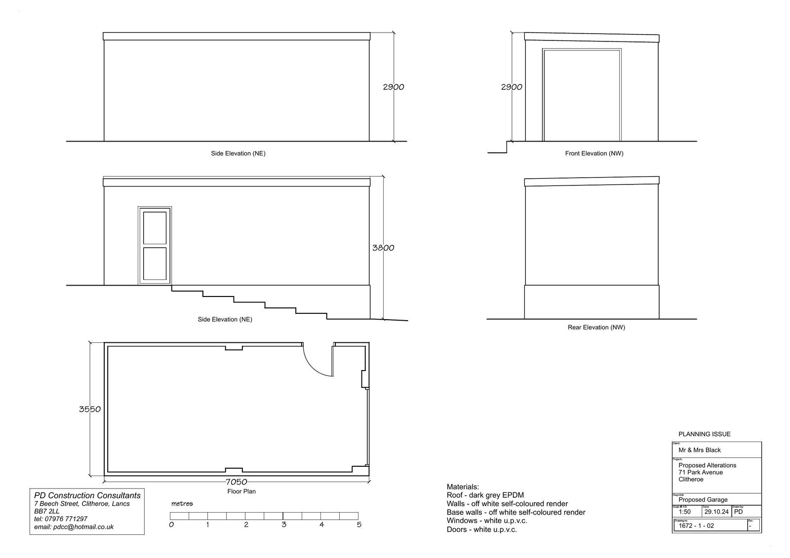
Applications for full consent Proposed demolition of existing detached garage and construction of new detached garage to rear.

Documents

Document
Archived · Original link
24 0931 Delegated Report.docx
Document
Not yet archived · Original link
Document
Archived · Original link
Document
Archived · Original link
Document
Archived · Original link

Have your say

Your comment matters. Councils must consider every representation that raises material planning considerations.

Write a comment