← Ribble Valley Borough Council

Status

Decided - Final Decision Change of use
Received
13 Nov 2024
New homes
3

Full proposal

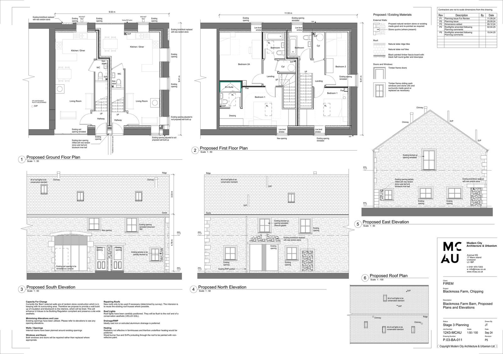
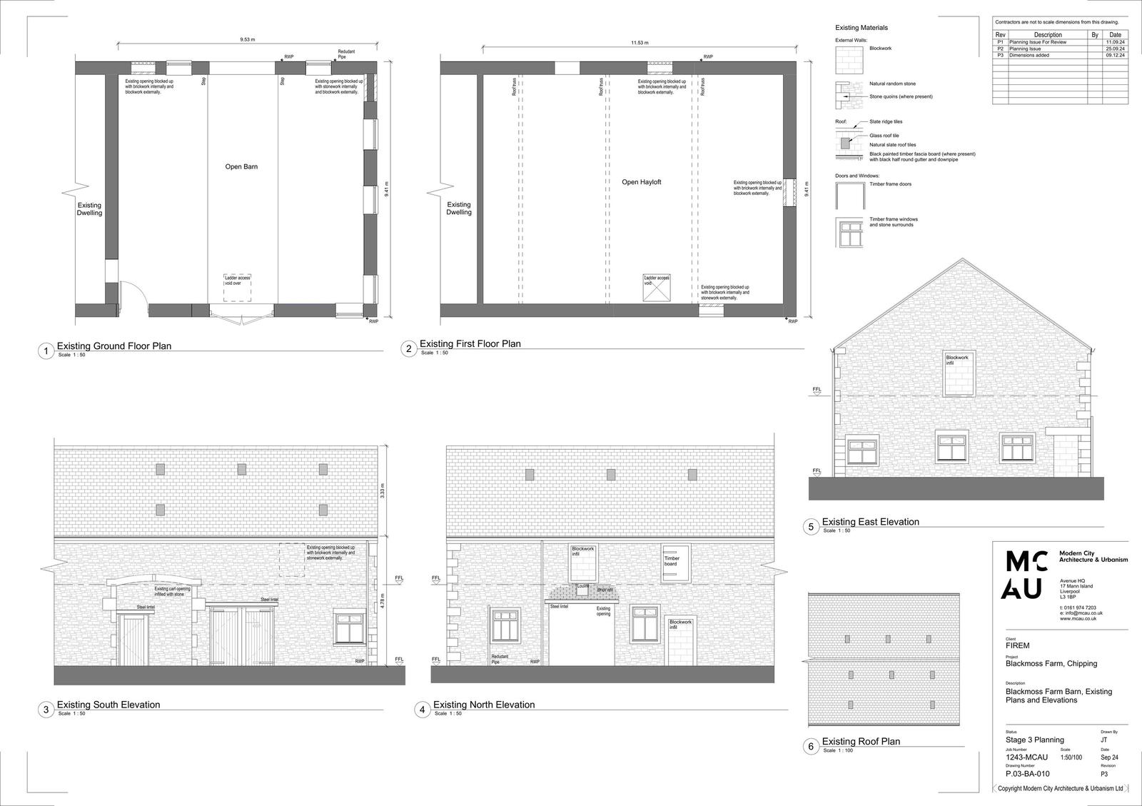
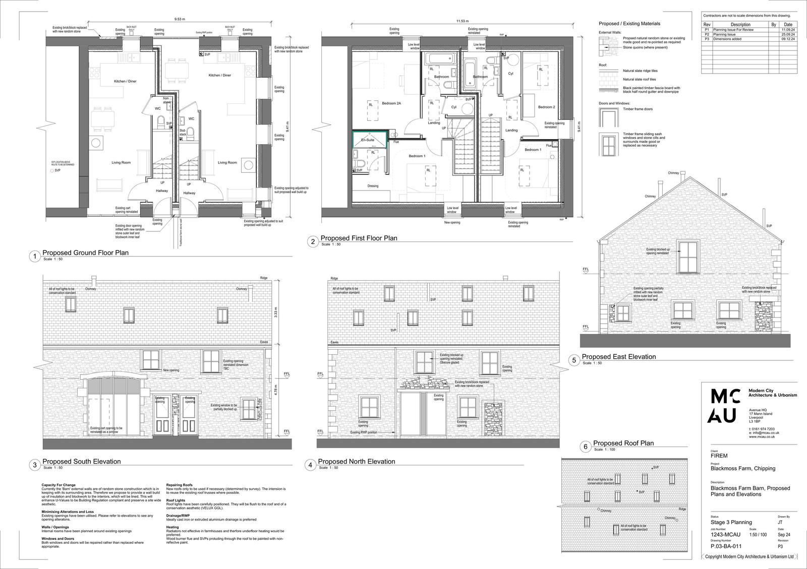
Applications for full consent Proposed conversion of two stone barns to create three holiday cottages with associated curtilages. Erection of fencing and pedestrian gate.

Documents

Document
Archived · Original link
Document
Archived · Original link
Document
Archived · Original link
24 0942 Delegated Report.docx
Document
Not yet archived · Original link
Document
Archived · Original link
Document
Archived · Original link
Document
Archived · Original link
Document
Archived · Original link
Document
Archived · Original link
Document
Archived · Original link

Have your say

Your comment matters. Councils must consider every representation that raises material planning considerations.

Write a comment