← Ribble Valley Borough Council
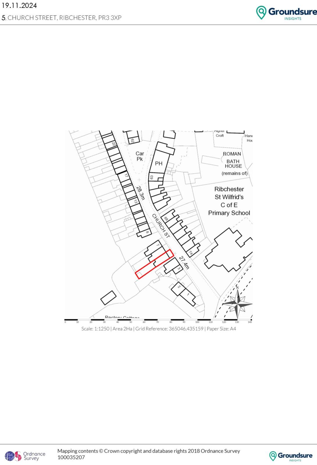
3/2024/0963
Ribble Valley Borough Council
Status
Decided - Final Decision
House extension
Received
20 Nov 2024
New homes
0
Full proposal
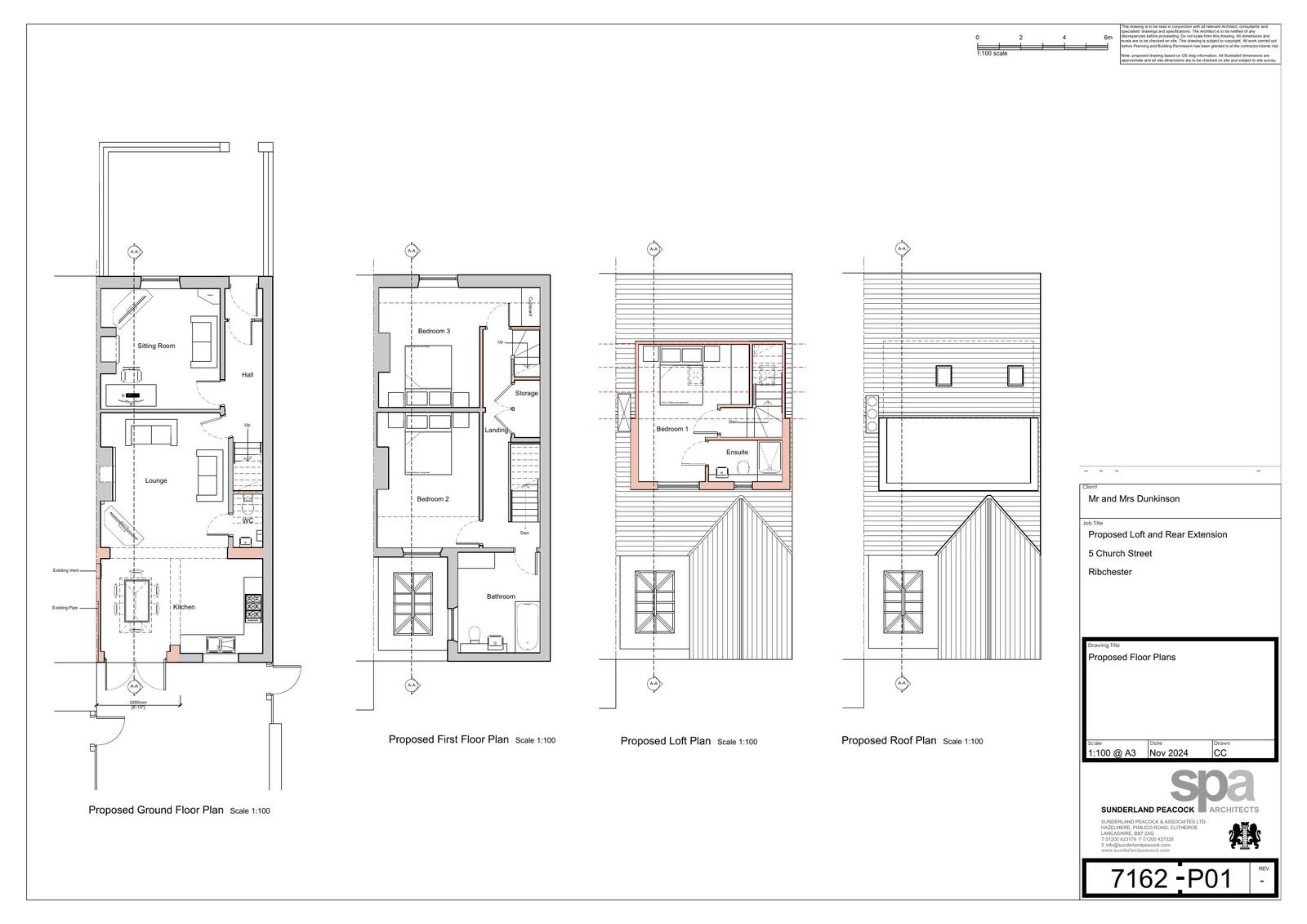
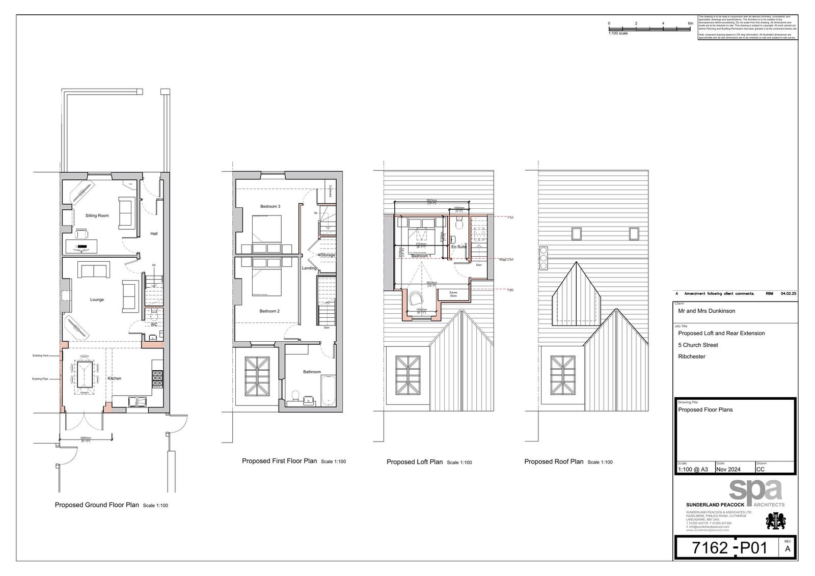
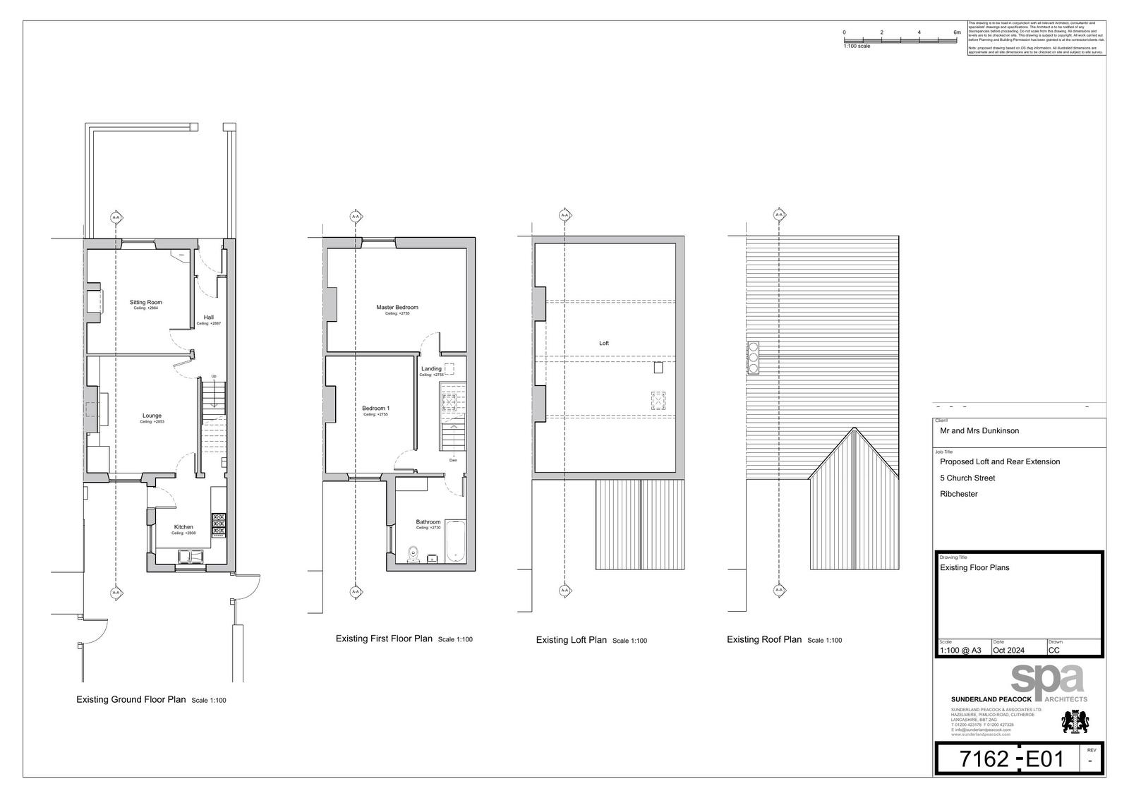
Applications for full consent Proposed conversion of loft and insertion of new dormer to rear and two conservation rooflights to front. Single storey extension to rear.
Documents
Have your say
Your comment matters. Councils must consider every representation that raises material planning considerations.