← Ribble Valley Borough Council

Status

Decided - Final Decision Agricultural
Received
22 Nov 2024
New homes
0

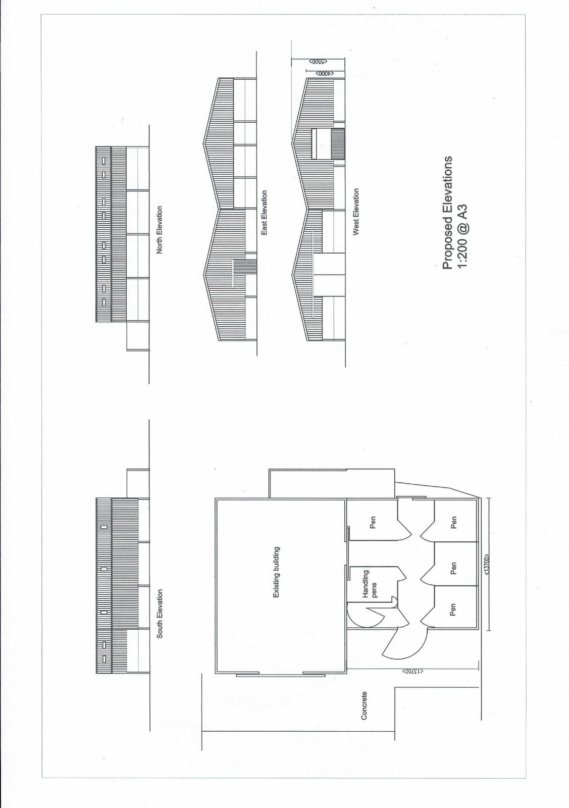
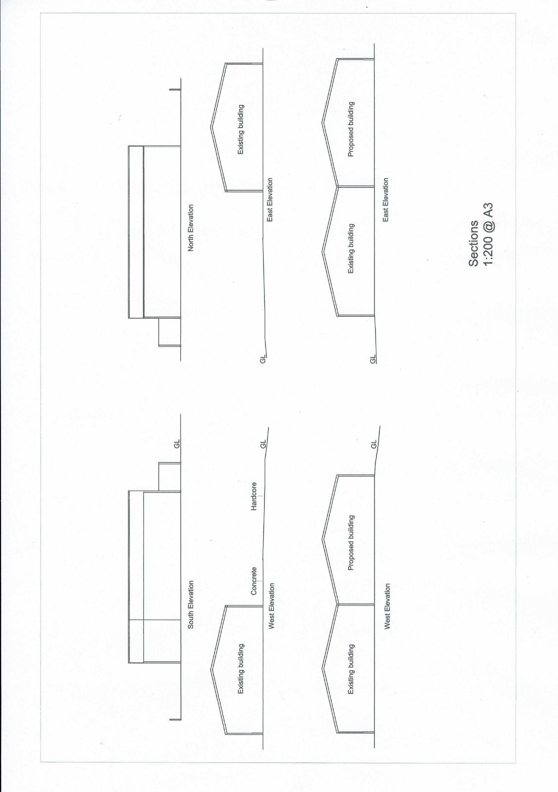
Full proposal

Applications for full consent Proposed construction of an agricultural building for sheep housing.

Documents

Document
Archived · Original link
24 0967 Delegated Report.docx
Document
Not yet archived · Original link
Document
Archived · Original link
Document
Archived · Original link

Have your say

Your comment matters. Councils must consider every representation that raises material planning considerations.

Write a comment