← Ribble Valley Borough Council
3/2024/0981
Ribble Valley Borough Council
Status
Decided - Final Decision
Change of use
Received
28 Nov 2024
New homes
1
Full proposal
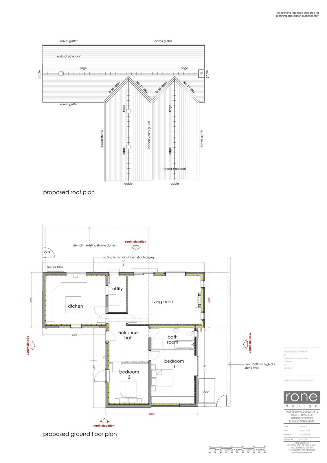
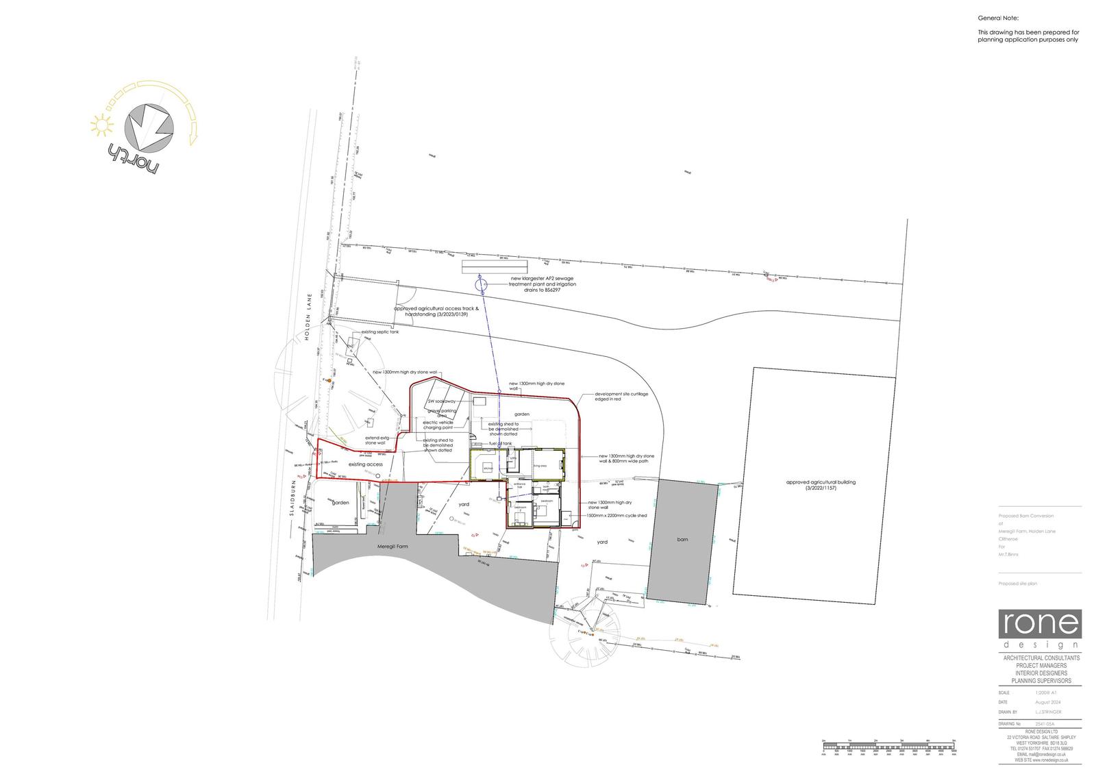
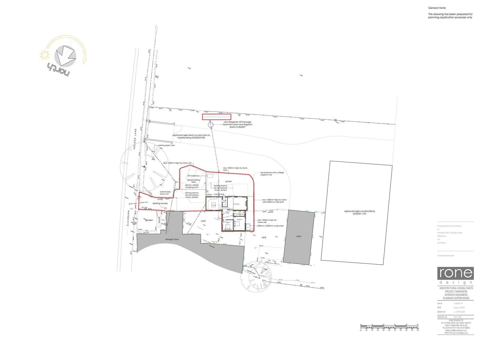
Applications for full consent Conversion of and extension of agricultural building to one self-build two-bedroom dwelling and formation of residential curtilage (resubmission of 3/2024/0674).
Documents
Have your say
Your comment matters. Councils must consider every representation that raises material planning considerations.