← Ribble Valley Borough Council

Status

Decided - Final Decision Change of use
Received
06 Dec 2024
New homes
8

Full proposal

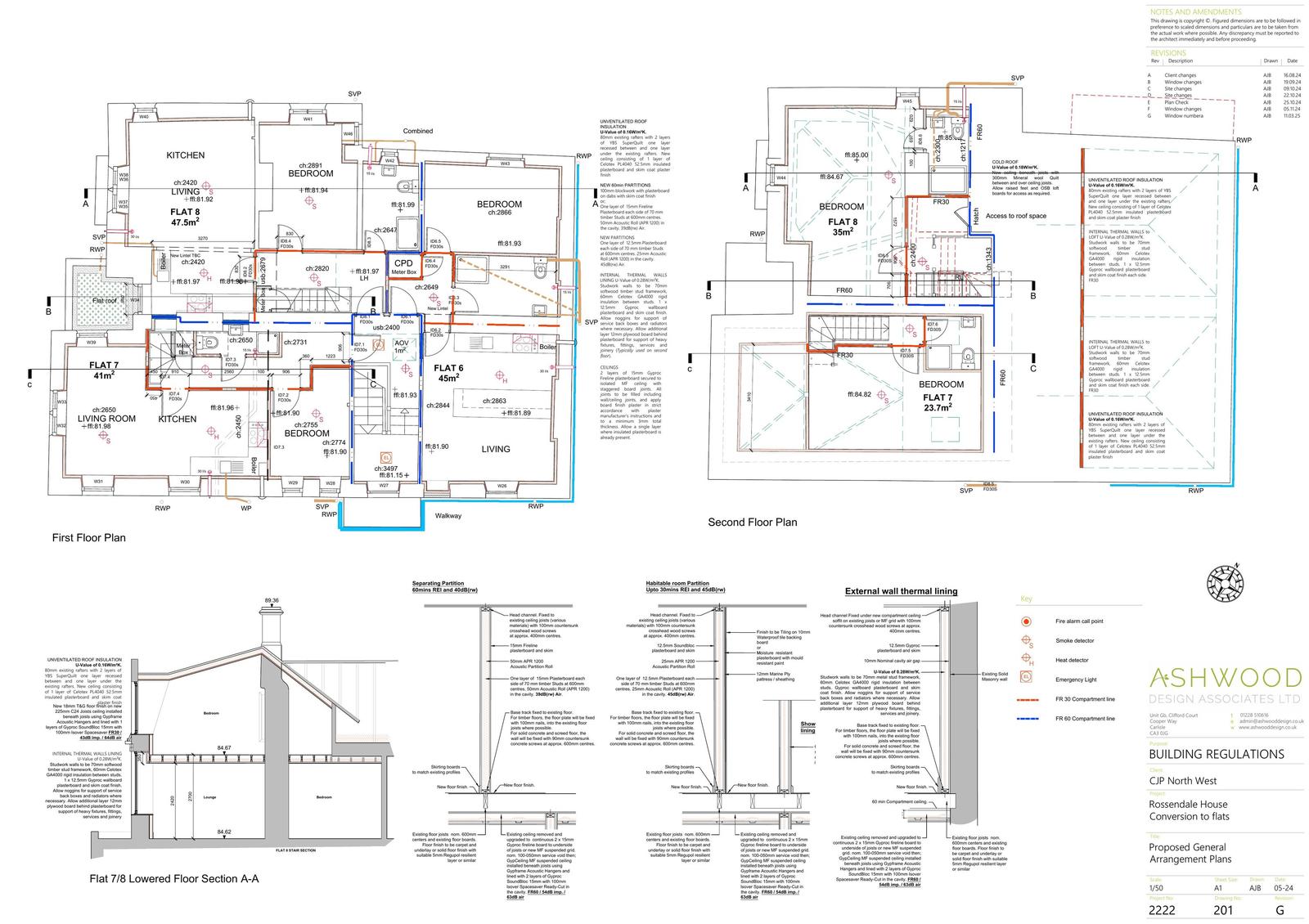
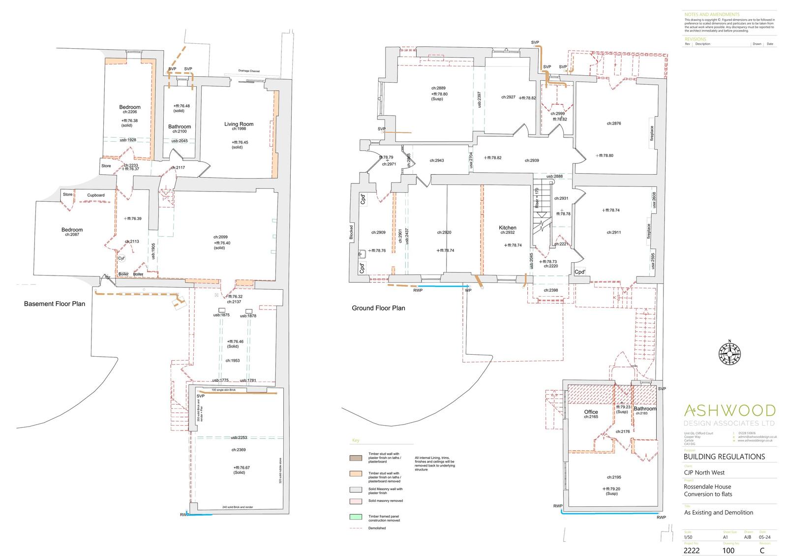
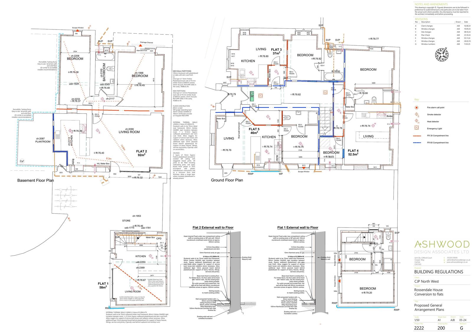
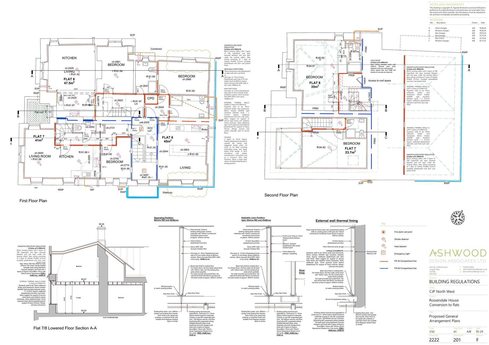
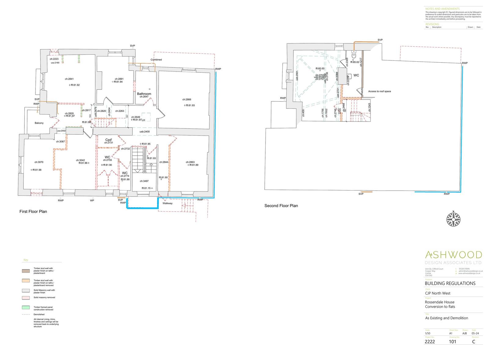
Applications for full consent Proposed change of use from nursery to eight flats (C3) comprising three two-bedroom units and five one-bedroom units. Amendments to details approved under 3/2023/0827.

Documents

Document
Archived · Original link
24 0999 Delegated Report.docx
Document
Not yet archived · Original link
Document
Archived · Original link
Document
Archived · Original link
Document
Archived · Original link

Have your say

Your comment matters. Councils must consider every representation that raises material planning considerations.

Write a comment