← Ribble Valley Borough Council

Status

APPEAL LODGED Other
Received
13 Dec 2024
New homes
0

Full proposal

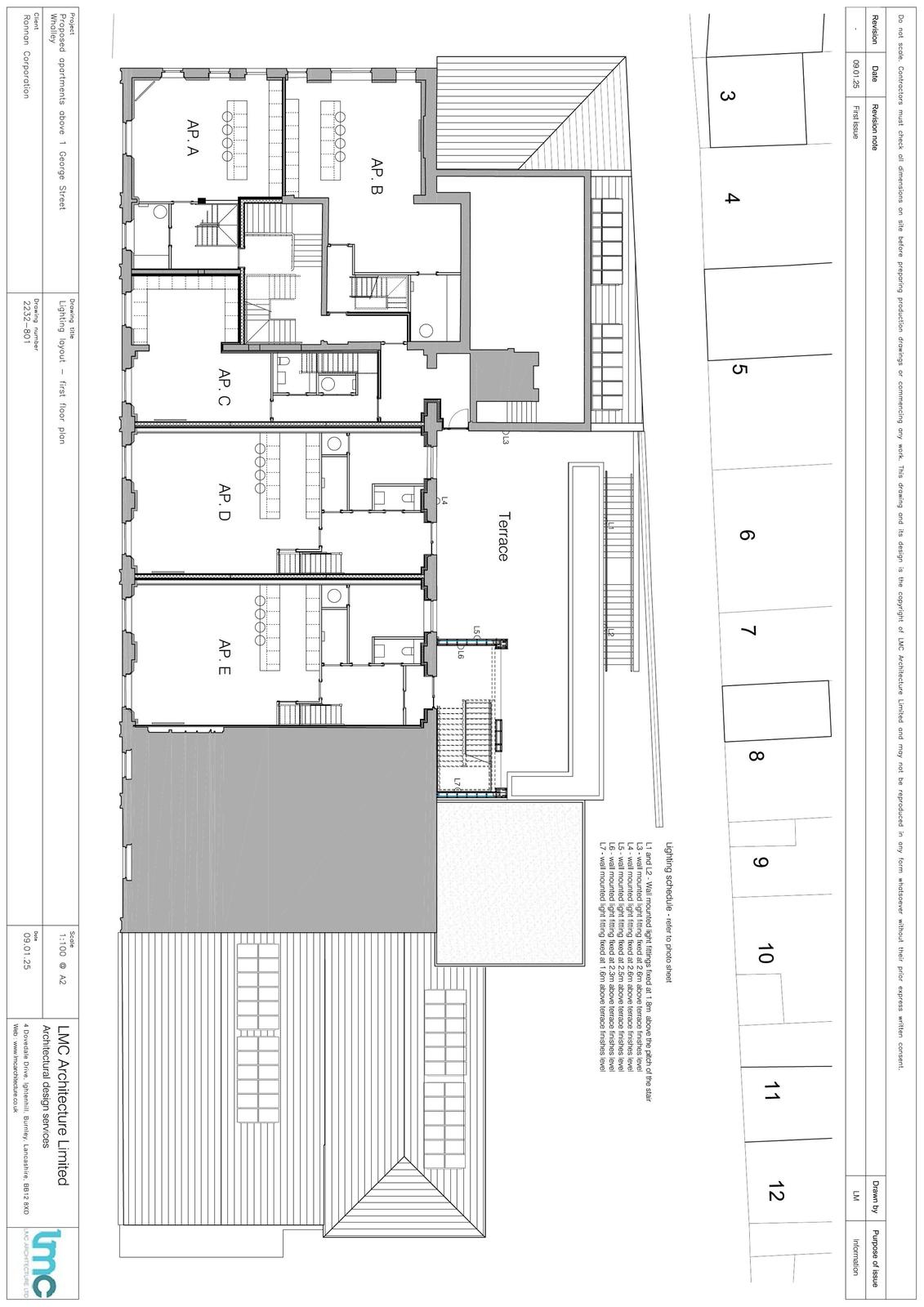
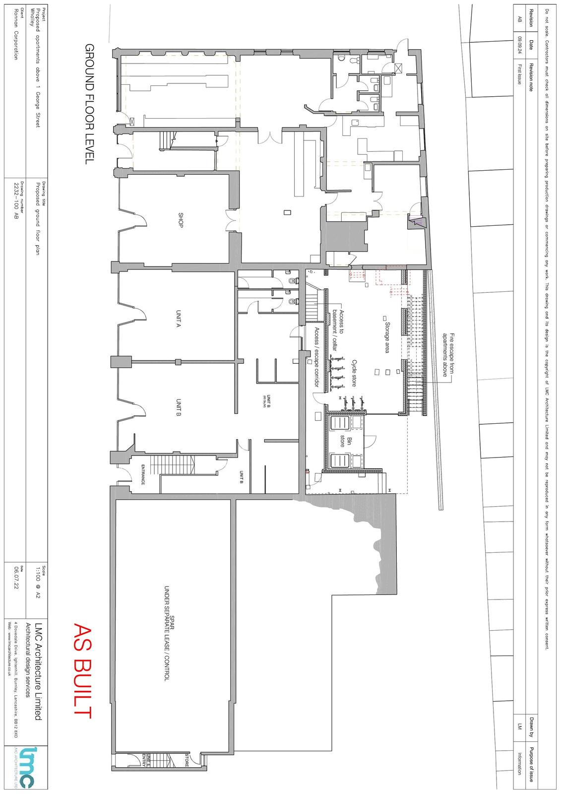
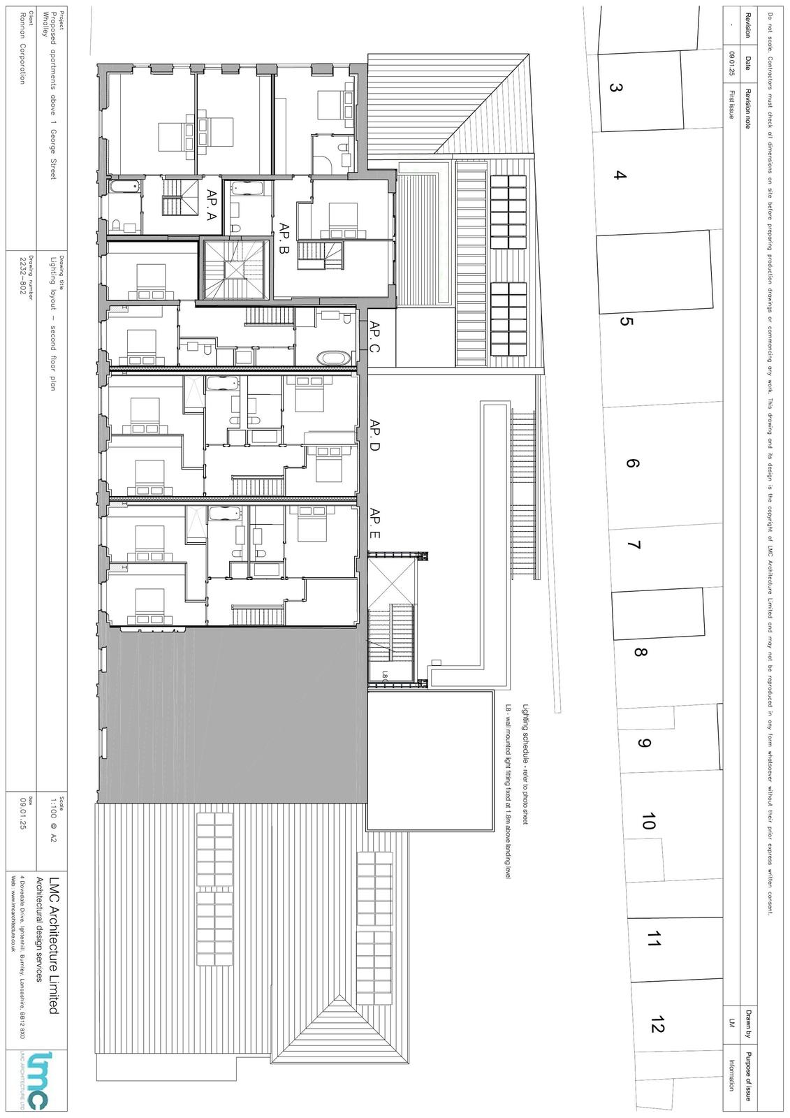
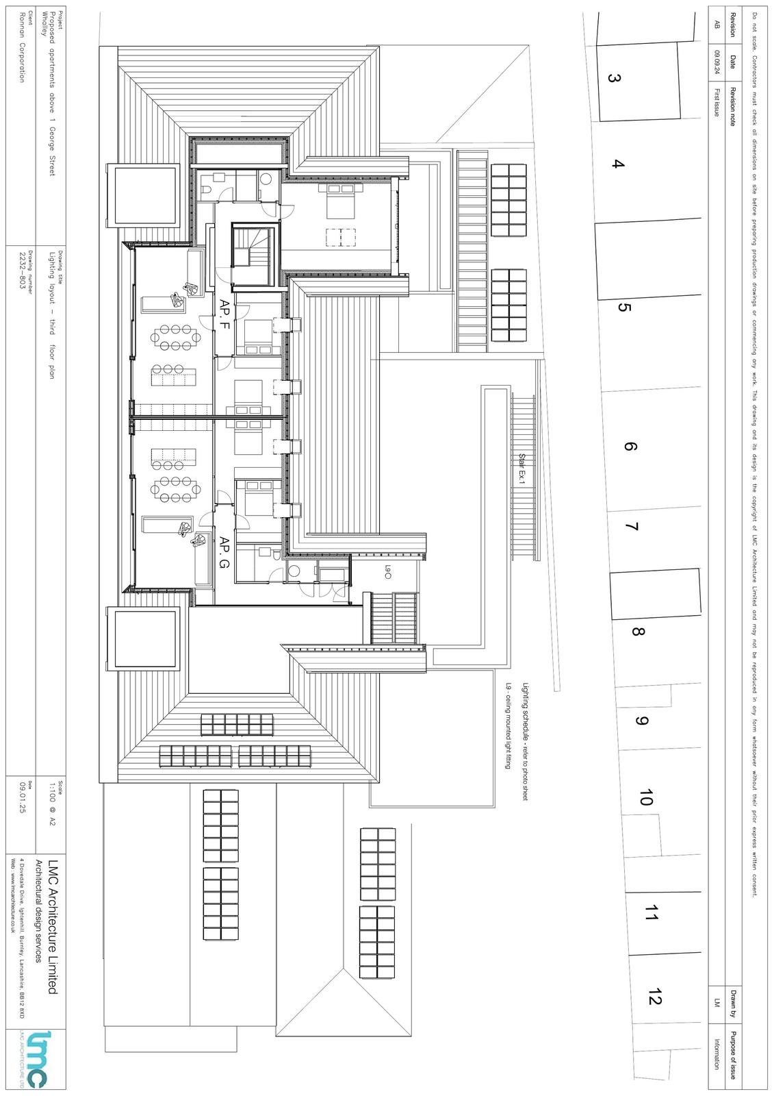
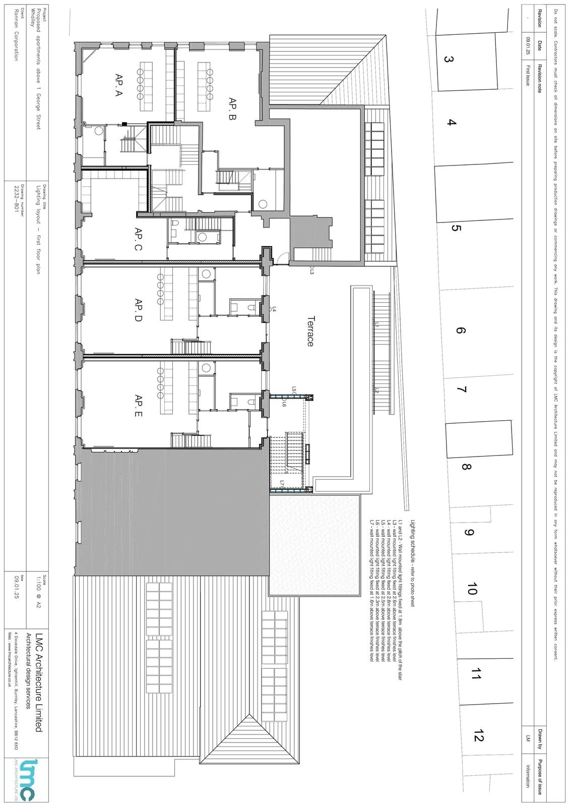
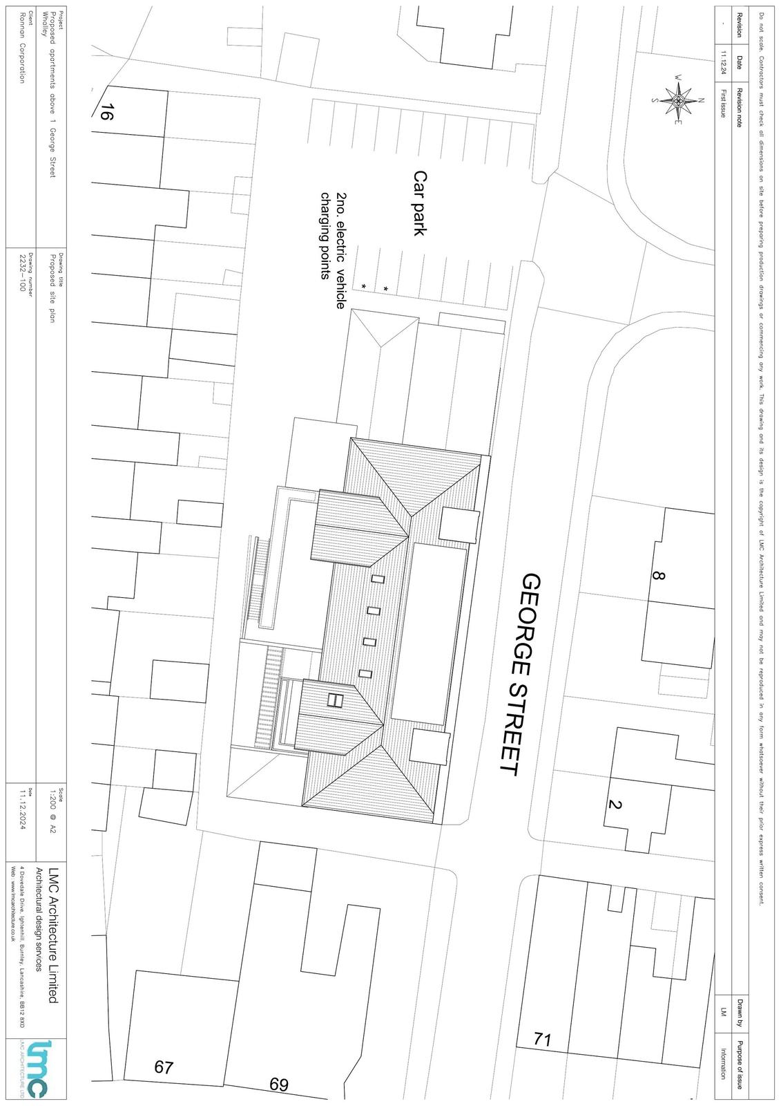
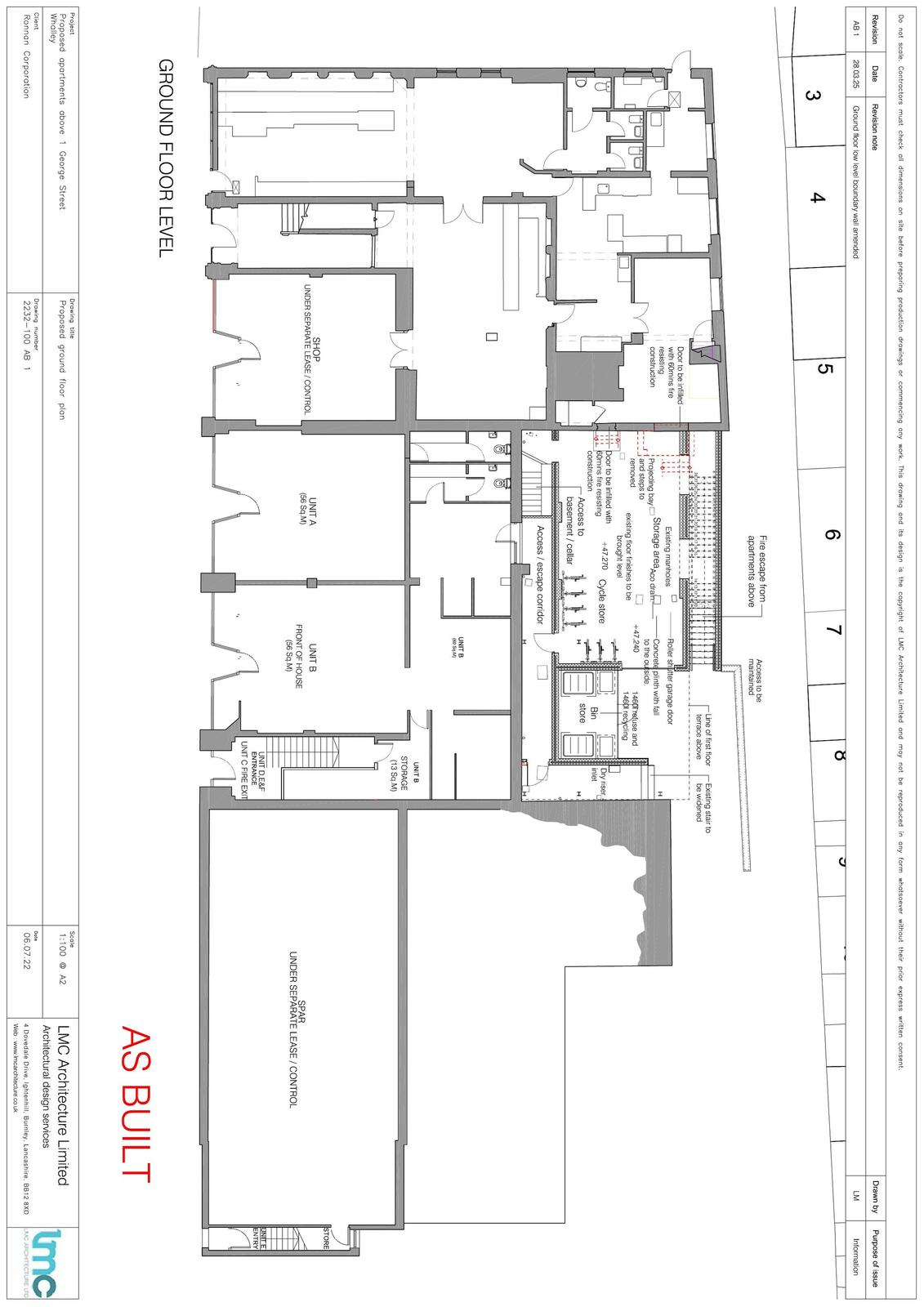
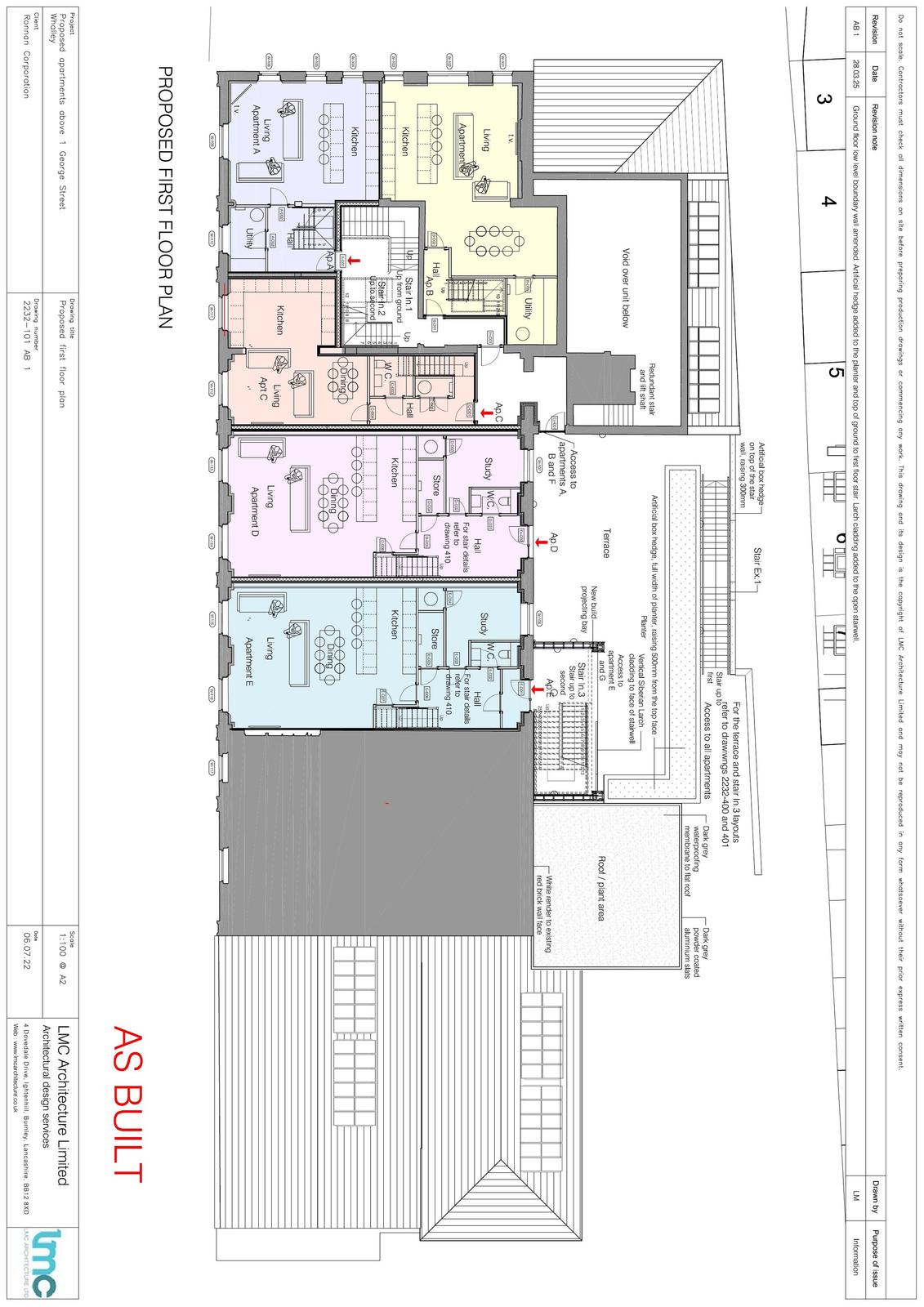
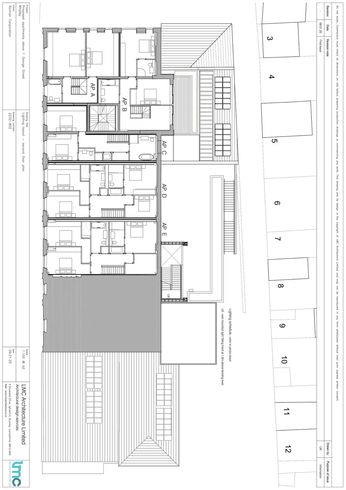
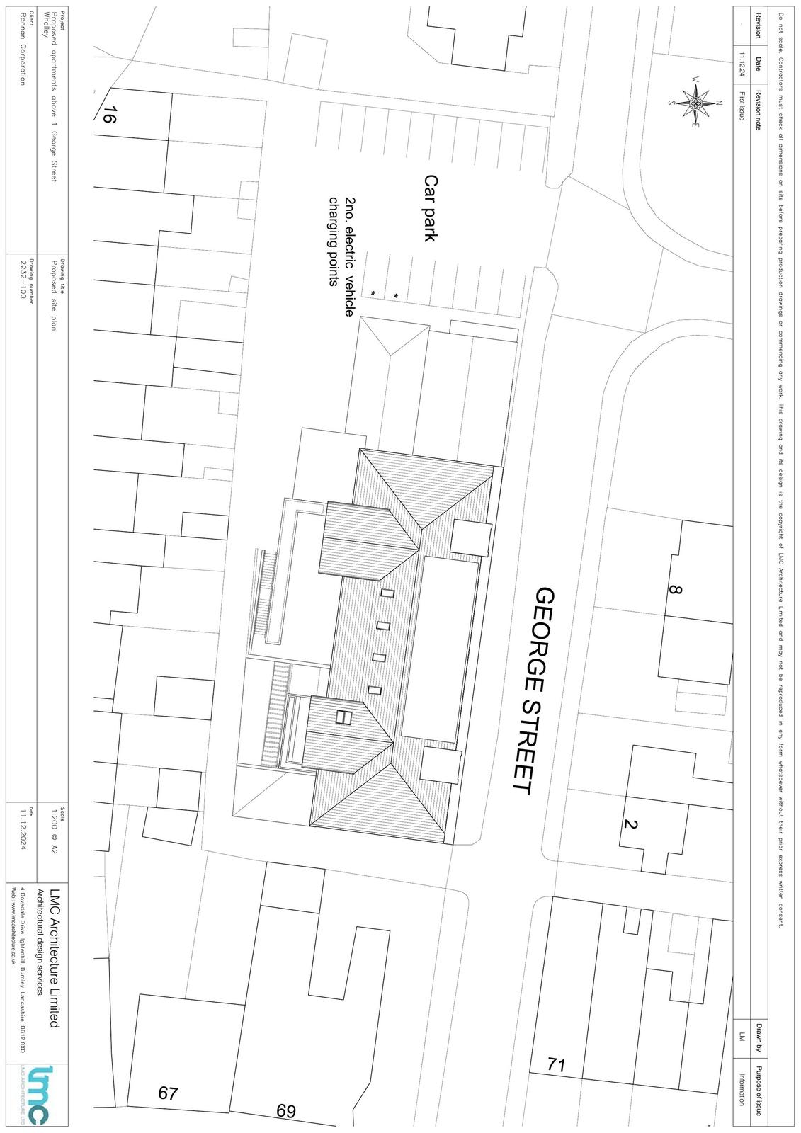
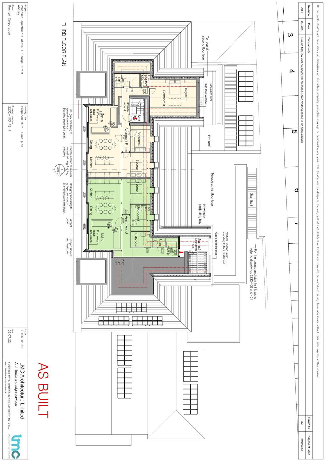
Applications for full consent Regularisation of works including extension to rear ground floor to include internal secure residents cycle store with roller shutter door; re-instate rear boundary wall to 1.351m high maximum; alterations to rear external staircases; upvc windows and doors to front, side and rear; aluminium windows to the front dormer; screening feature to the rear balconies; ground floor bin store; central cladding to front dormer window on third floor; rooflights; external lighting scheme to rear and two electric charging points.

Documents

Document
Archived · Original link
24 1016 Committee Report.docx
Document
Not yet archived · Original link
Document
Archived · Original link
Document
Archived · Original link
Document
Archived · Original link
Document
Archived · Original link
Document
Archived · Original link
Document
Archived · Original link
Document
Archived · Original link

Have your say

Your comment matters. Councils must consider every representation that raises material planning considerations.

Write a comment