← Ribble Valley Borough Council
3/2024/1019
Ribble Valley Borough Council
Status
Decided - Final Decision
House extension
Received
13 Dec 2024
New homes
0
Full proposal
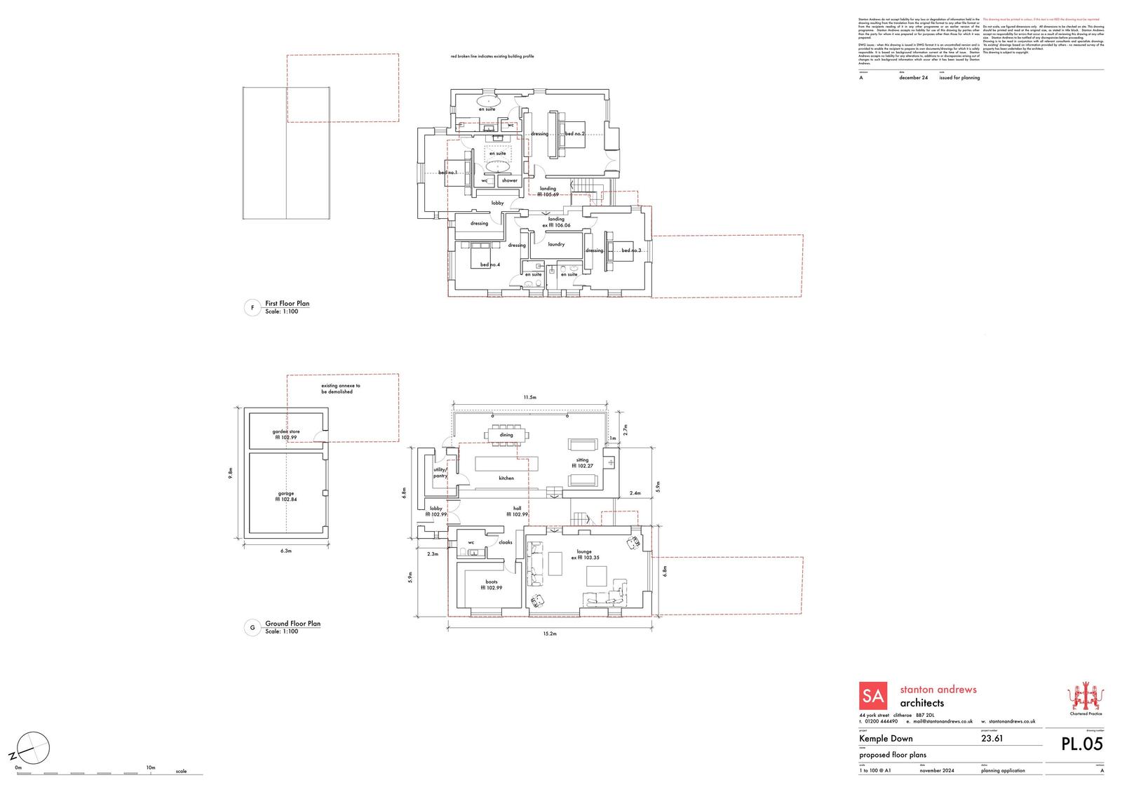
Applications for full consent Proposed demolition of granny annexe and single-storey extension, internal remodelling and extension of the house, construction of new double garage and garden store.
Documents
Have your say
Your comment matters. Councils must consider every representation that raises material planning considerations.