← Ribble Valley Borough Council

Status

Decided - Final Decision New housing
Received
06 Jan 2025
New homes
1

Full proposal

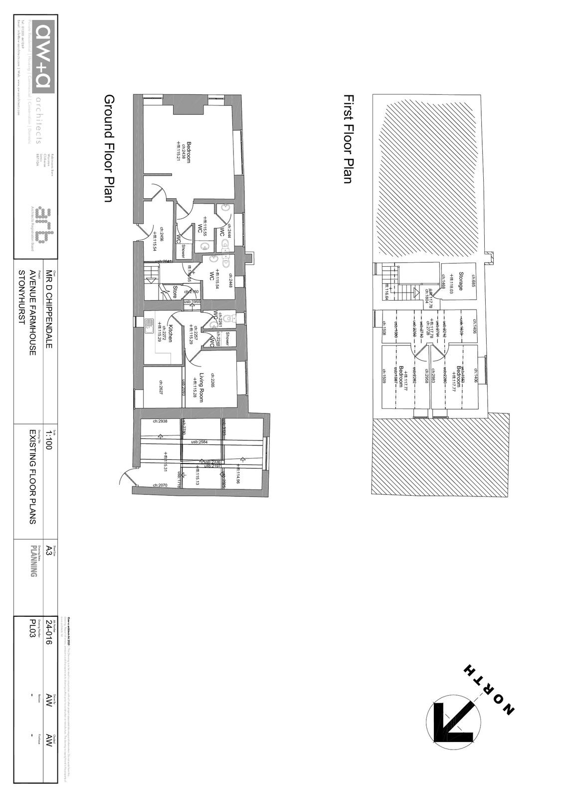
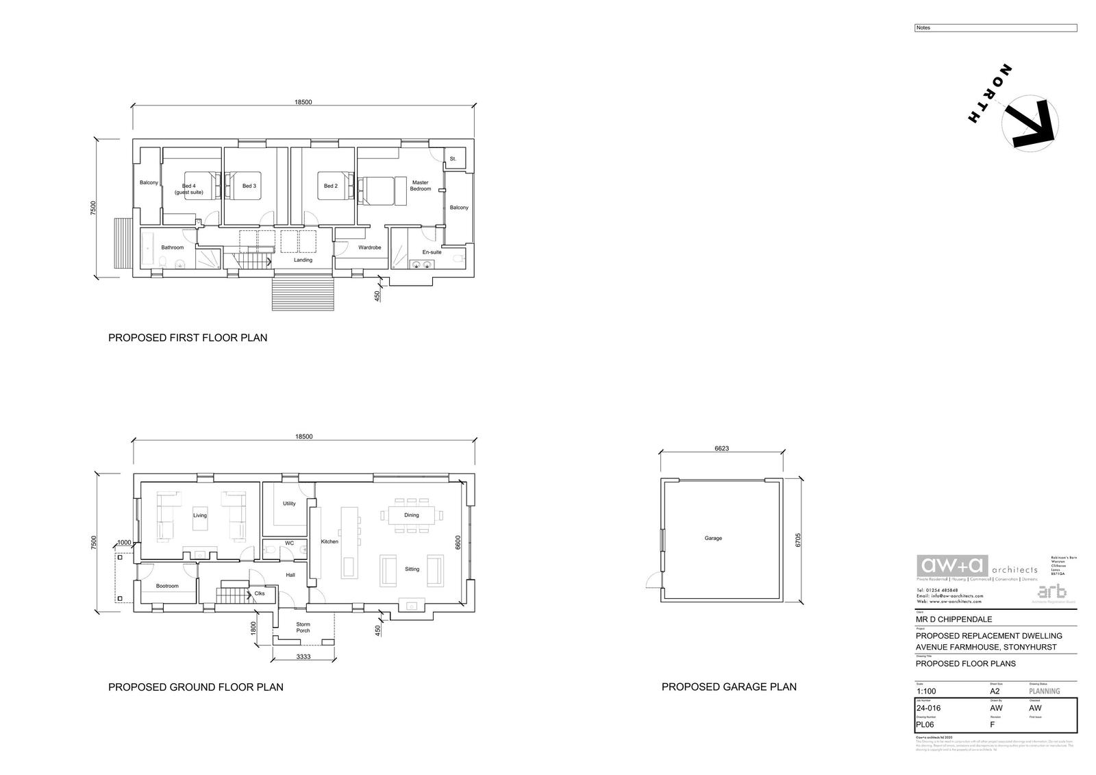
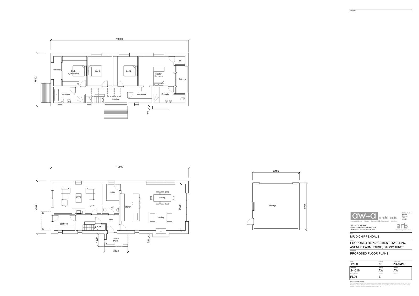
Applications for full consent Proposed demolition of existing dwelling, erection of replacement two-storey, four-bedroom self-build dwelling with detached double garage and associated site works.

Documents

Document
Archived · Original link
Document
Archived · Original link
25 0006 Delegated Report.docx
Document
Not yet archived · Original link
Document
Archived · Original link
Document
Archived · Original link

Have your say

Your comment matters. Councils must consider every representation that raises material planning considerations.

Write a comment