← Ribble Valley Borough Council

Status

Decided - Final Decision Change of use
Received
07 Jan 2025
New homes
1

Full proposal

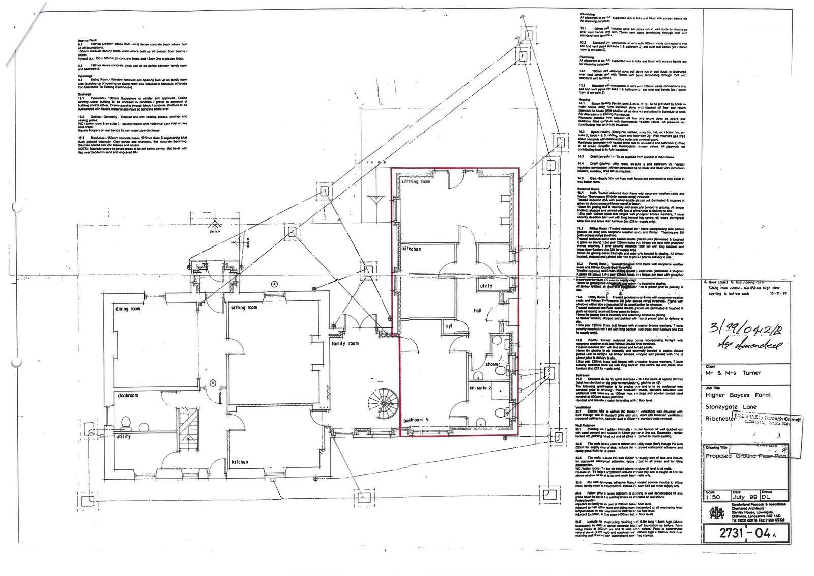
Applications for full consent Proposed change of use of annexe (currently known as Beck House Cottage) to separate residential dwelling.

Documents

Document
Archived · Original link
25 0009 Delegated Report.docx
Document
Not yet archived · Original link
Document
Archived · Original link
Document
Archived · Original link
Document
Archived · Original link

Have your say

Your comment matters. Councils must consider every representation that raises material planning considerations.

Write a comment