← Ribble Valley Borough Council
3/2025/0022
Ribble Valley Borough Council
Status
Decided - Final Decision
House extension
Received
10 Jan 2025
New homes
0
Full proposal
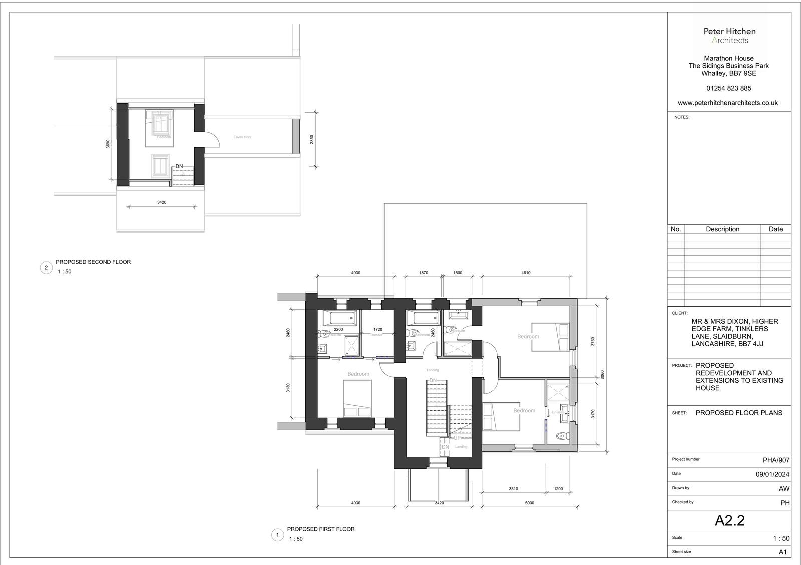
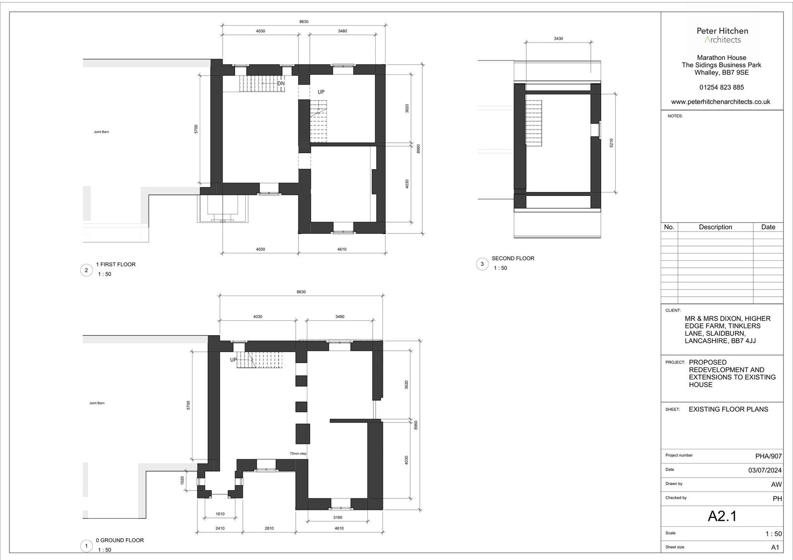
Applications for full consent Proposed demolition of front porch and replacement with new porch. Raising of roof. Construction of two-storey extension to side and single-storey extension to rear. Addition of new windows and insertion of rooflights. Construction of single-storey, pitched-roof, detached building containing borehole to supply filtered water supply to the property. Creation of garden area to rear and paved area to front.
Documents
Have your say
Your comment matters. Councils must consider every representation that raises material planning considerations.