← Ribble Valley Borough Council

Status

Decided - Final Decision New housing
Received
15 Jan 2025
New homes
1

Full proposal

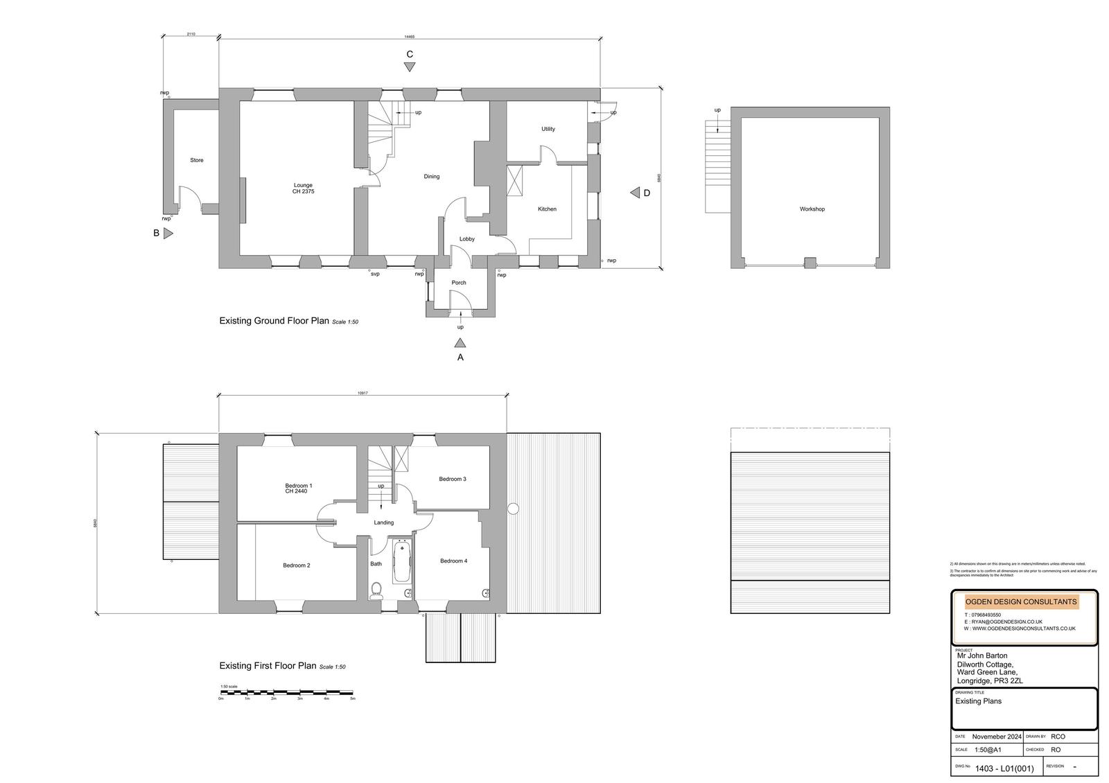
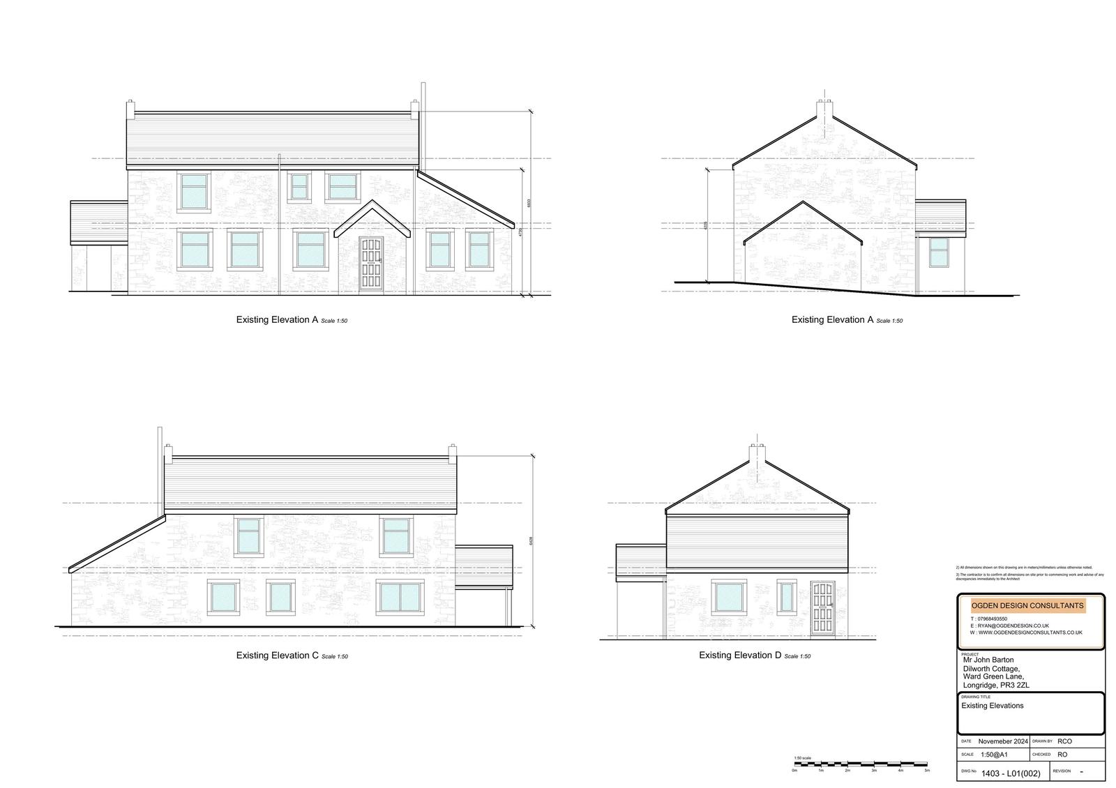
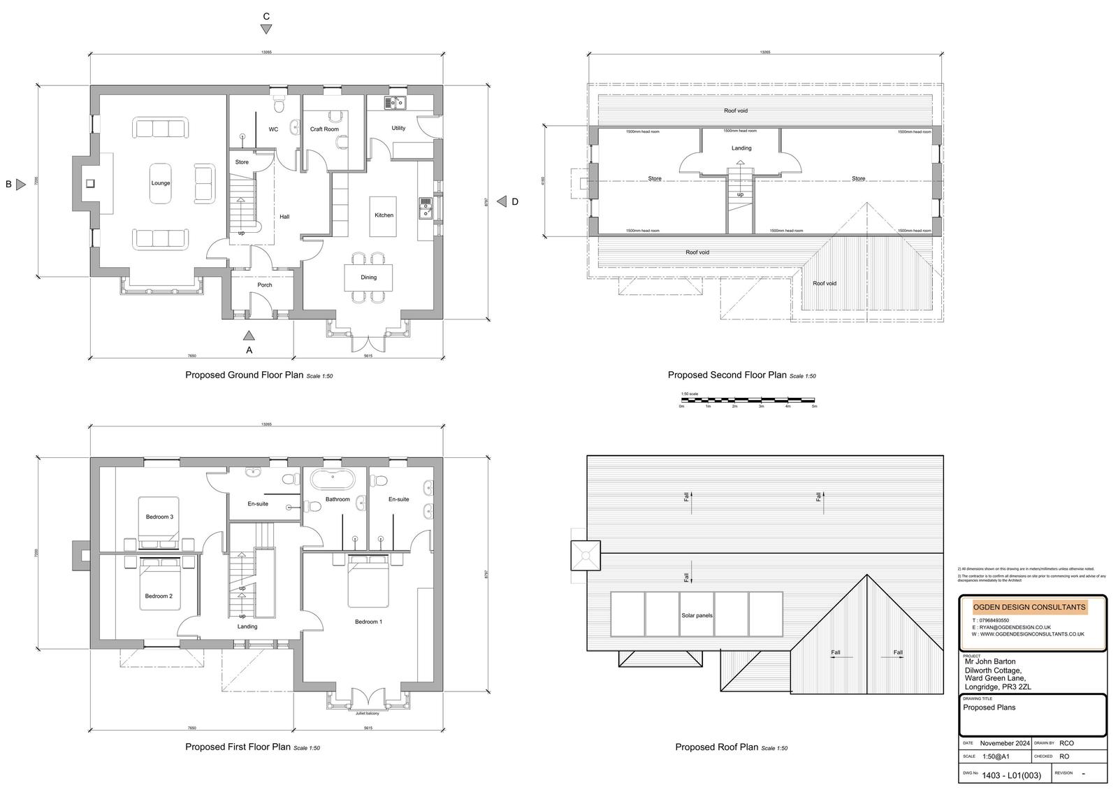
Applications for full consent Proposed demolition of existing dwelling and erection of new two-storey detached dwelling with rooms in the roofspace. Installation of Air Source Heat Pump and Solar Panels.

Have your say

Your comment matters. Councils must consider every representation that raises material planning considerations.

Write a comment