← Ribble Valley Borough Council

Status

Decided - Final Decision New housing
Received
23 Jan 2025
New homes
1

Full proposal

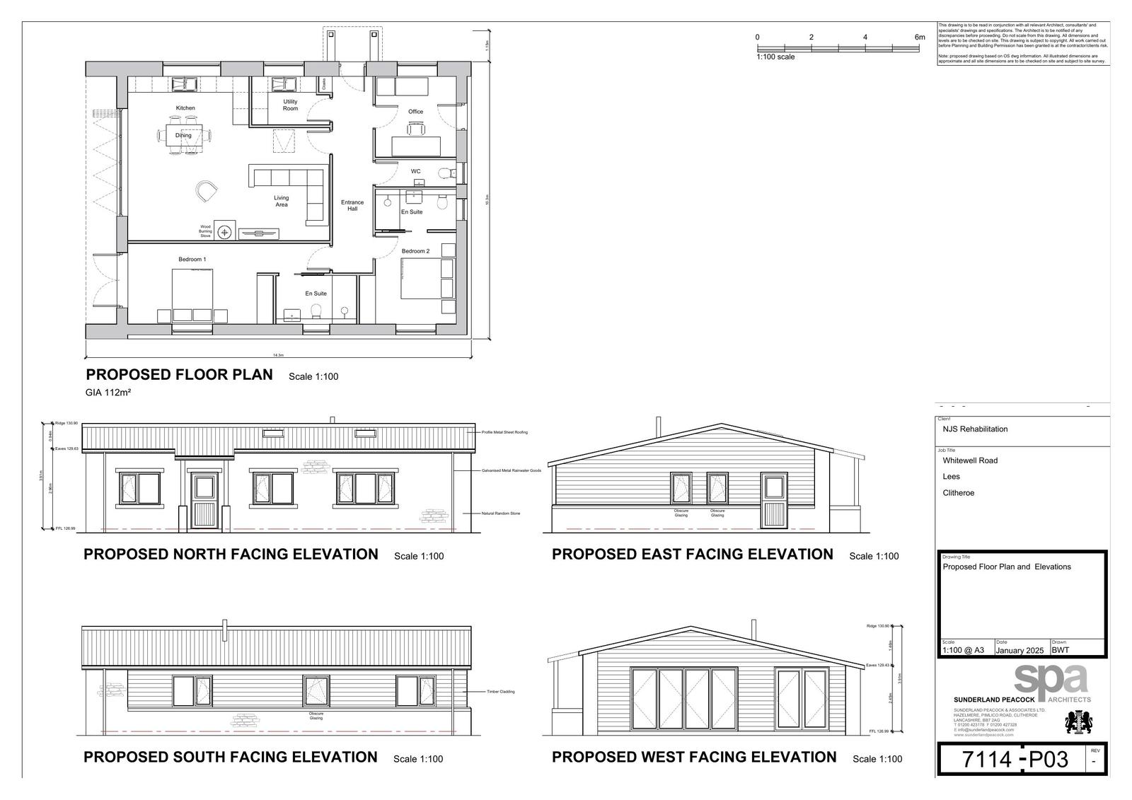
Applications for full consent Proposed construction of a two-bedroom rural workers' self-build dwelling, new access track, package treatment unit and solar panels on existing stables building.

Documents

Document
Archived · Original link
Document
Archived · Original link
Document
Archived · Original link
Document
Archived · Original link
Document
Archived · Original link

Have your say

Your comment matters. Councils must consider every representation that raises material planning considerations.

Write a comment