← Ribble Valley Borough Council
3/2025/0069
Ribble Valley Borough Council
Status
Decided - Final Decision
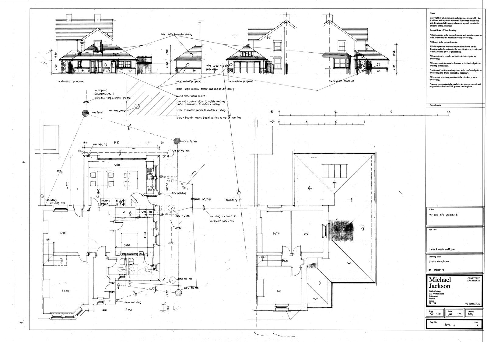
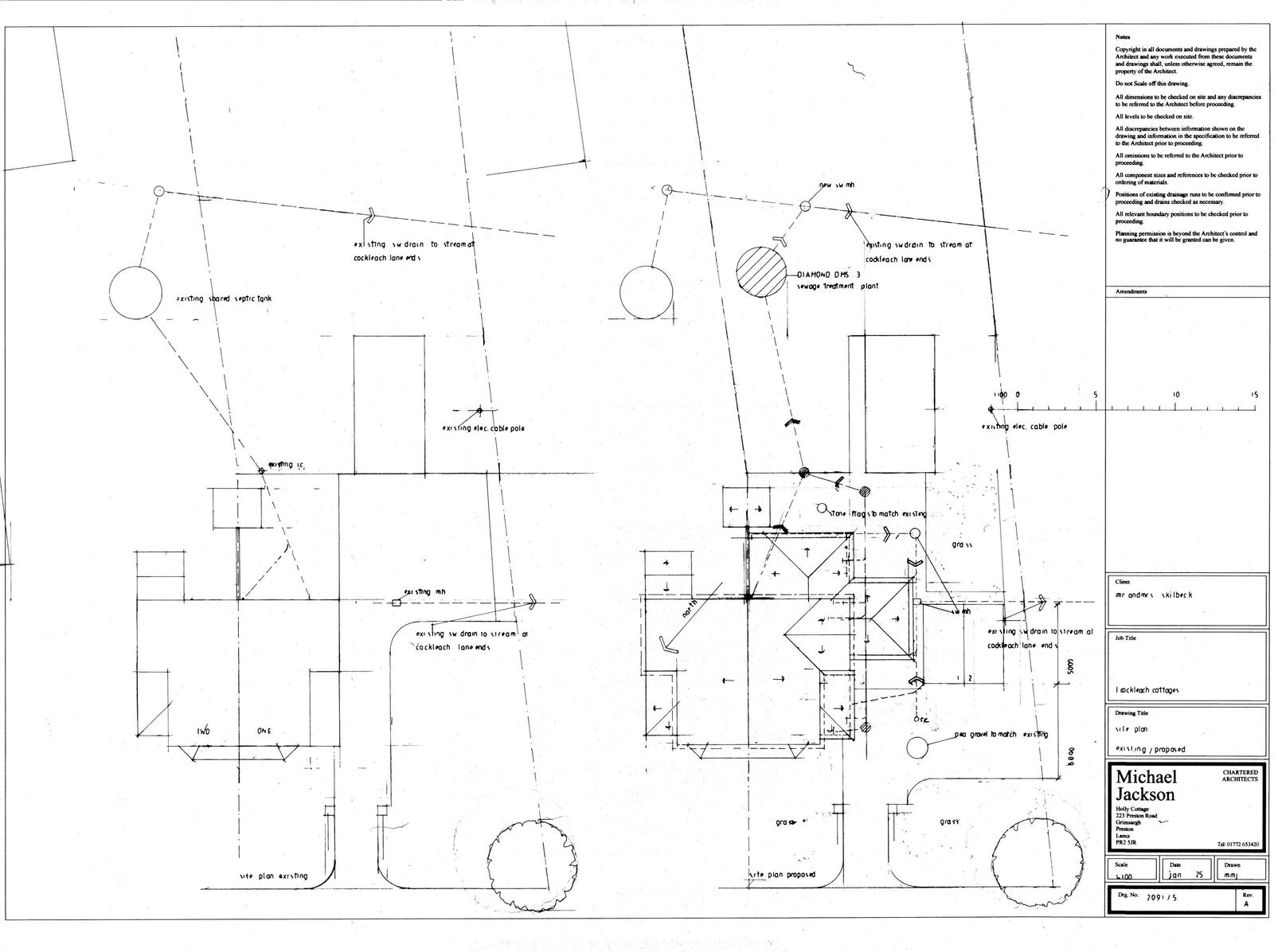
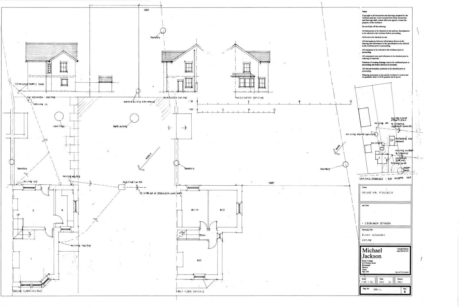
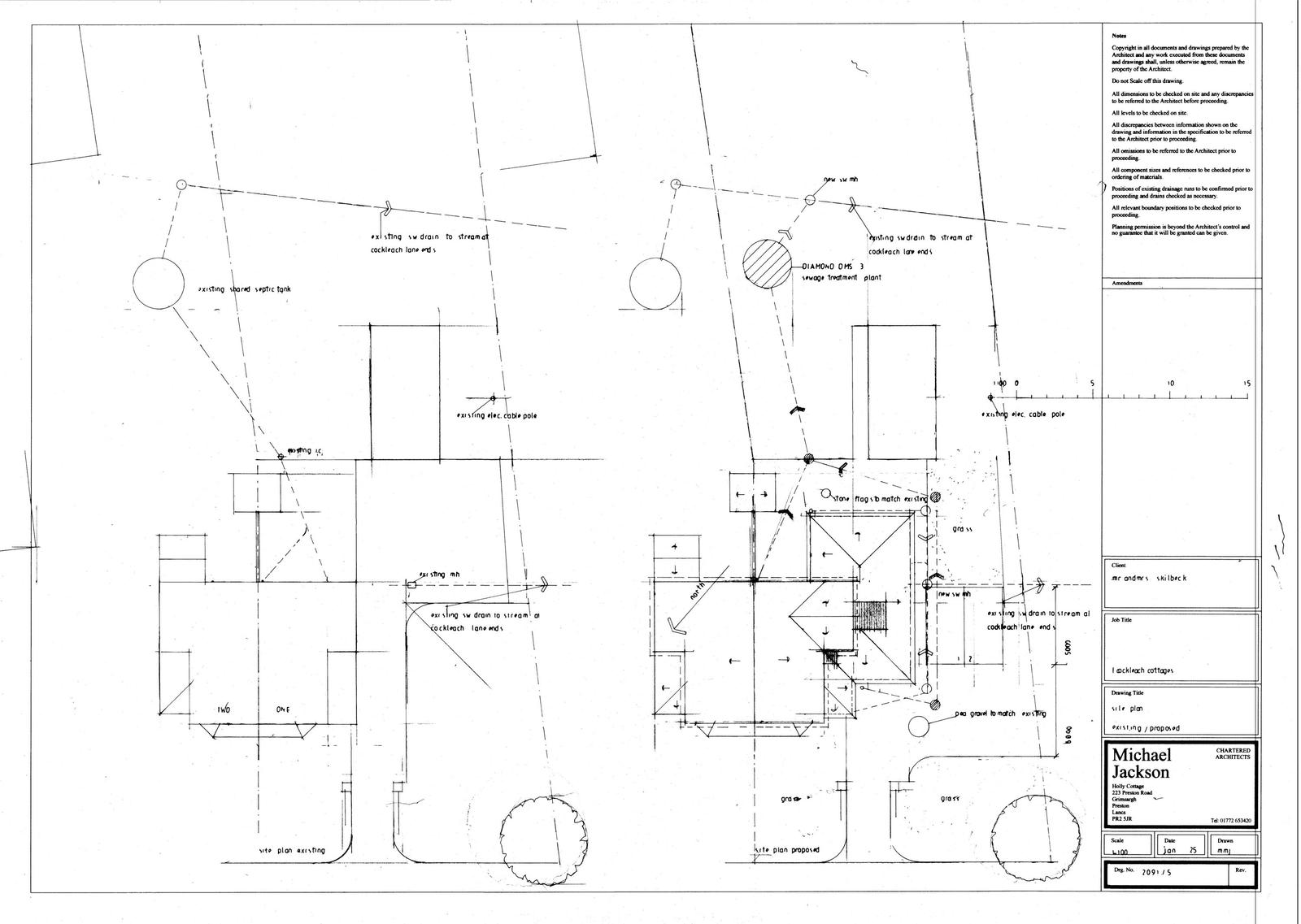
House extension
Received
24 Jan 2025
New homes
0
Full proposal
Applications for full consent Proposed construction of single-storey extension to side and rear and replacement sewage treatment package.
Documents
Have your say
Your comment matters. Councils must consider every representation that raises material planning considerations.