← Ribble Valley Borough Council

Status

Decided - Final Decision New housing
Received
31 Jan 2025
New homes
1

Full proposal

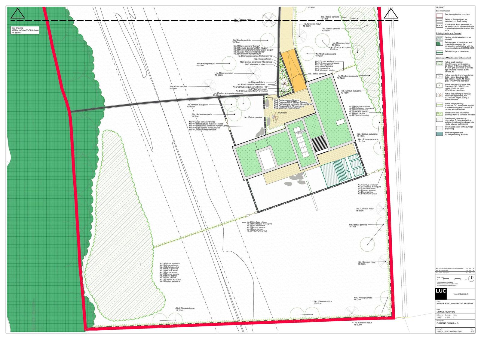
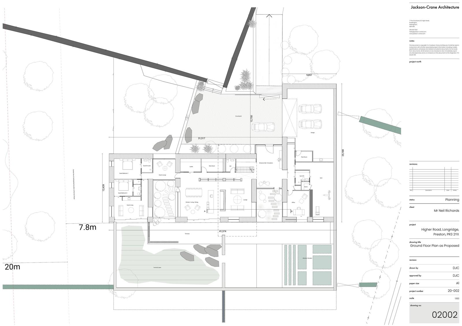
Applications for full consent Proposed erection of a part single-storey and part two-storey dwelling of exceptional design quality (NPPF 84e) with associated landscaping, habitat restoration, change of use of land to residential curtilage and access from higher Road, together with the creation of a small visitor car park for members of the public to view the remains of the Roman road to be preserved (if feasible) within the site.

Documents

Document
Archived · Original link
25 0095 Delegated Report.docx
Document
Not yet archived · Original link
Document
Archived · Original link
Document
Archived · Original link
Document
Archived · Original link
Document
Archived · Original link

Have your say

Your comment matters. Councils must consider every representation that raises material planning considerations.

Write a comment