← Ribble Valley Borough Council
3/2025/0106
Ribble Valley Borough Council
Status
Decided - Final Decision
House extension
Received
05 Feb 2025
New homes
0
Full proposal
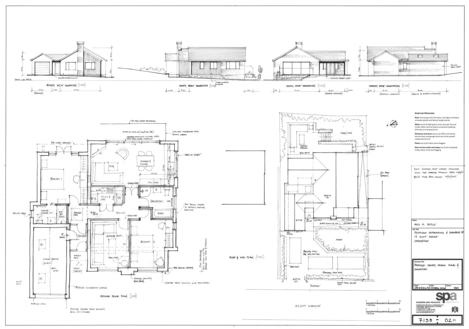
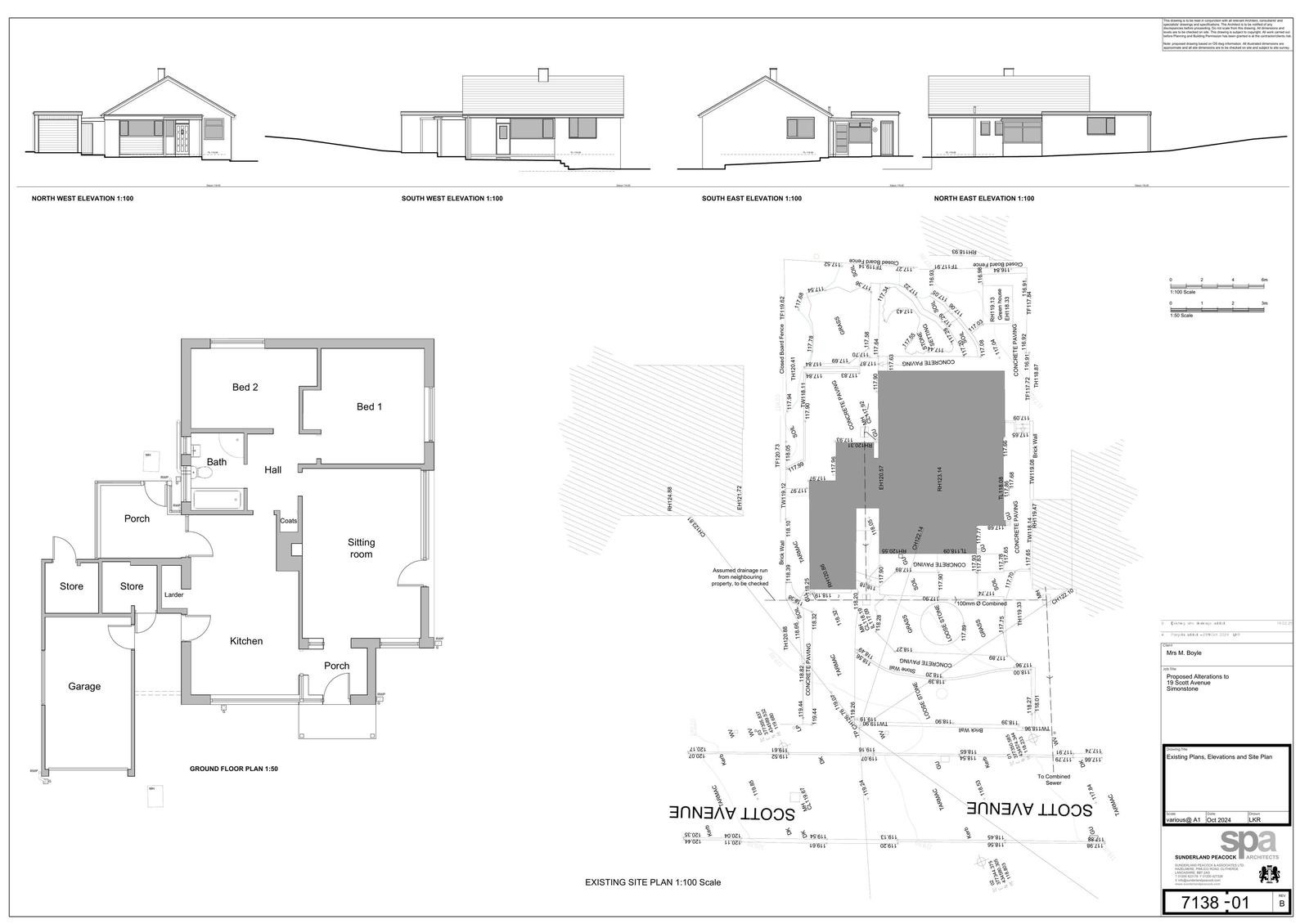
Applications for full consent Proposed demolition of existing garage, storerooms and rear porch. Erection of a single-storey extension to side to provide a new single garage and en-suite bedroom. Remodelling of front elevation with side extension to replace existing flat roof and pergola with dual-pitched tiled roof and chimney. Erection of raised deck to rear with steps down to the garden.
Documents
Have your say
Your comment matters. Councils must consider every representation that raises material planning considerations.