← Ribble Valley Borough Council

Status

Decided - Final Decision House extension
Received
12 Feb 2025
New homes
0

Full proposal

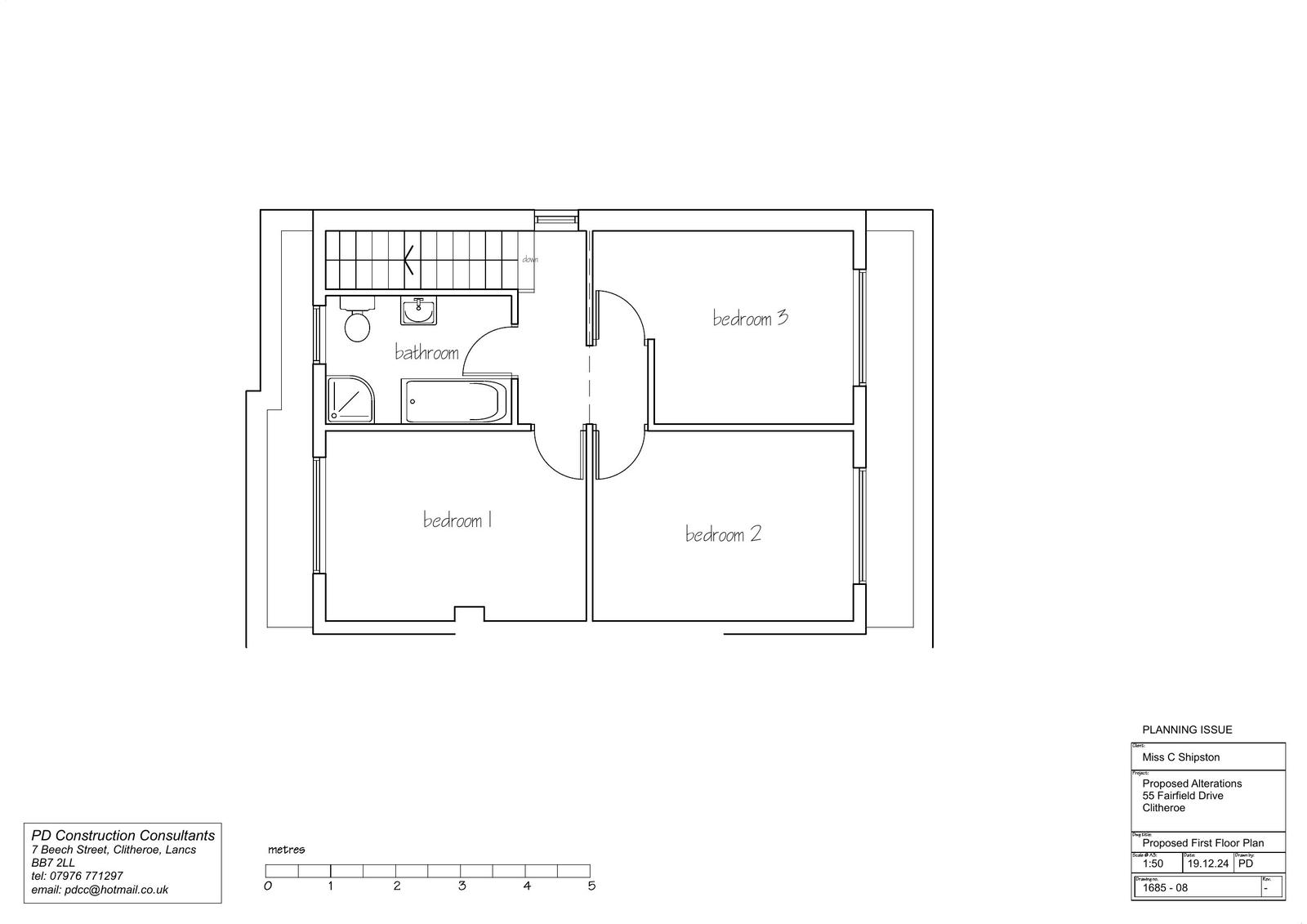
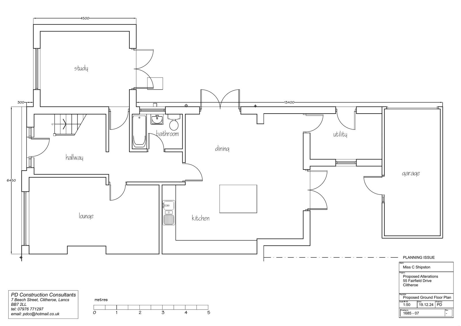
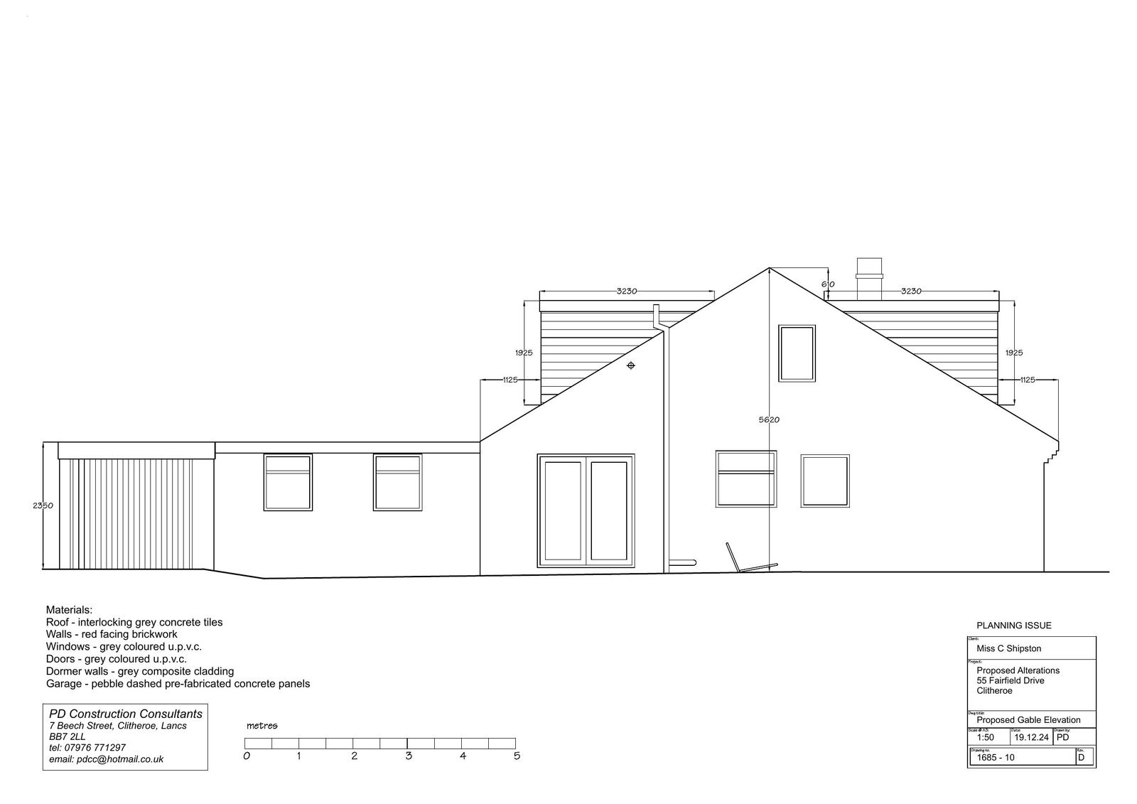
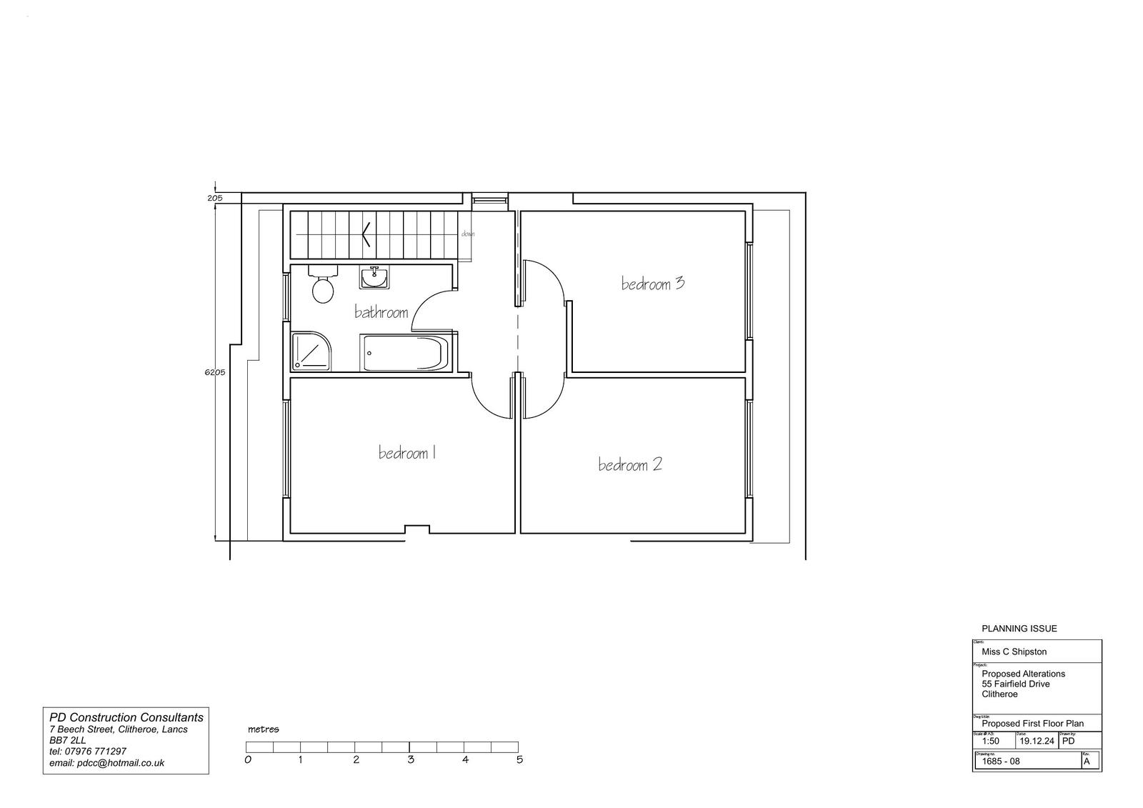
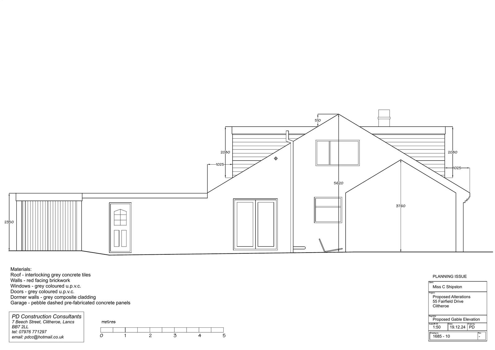
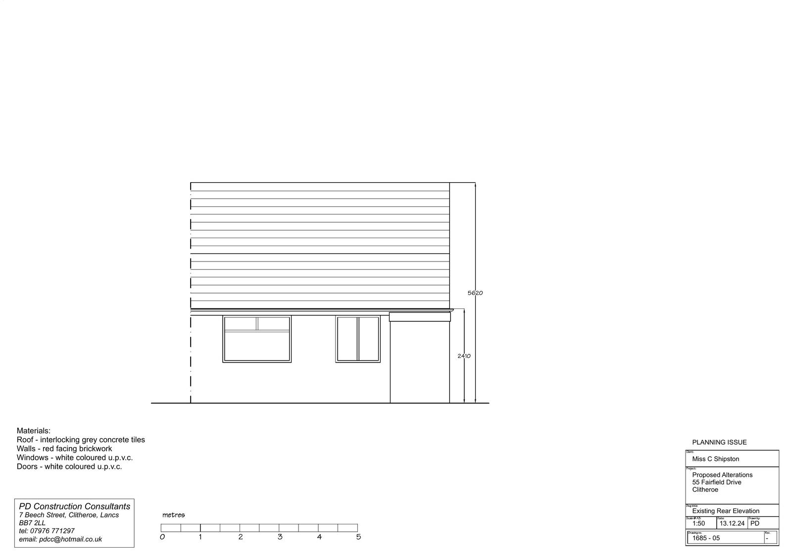
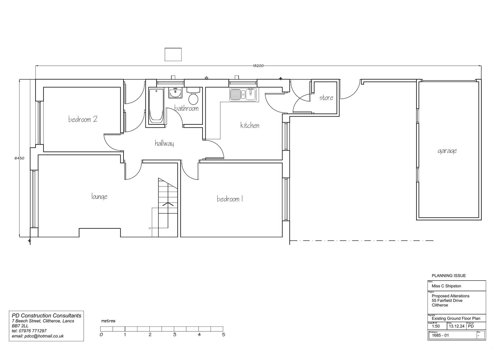
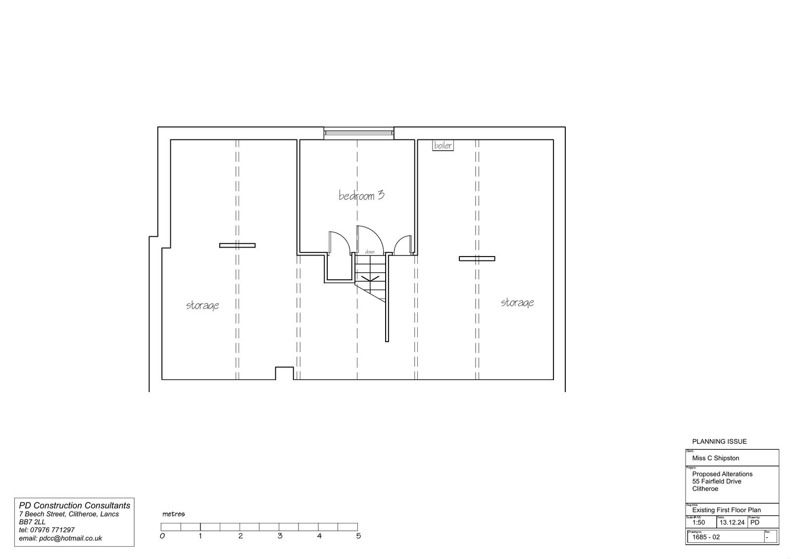
Applications for full consent Proposed single-storey link extension to rear, fenestration alterations and proposed dormer extensions to front and rear roof slopes.

Documents

Document
Archived · Original link

Have your say

Your comment matters. Councils must consider every representation that raises material planning considerations.

Write a comment