← Ribble Valley Borough Council
3/2025/0139
Ribble Valley Borough Council
Status
Decided - Final Decision
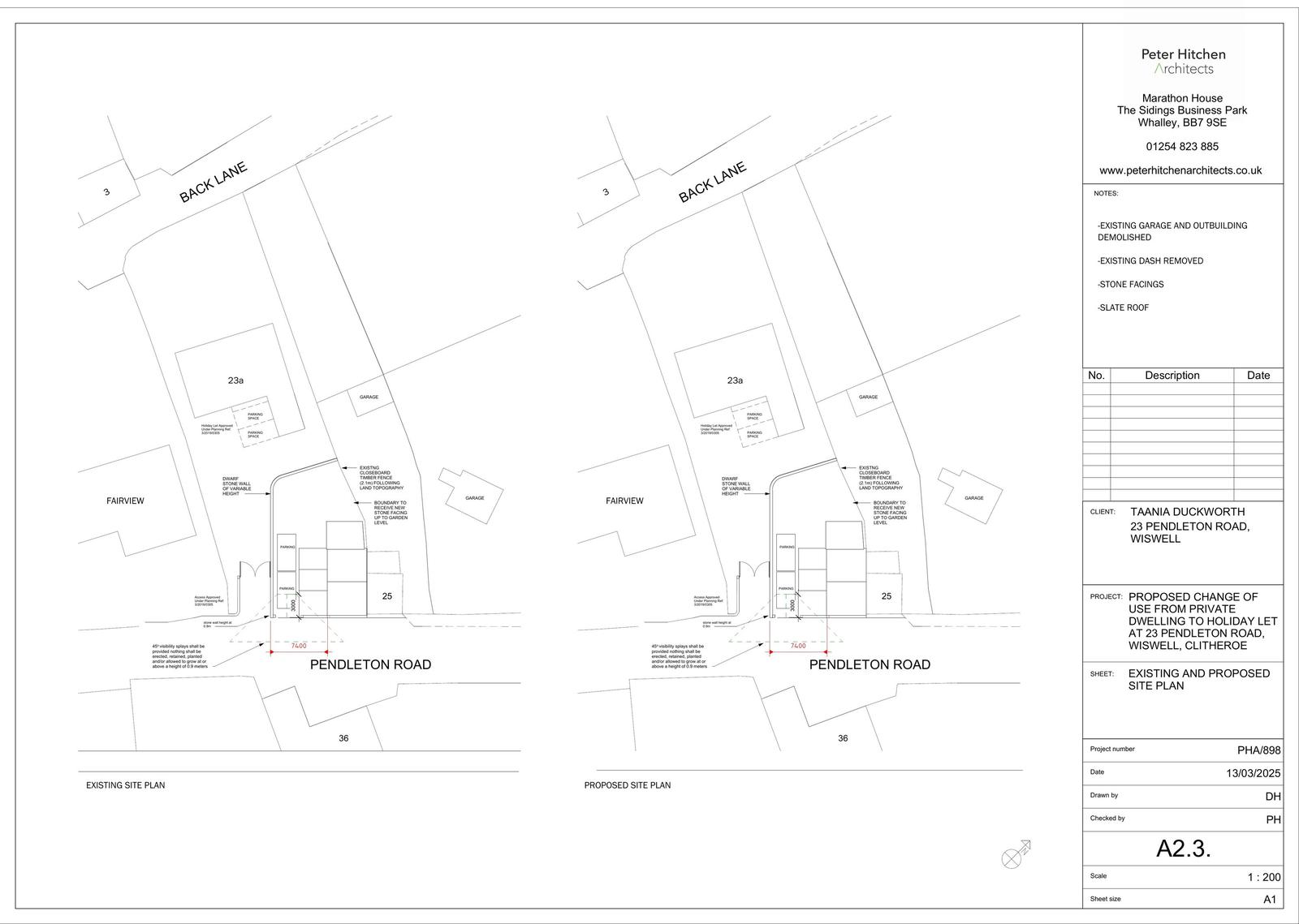
Change of use
Received
11 Feb 2025
New homes
0
Full proposal
Applications for full consent Proposed change of use of dwelling to holiday let. Building work to extend and renovate the house approved under 3/2024/0574 and 3/2024/0234 has commenced.
Documents
Have your say
Your comment matters. Councils must consider every representation that raises material planning considerations.