← Ribble Valley Borough Council
3/2025/0144
Ribble Valley Borough Council
Status
Decided - Final Decision
New housing
Received
18 Feb 2025
New homes
1
Full proposal
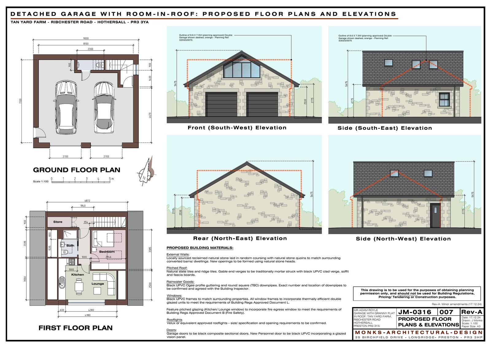
Applications for full consent Proposed extension and remodelling (with associated building works) to the existing barn, to create a detached dwelling (previously subject to approval 3/2023/0075). The erection of a detached double garage with habitable living space above, as an annexe to that family dwelling, and external works and change of use of land to residential curtilage.
Documents
Have your say
Your comment matters. Councils must consider every representation that raises material planning considerations.