← Ribble Valley Borough Council

Status

Decided - Final Decision Change of use
Received
24 Feb 2025
New homes
0

Full proposal

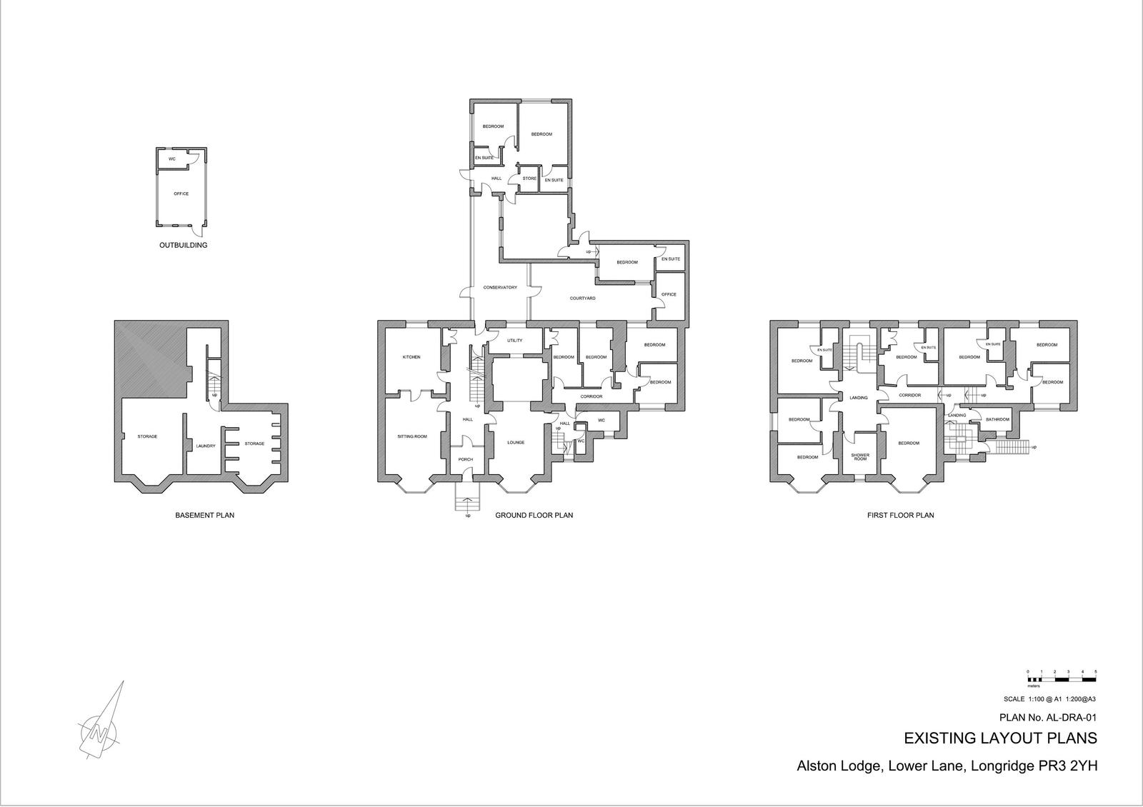
Applications for full consent Proposed change of use of residential care home (use class C2) to a children's home (use class C2). Erection of covered cycle storage.

Documents

Document
Archived · Original link
25 0159 Decision Notice.docx
Document
Not yet archived · Original link
25 0159 Delegated Report.docx
Document
Not yet archived · Original link
Document
Archived · Original link
Document
Archived · Original link
Document
Archived · Original link
Document
Archived · Original link

Have your say

Your comment matters. Councils must consider every representation that raises material planning considerations.

Write a comment