← Ribble Valley Borough Council

Status

Decided - Final Decision House extension
Received
26 Feb 2025
New homes
0

Full proposal

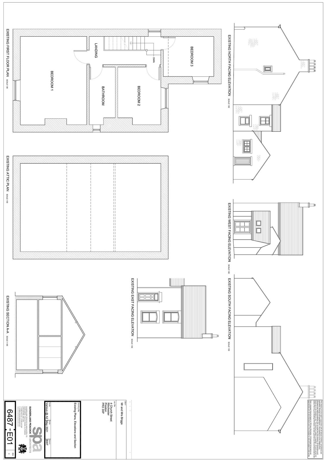
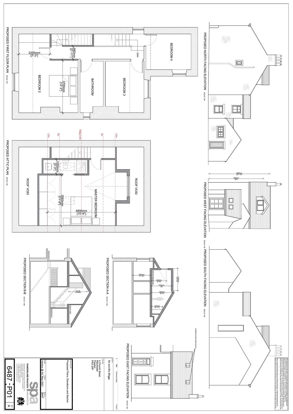
Applications for full consent Proposed loft conversion, dormer to rear and two velux rooflights to front.

Have your say

Your comment matters. Councils must consider every representation that raises material planning considerations.

Write a comment