← Ribble Valley Borough Council

Status

Decided - Final Decision House extension
Received
05 Mar 2025
New homes
0

Full proposal

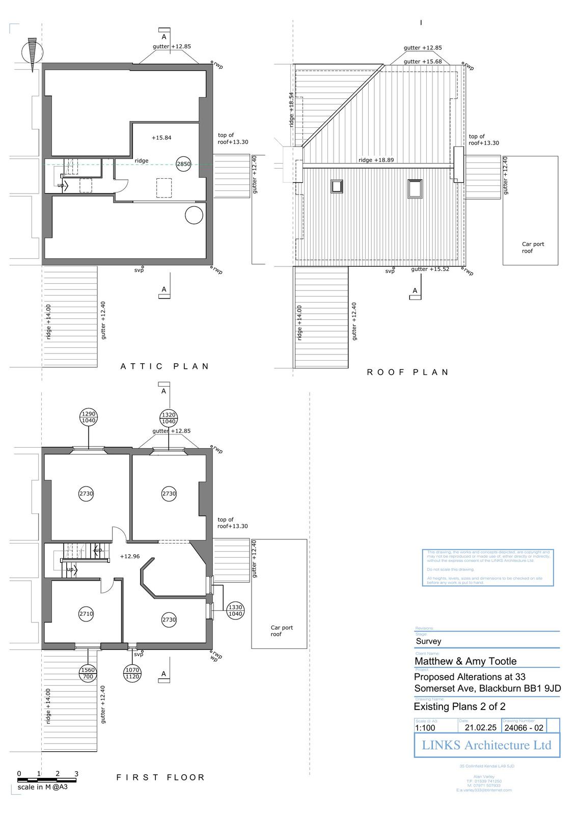
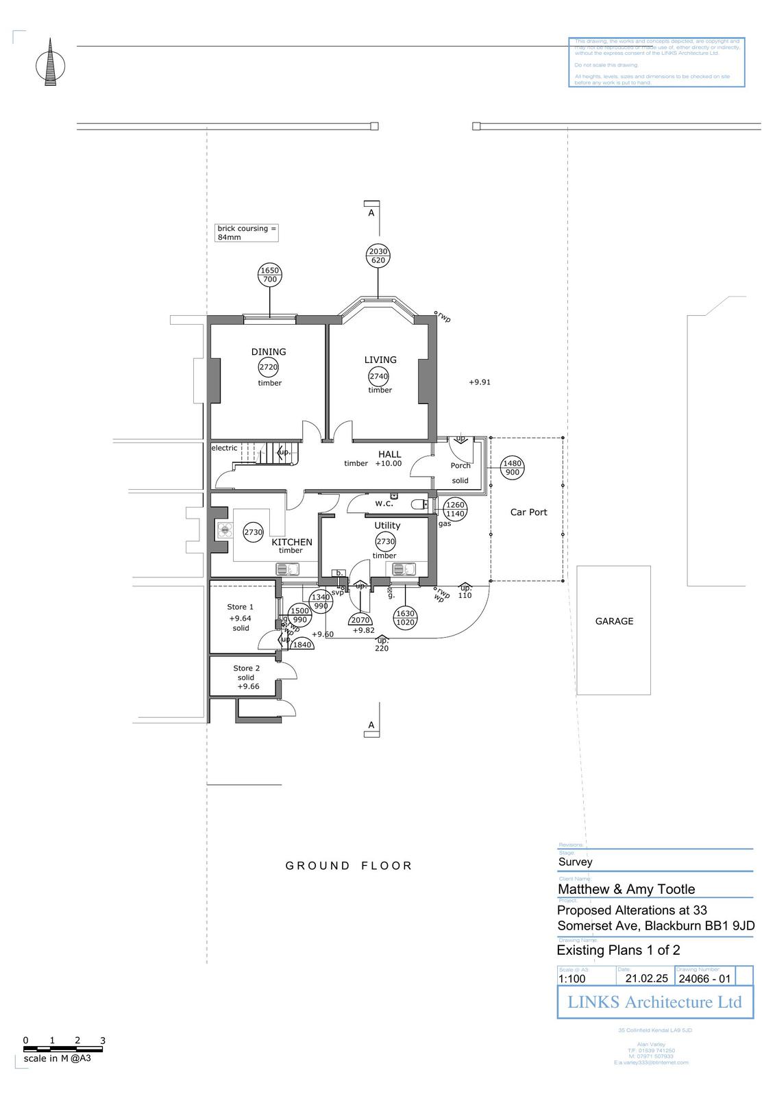
Applications for full consent Proposed erection of a single-storey extension to rear with a double-pitched roof with velux windows, rear-facing glazed doors and windows to west side only.

Documents

25 0176 Decision Notice.docx
Document
Not yet archived · Original link
25 0176 Delegated Report.docx
Document
Not yet archived · Original link
Document
Archived · Original link
Document
Archived · Original link

Have your say

Your comment matters. Councils must consider every representation that raises material planning considerations.

Write a comment