← Ribble Valley Borough Council
3/2025/0183
Ribble Valley Borough Council
Status
Decided - Final Decision
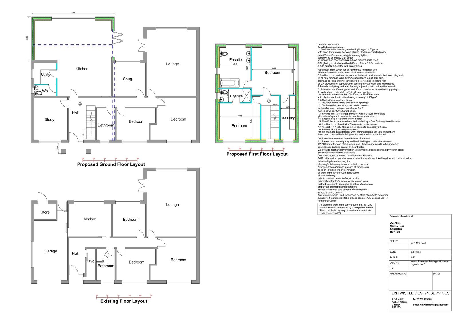
House extension
Received
06 Mar 2025
New homes
0
Full proposal
Applications for full consent Proposed second storey extension with solar panels to bungalow, front porch, single storey rear extension, detached garage to front of property, detached summer house to rear garden.
Documents
Have your say
Your comment matters. Councils must consider every representation that raises material planning considerations.