← Ribble Valley Borough Council
3/2025/0189
Ribble Valley Borough Council
Status
Decided - Final Decision
New housing
Received
06 Mar 2025
New homes
1
Full proposal
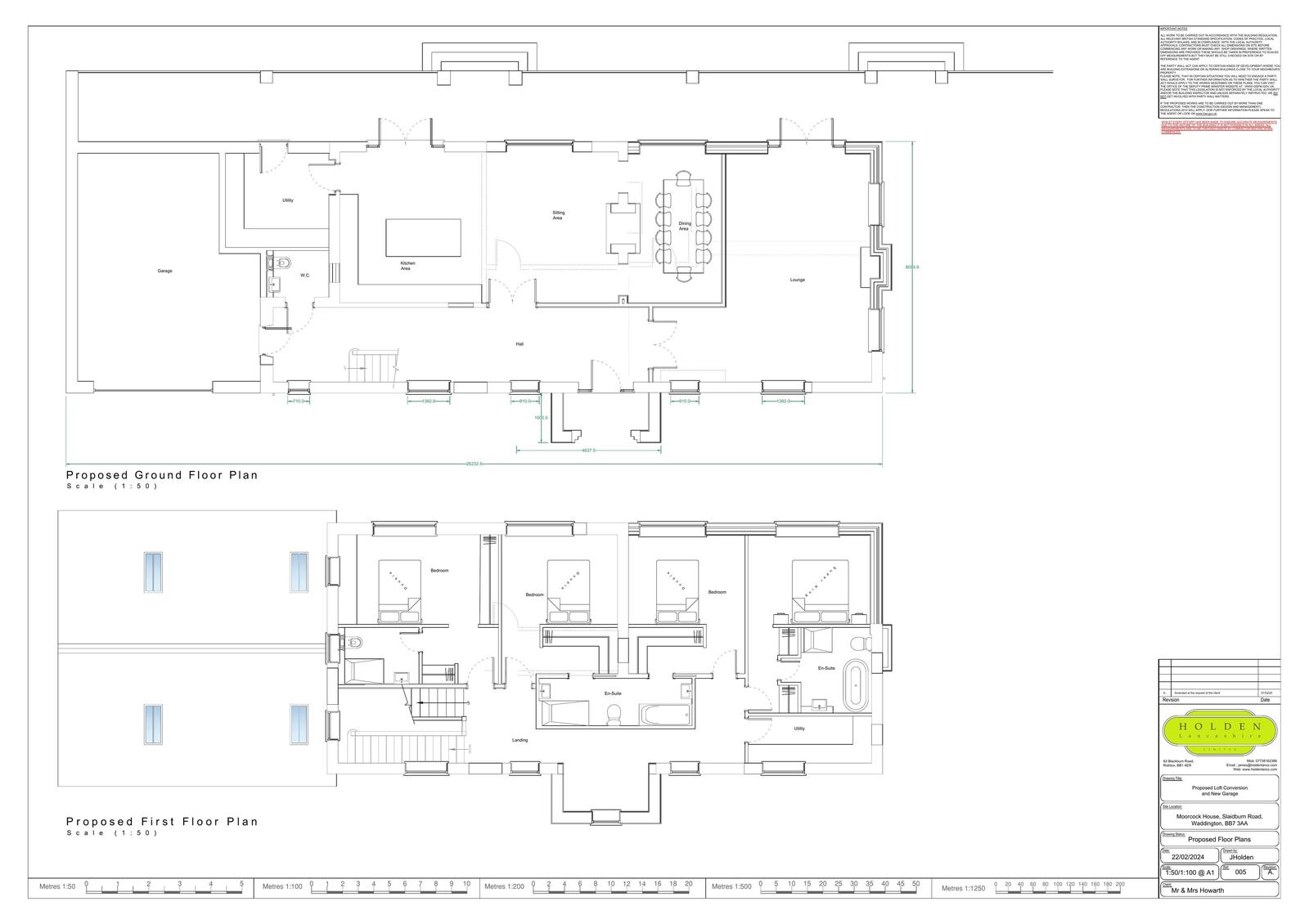
Applications for full consent Demolition of existing 4 bedroom dwelling and construction of replacement 6 bedroom dwelling with integral garage.
Documents
Have your say
Your comment matters. Councils must consider every representation that raises material planning considerations.