← Ribble Valley Borough Council
3/2025/0199
Ribble Valley Borough Council
Status
Decided - Final Decision
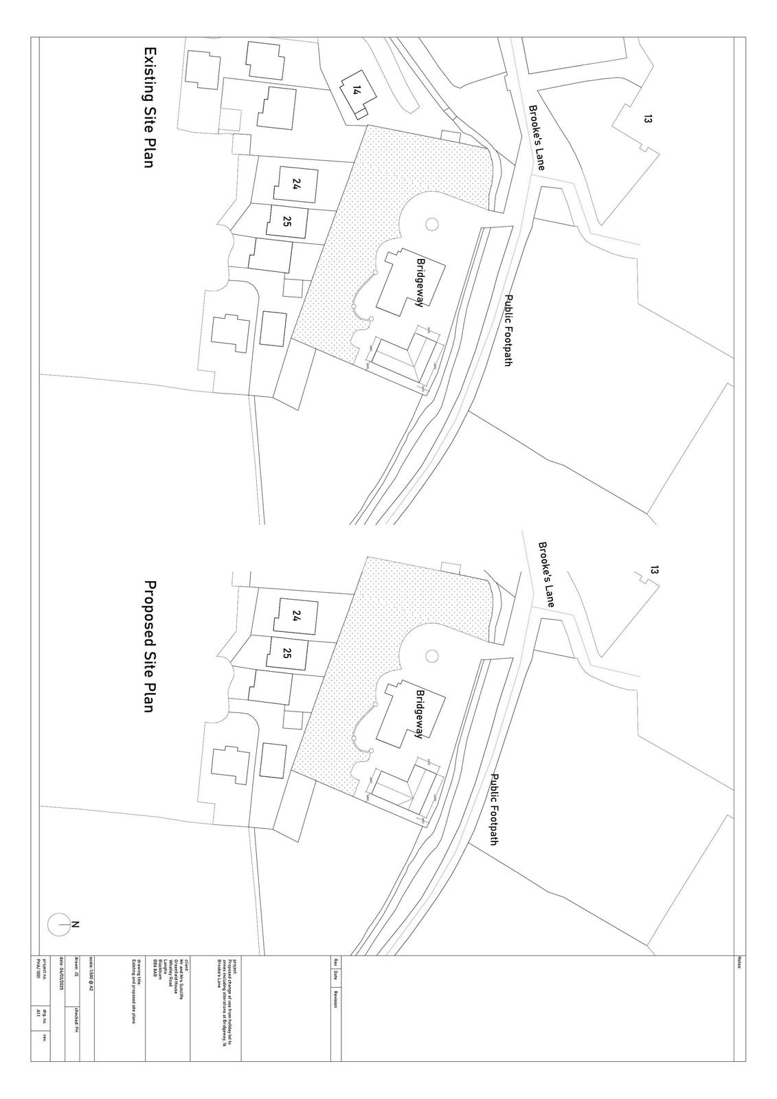
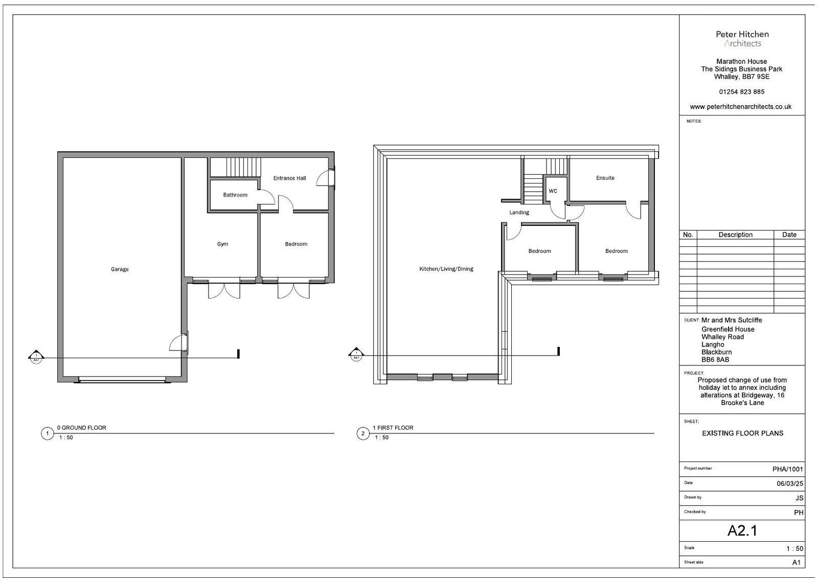
Change of use
Received
07 Mar 2025
New homes
0
Full proposal
Applications for full consent Proposed change of use of temporary holiday let back to annex accommodation, conversion of garage to habitable space and fenestration alterations to existing detached garage/ annex building.
Documents
Have your say
Your comment matters. Councils must consider every representation that raises material planning considerations.