← Ribble Valley Borough Council
3/2025/0228
Ribble Valley Borough Council
Status
Decided - Final Decision
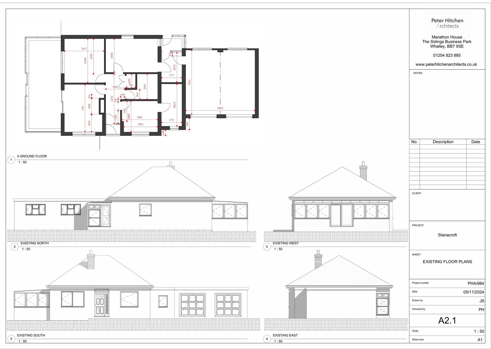
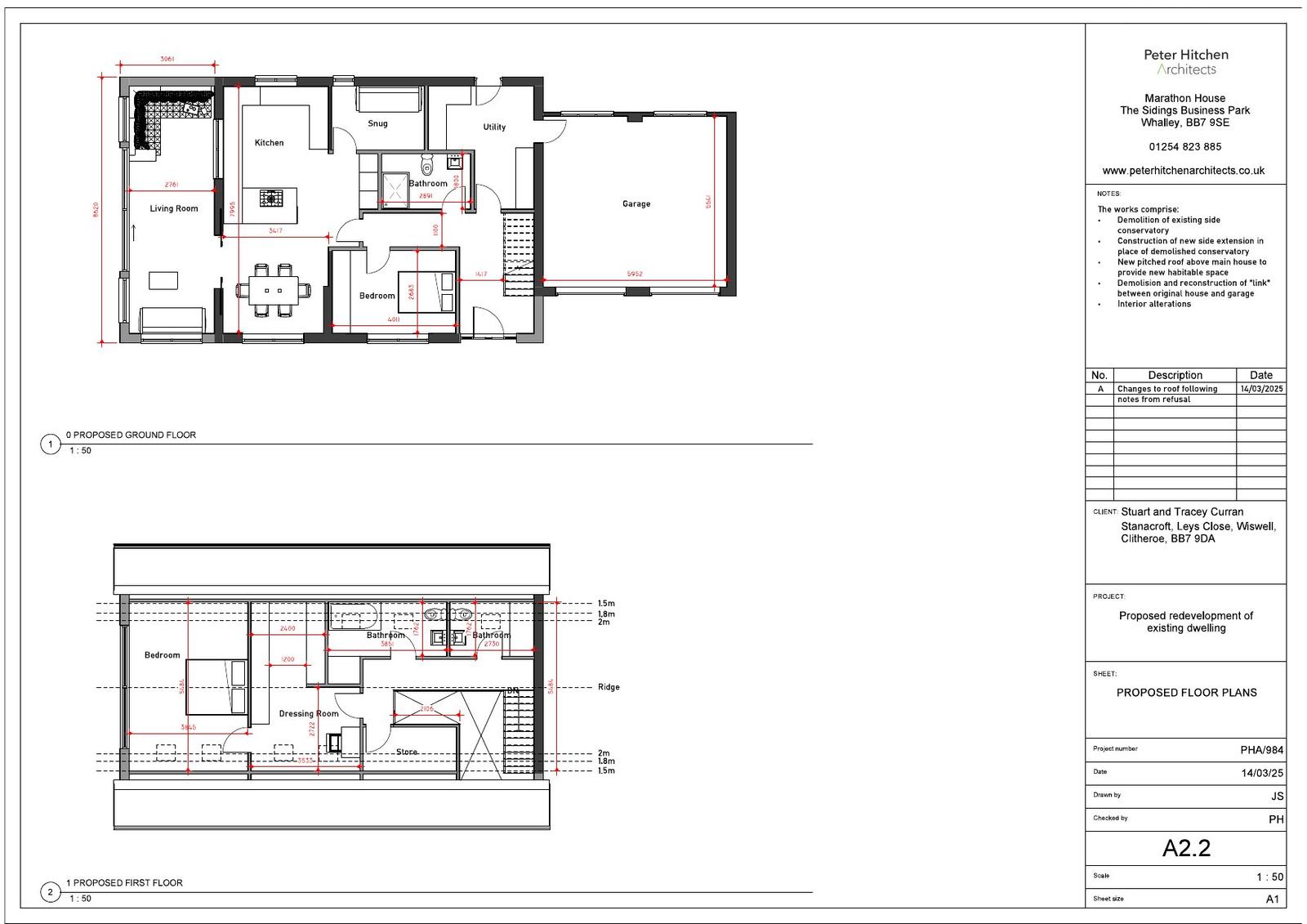
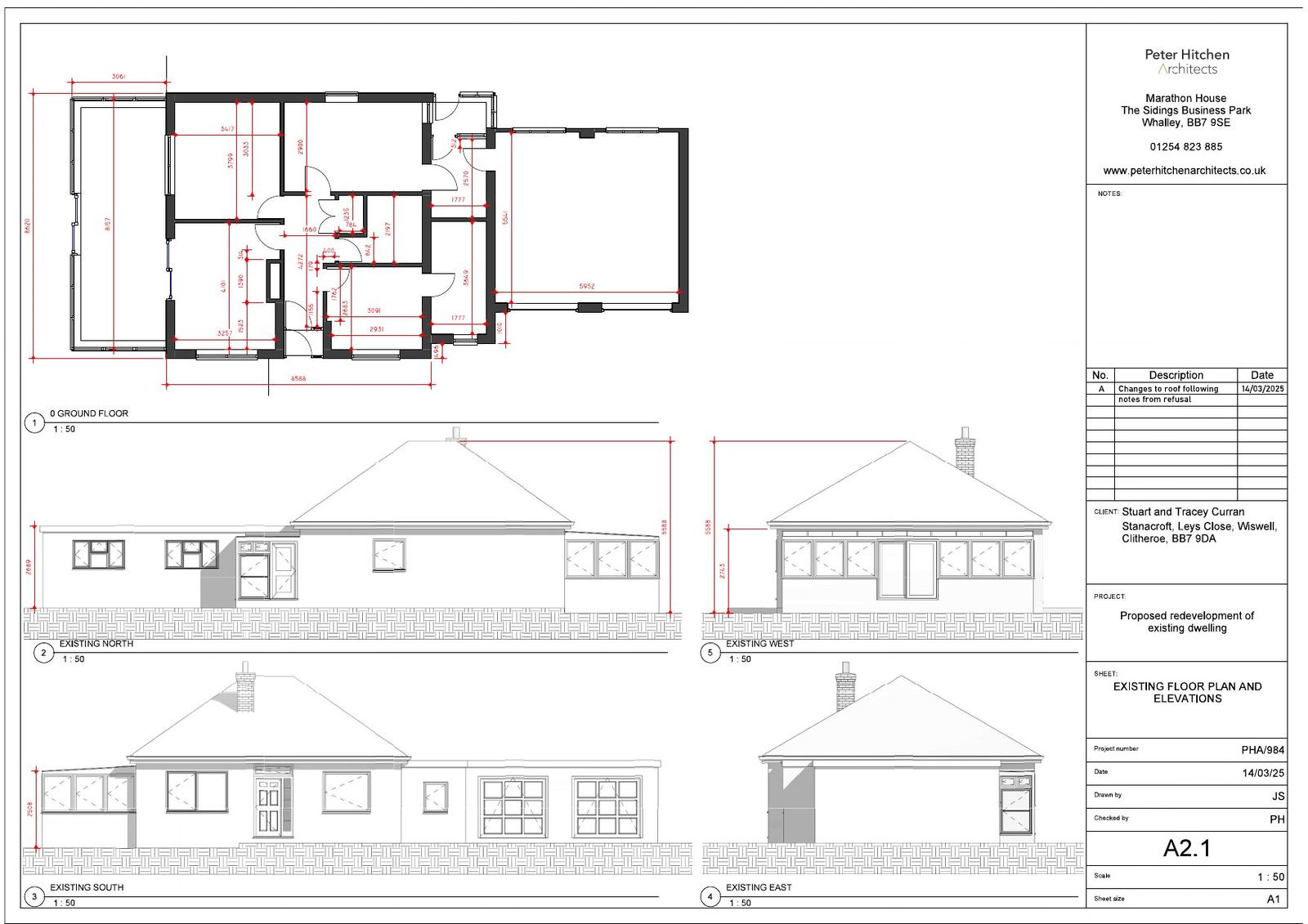
House extension
Received
19 Mar 2025
New homes
0
Full proposal
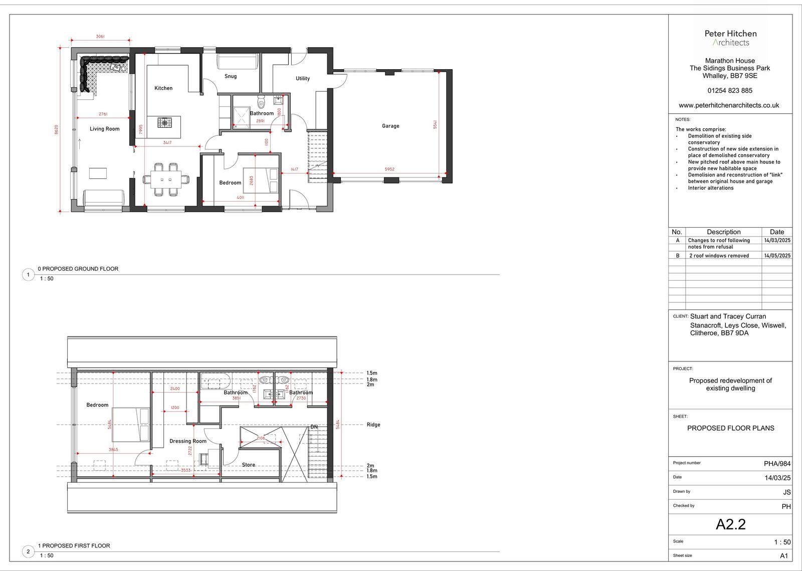
Applications for full consent Proposed raising of roof to accommodate a first-floor level. Two-storey side extension following demolition of existing single-storey side extension, insertion of ten rooflights and additional glazed openings.
Documents
Have your say
Your comment matters. Councils must consider every representation that raises material planning considerations.