← Ribble Valley Borough Council

Status

Withdrawn House extension
Received
21 Mar 2025
New homes
0

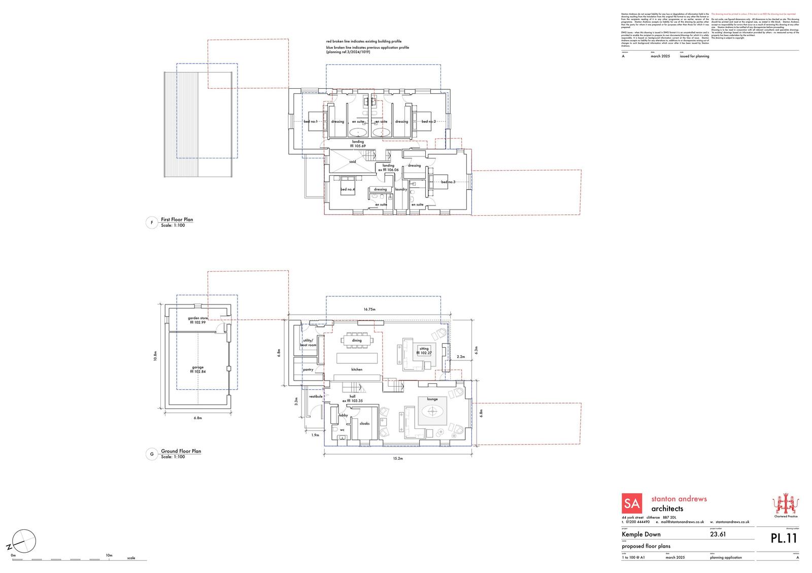
Full proposal

Applications for full consent Proposed demolition of granny annexe and single-storey extension, internal remodelling and extension of the house, construction of new double garage and garden store.

Documents

25 0240 3rd party response 160425
Document
Not yet archived · Original link
25 0240 Application Form
Document
Not yet archived · Original link
25 0240 Arb Implications Assessment
Document
Not yet archived · Original link
25 0240 Arb Method Statement
Document
Not yet archived · Original link
25 0240 Bat Survey Aug24
Document
Not yet archived · Original link
25 0240 Design Statement
Document
Not yet archived · Original link
25 0240 Existing Elevations and section
Document
Not yet archived · Original link
25 0240 Existing Floor Plans
Document
Not yet archived · Original link
25 0240 Highways response
Document
Not yet archived · Original link
25 0240 Location Plan
Document
Not yet archived · Original link
25 0240 Neighbour Notification Letter
Document
Not yet archived · Original link
25 0240 Parish response
Document
Not yet archived · Original link
25 0240 Planning Statement
Document
Not yet archived · Original link
25 0240 Proposed Elevations and Section
Document
Not yet archived · Original link
25 0240 Visibility Plan
Document
Not yet archived · Original link

Have your say

Your comment matters. Councils must consider every representation that raises material planning considerations.

Write a comment