← Ribble Valley Borough Council

Status

Decided - Final Decision House extension
Received
15 Jul 2025
New homes
0

Full proposal

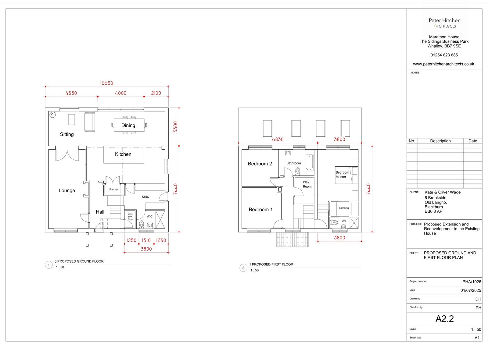
Applications for full consent Proposed extension and redevelopment of existing house including two storey side extension, single storey rear extension with external flue and new front porch.

Documents

25 0549 Amended Proposed Elevations 11sep25
Document
Not yet archived · Original link
25 0549 Amended Proposed Flue 11sep25
Document
Not yet archived · Original link
25 0549 Application Form
Document
Not yet archived · Original link
25 0549 Bat Report
Document
Not yet archived · Original link
25 0549 Decision Notice
Document
Not yet archived · Original link
25 0549 Delegated Report
Document
Not yet archived · Original link
25 0549 Design Statement
Document
Not yet archived · Original link
25 0549 Existing Plans
Document
Not yet archived · Original link
25 0549 Flue Details 11sep25
Document
Not yet archived · Original link
25 0549 Highways 2Sept
Document
Not yet archived · Original link
25 0549 Location Plan
Document
Not yet archived · Original link
25 0549 Neighbour Notifications
Document
Not yet archived · Original link
25 0549 Proposed Elevations
Document
Not yet archived · Original link
25 0549 Proposed Flue
Document
Not yet archived · Original link
Document
Archived · Original link
Document
Archived · Original link
25 0549 Supporting Photos
Document
Not yet archived · Original link

Have your say

Your comment matters. Councils must consider every representation that raises material planning considerations.

Write a comment