← Ribble Valley Borough Council

Status

Decided - Final Decision Change of use
Received
24 Jul 2025
New homes
2

Full proposal

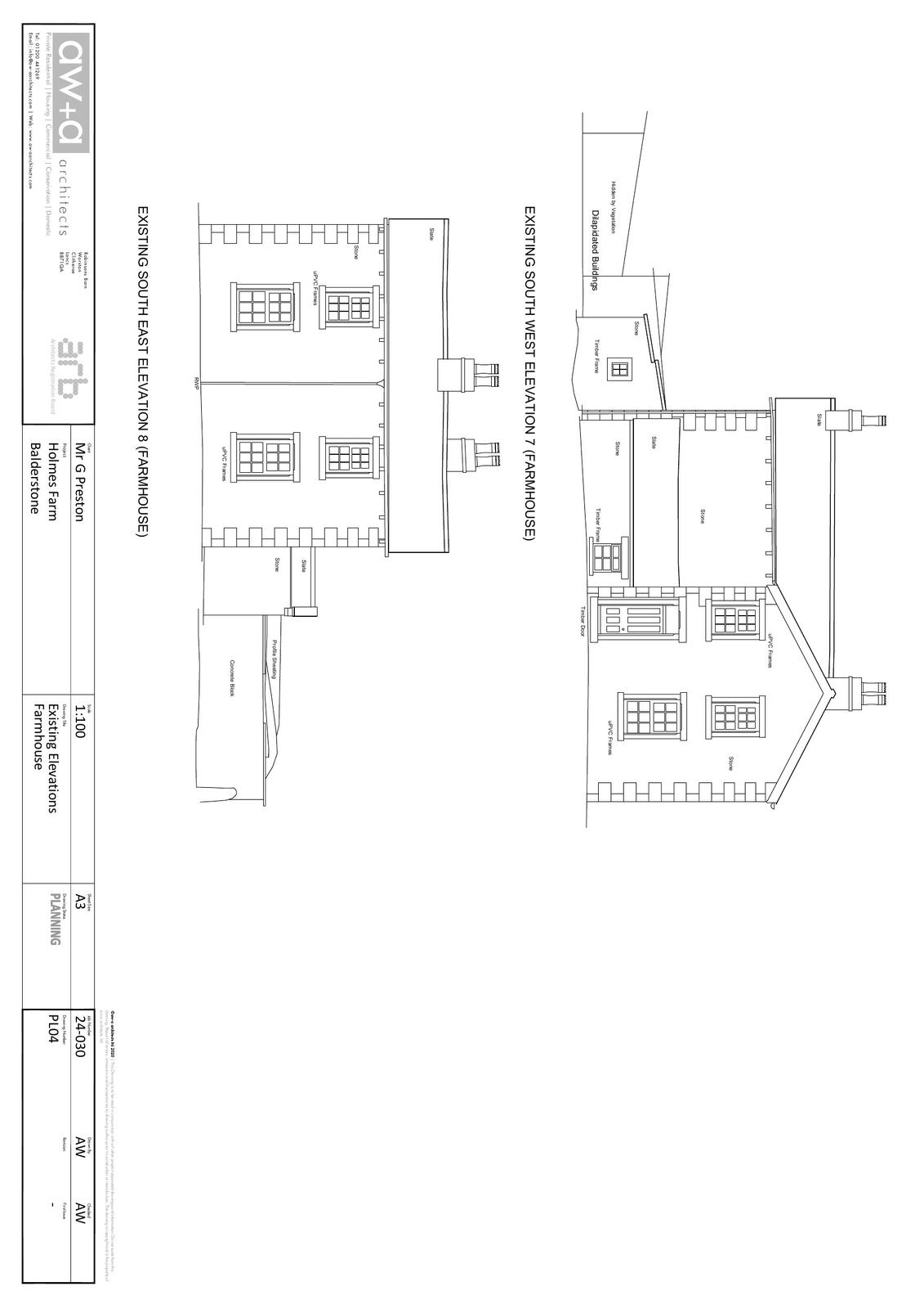
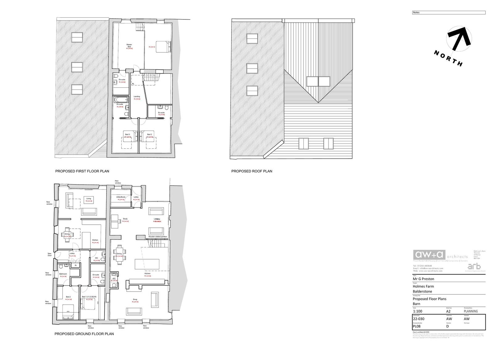
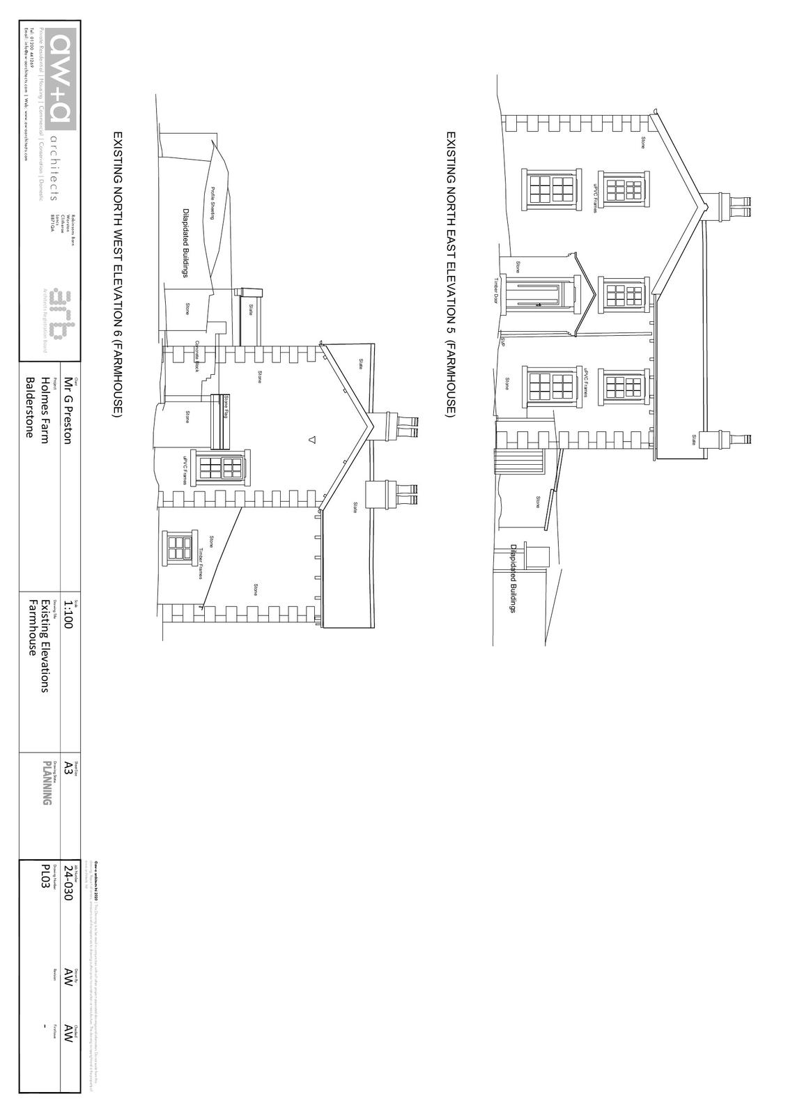
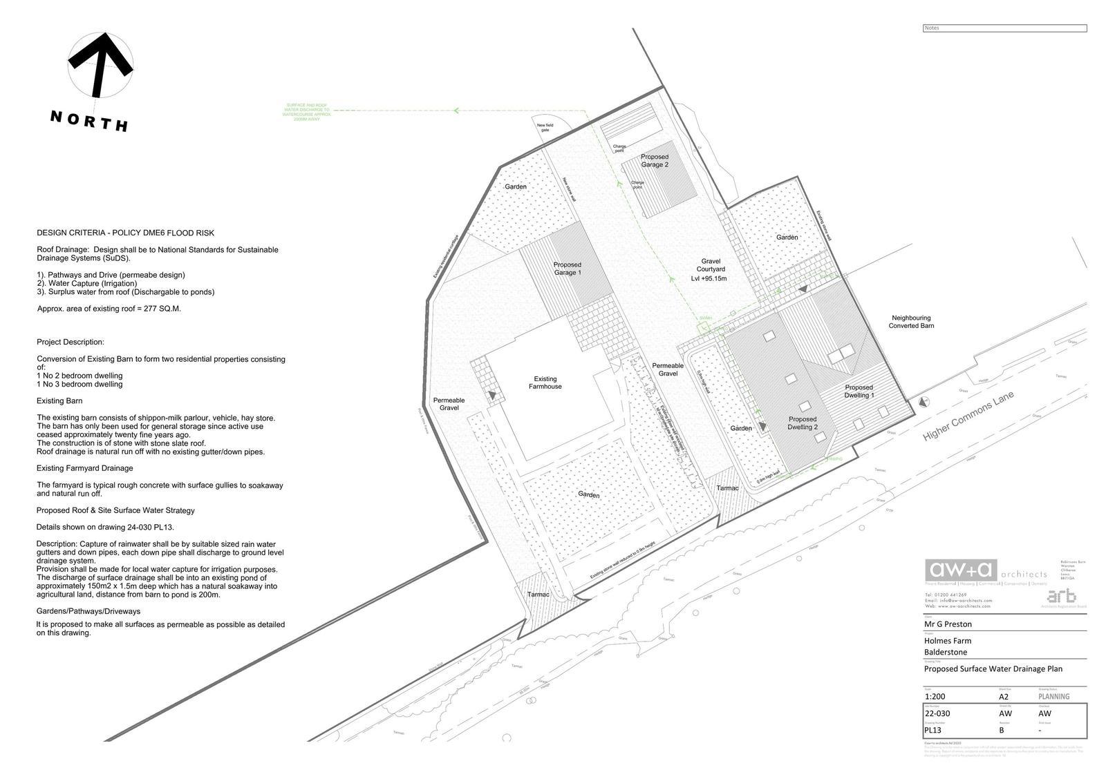
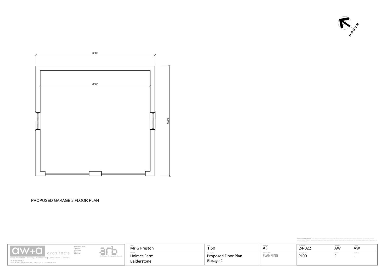
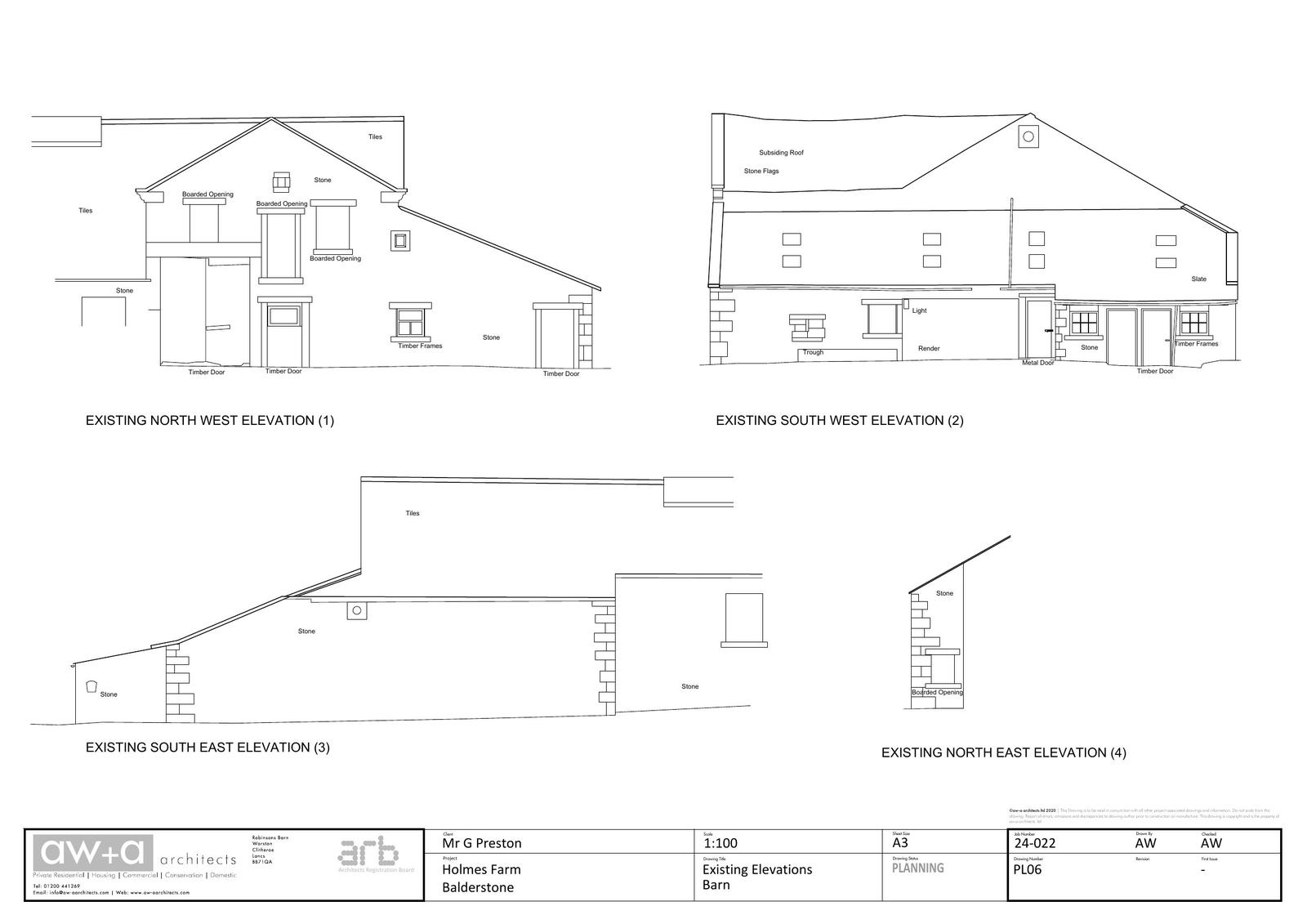
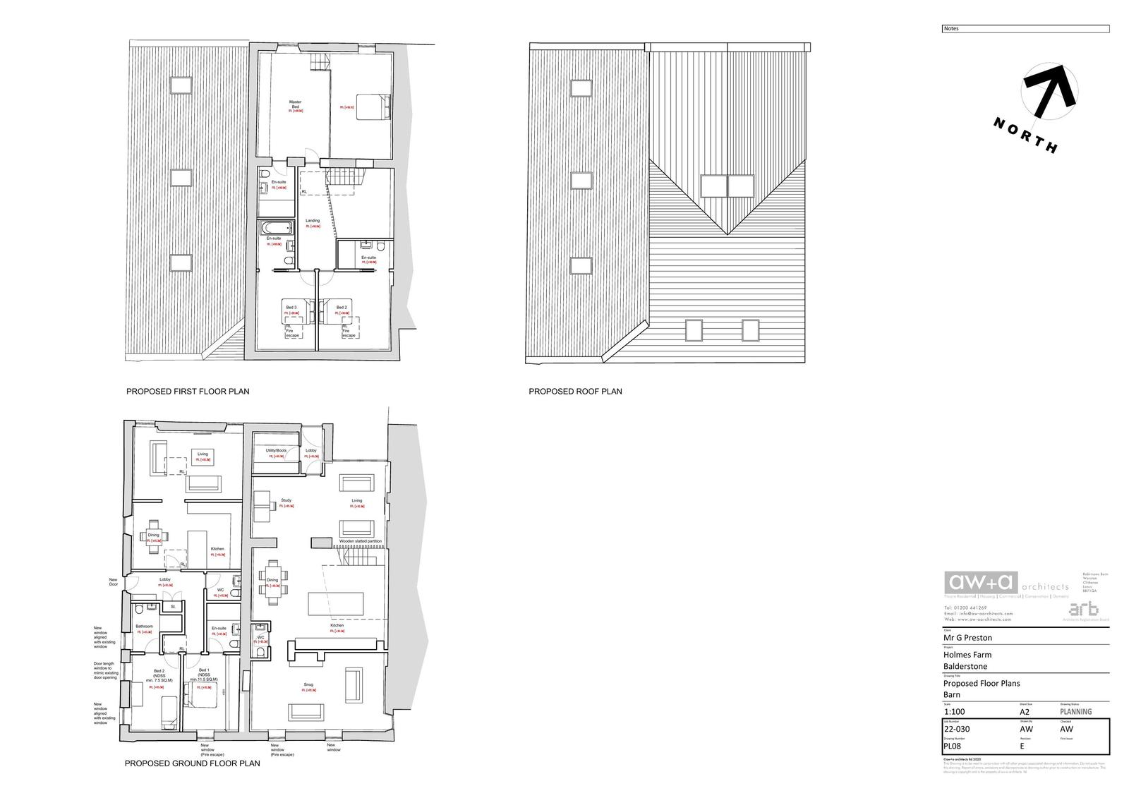
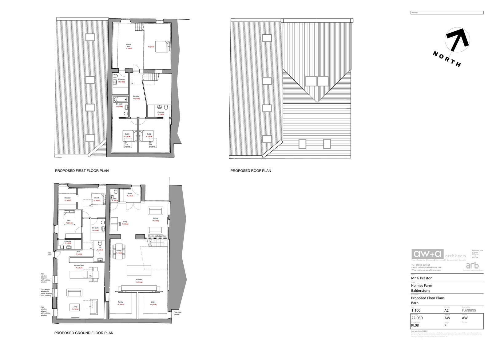
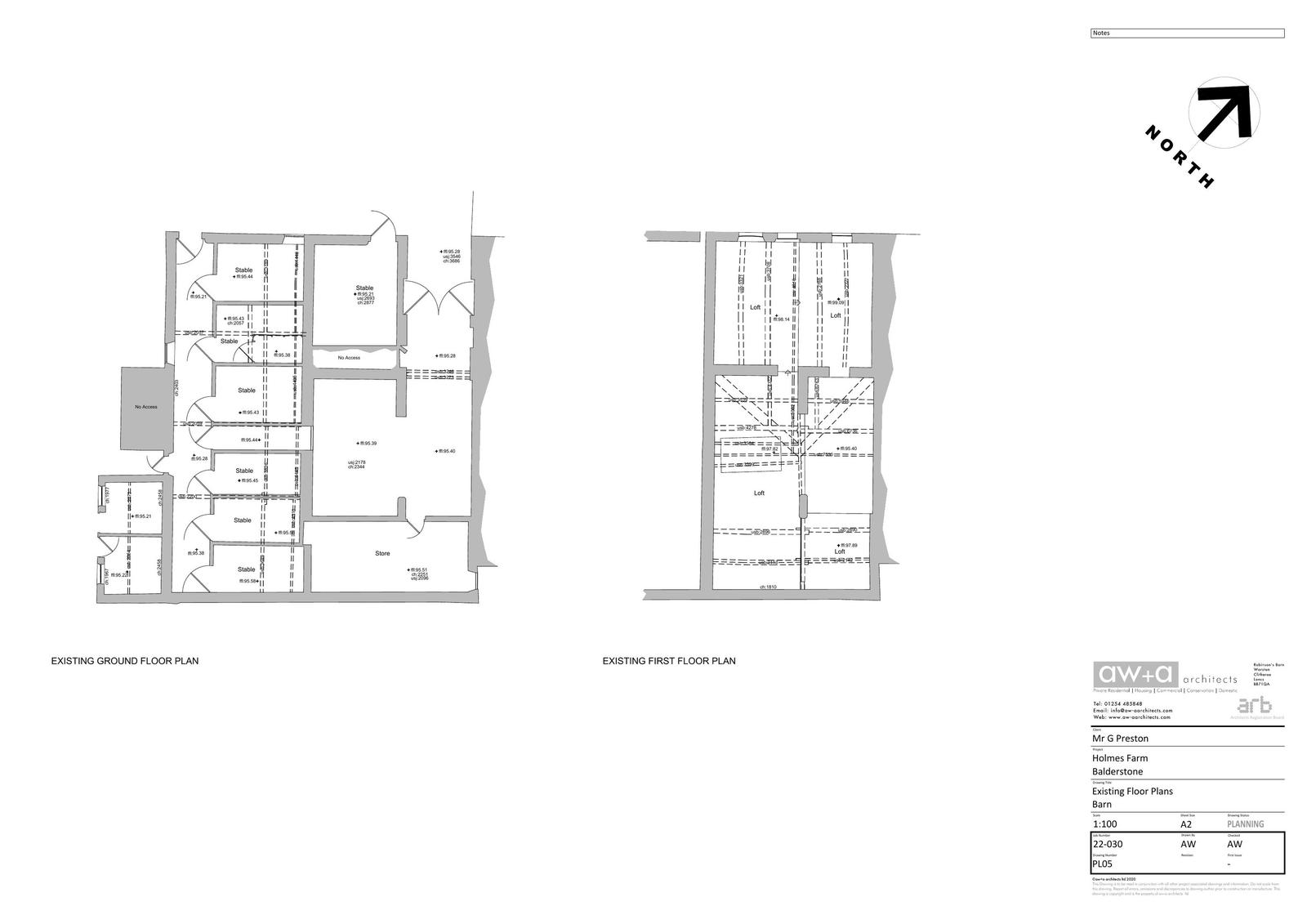
Applications for full consent Full planning permission for conversion of barn into two dwellings. Alterations to access and construction of detached triple garage. Creation of new vehicle access to farmhouse and construction of attached double garage.

Documents

Document
Archived · Original link
Document
Archived · Original link
Document
Archived · Original link
Document
Archived · Original link
RV Consult Archaeology
Document
Not yet archived · Original link

Have your say

Your comment matters. Councils must consider every representation that raises material planning considerations.

Write a comment