← Ribble Valley Borough Council

Status

Decided - Final Decision Demolition
Received
26 Aug 2025
New homes
0

Full proposal

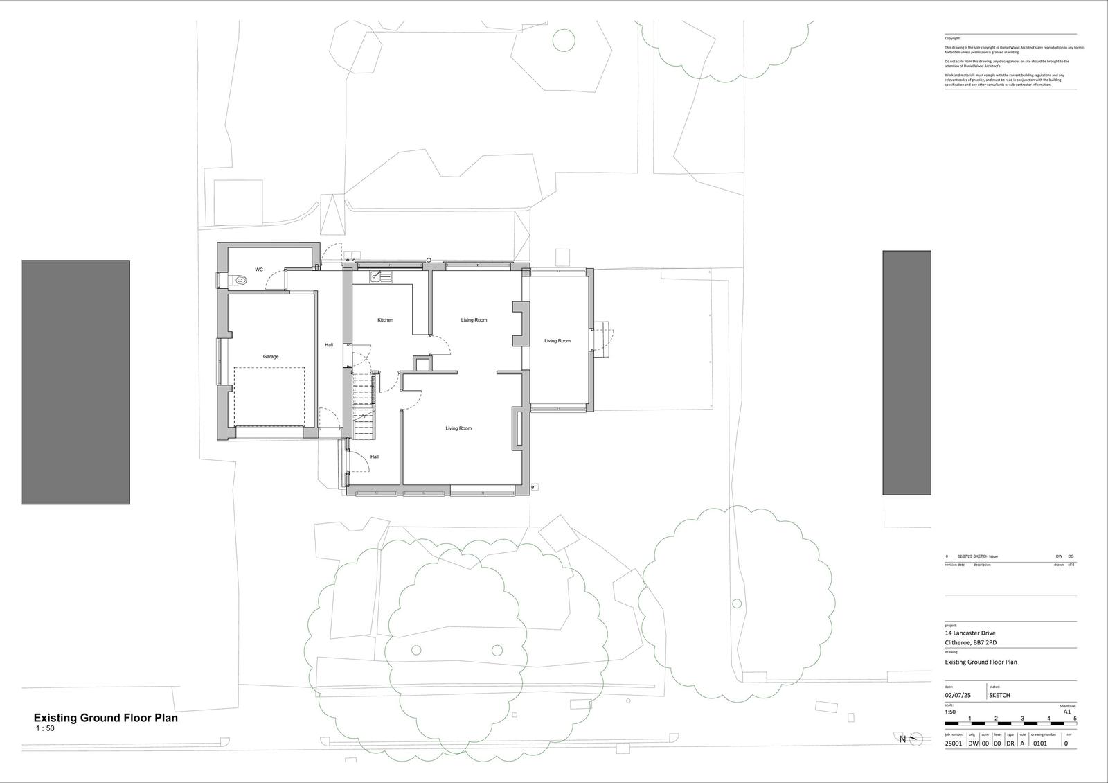
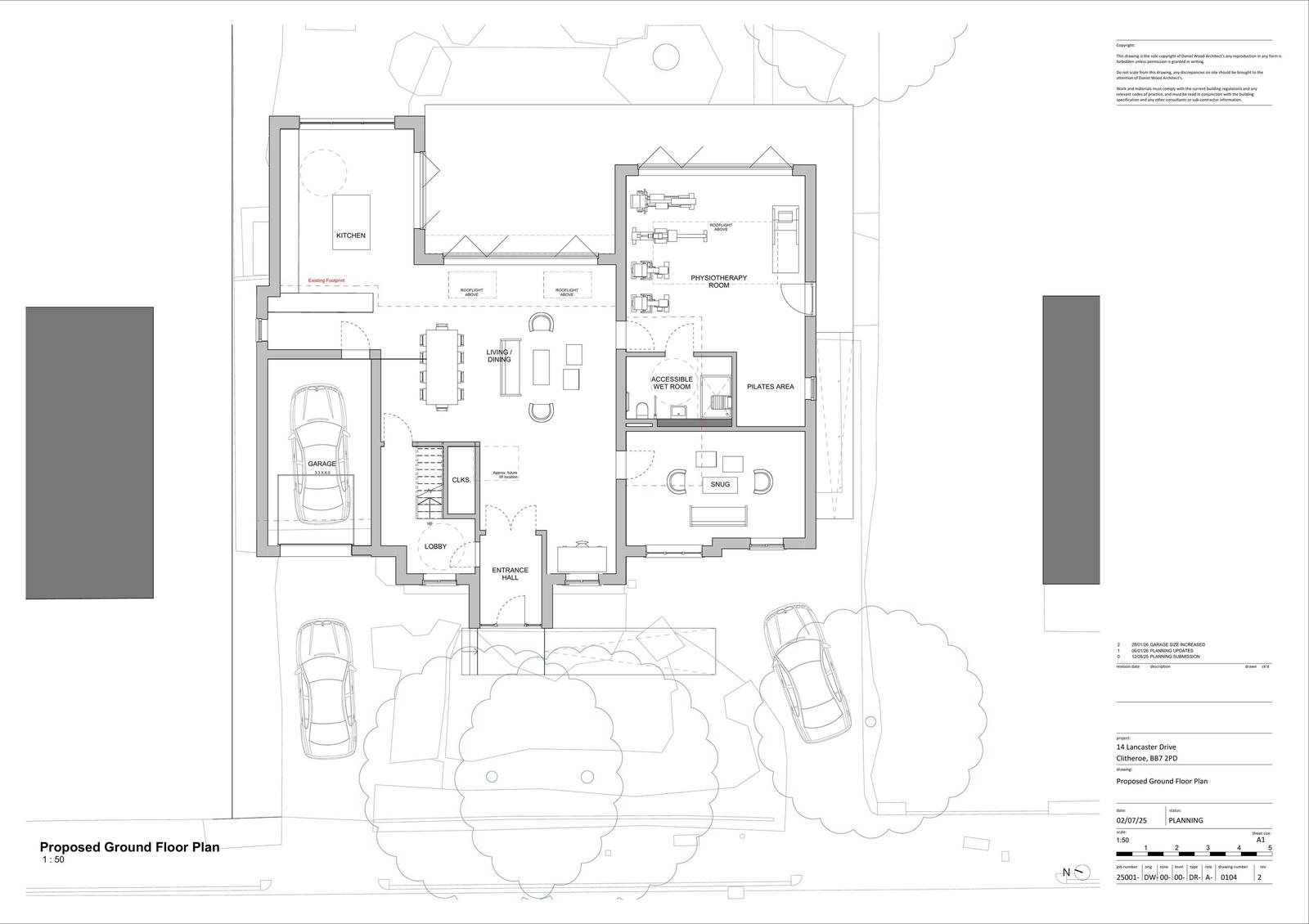
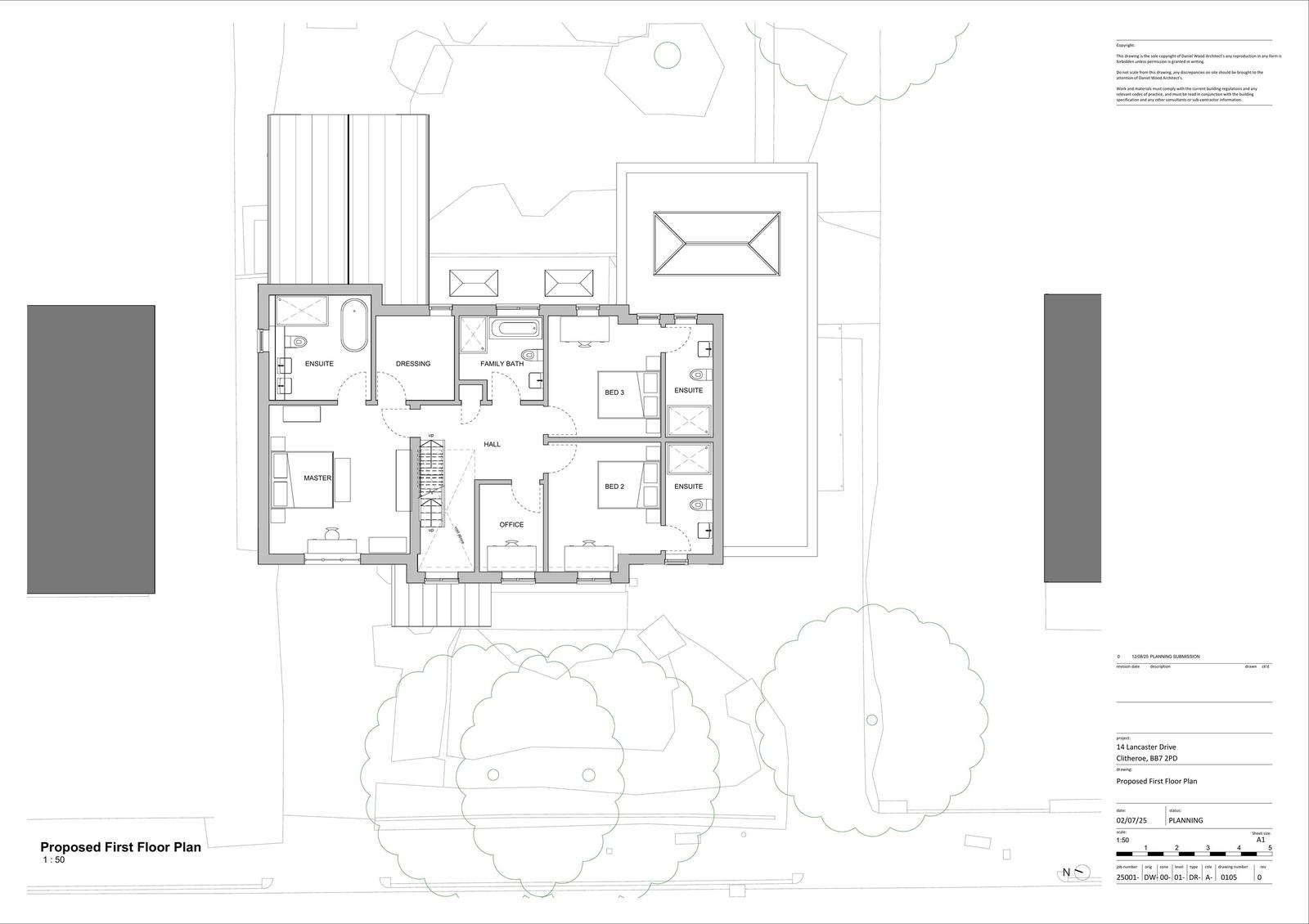
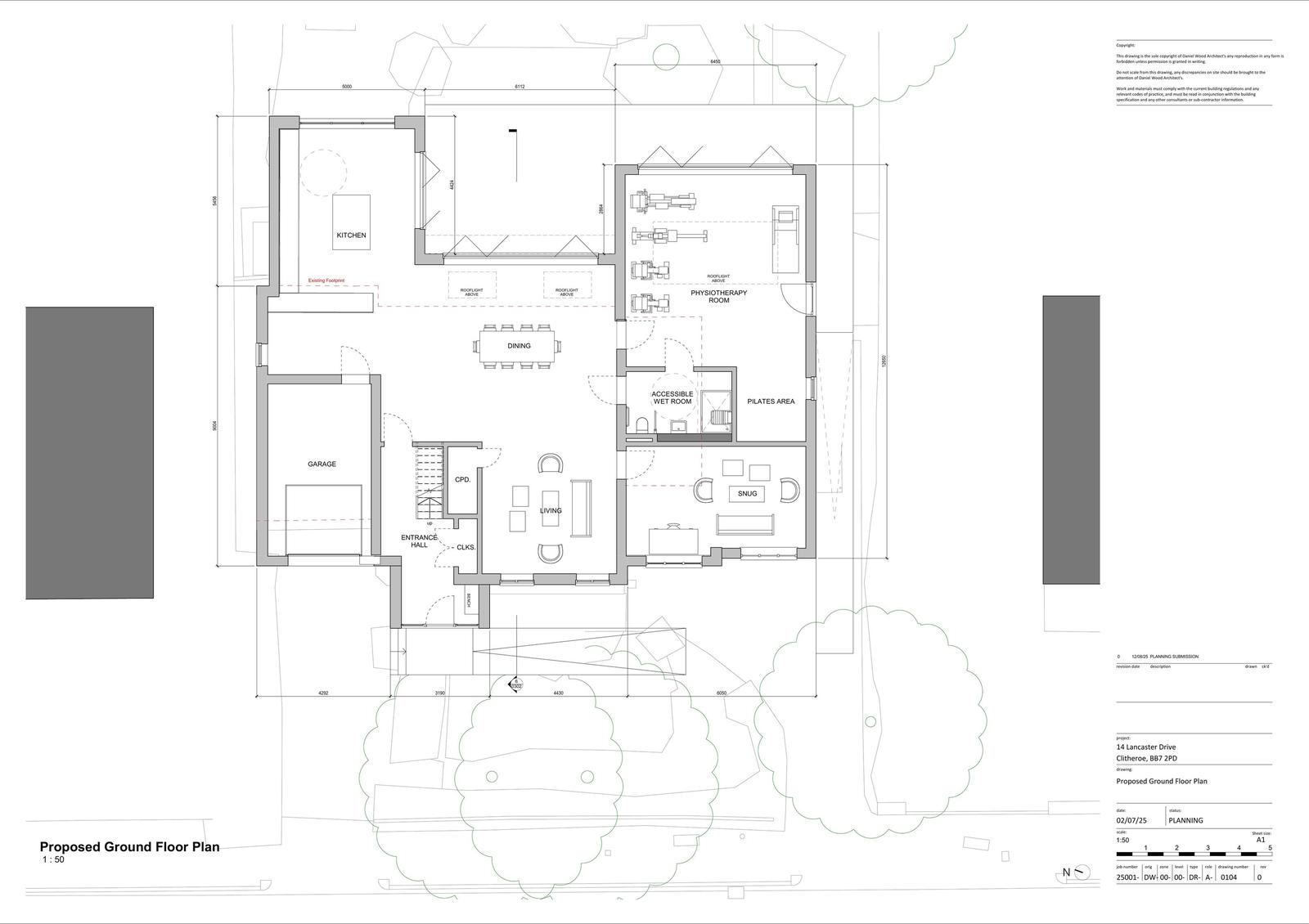
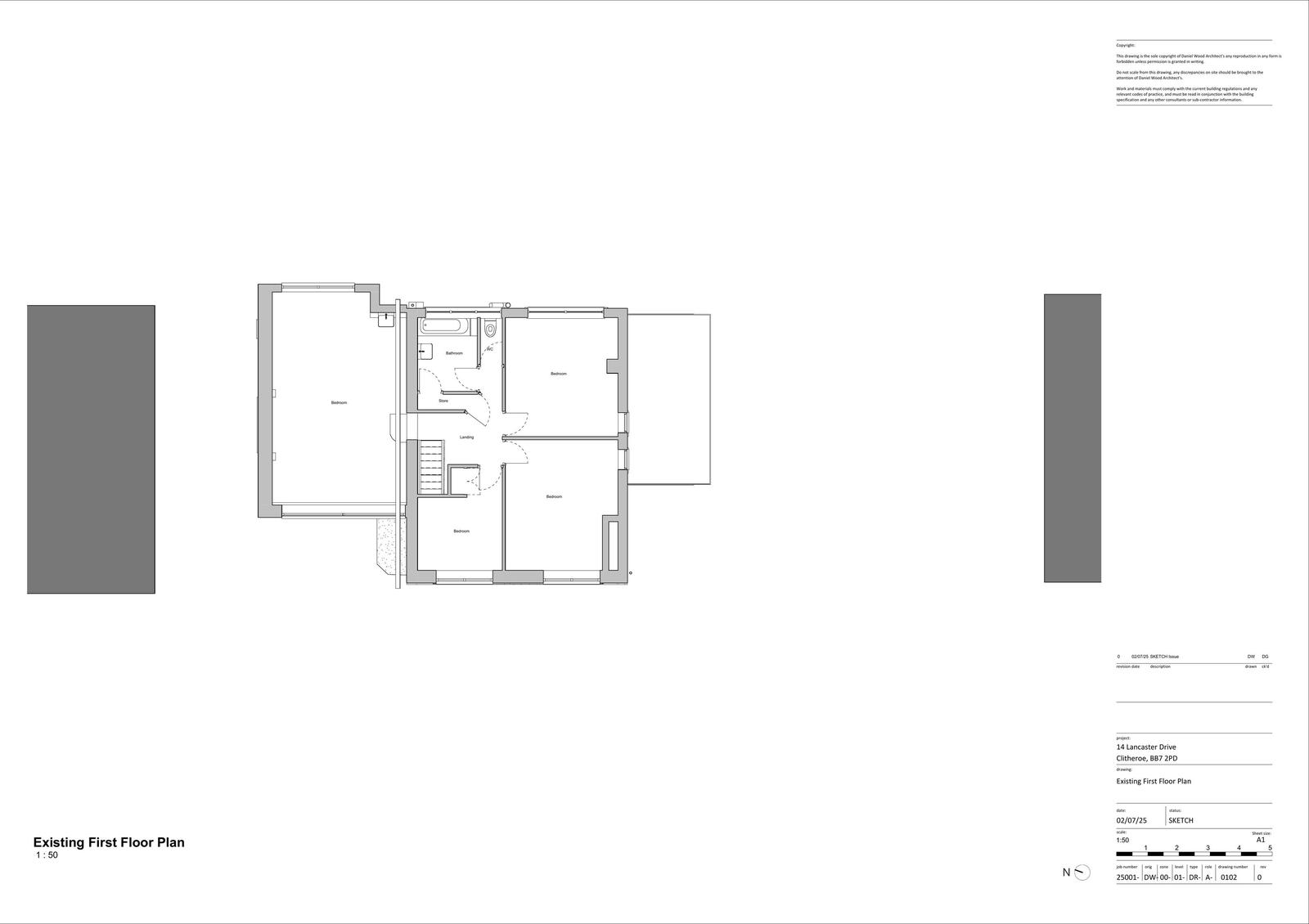
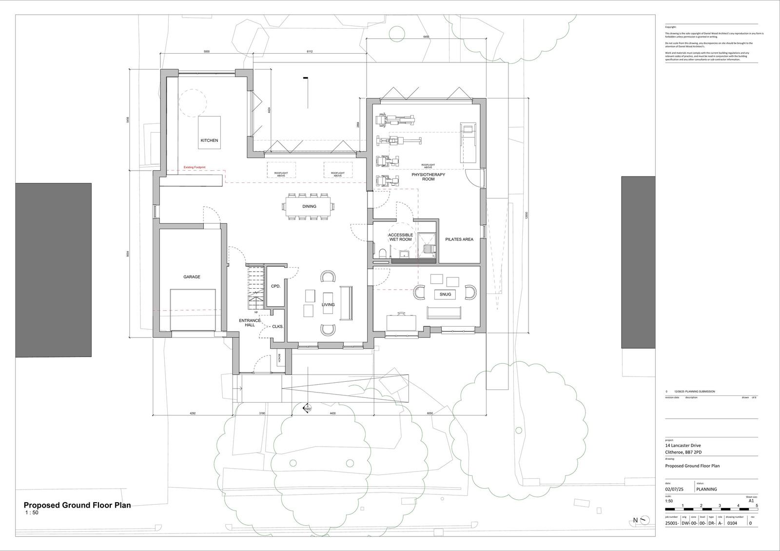
Applications for full consent Proposed demolition of existing dwelling and replacement with detached 3 storey property with intergral garage and rear dormer extensions

Documents

Document
Archived · Original link
Document
Archived · Original link
Document
Archived · Original link
Document
Archived · Original link
Document
Archived · Original link

Have your say

Your comment matters. Councils must consider every representation that raises material planning considerations.

Write a comment