← Ribble Valley Borough Council

Status

Decided - Final Decision Demolition
Received
02 Sep 2025
New homes
0

Full proposal

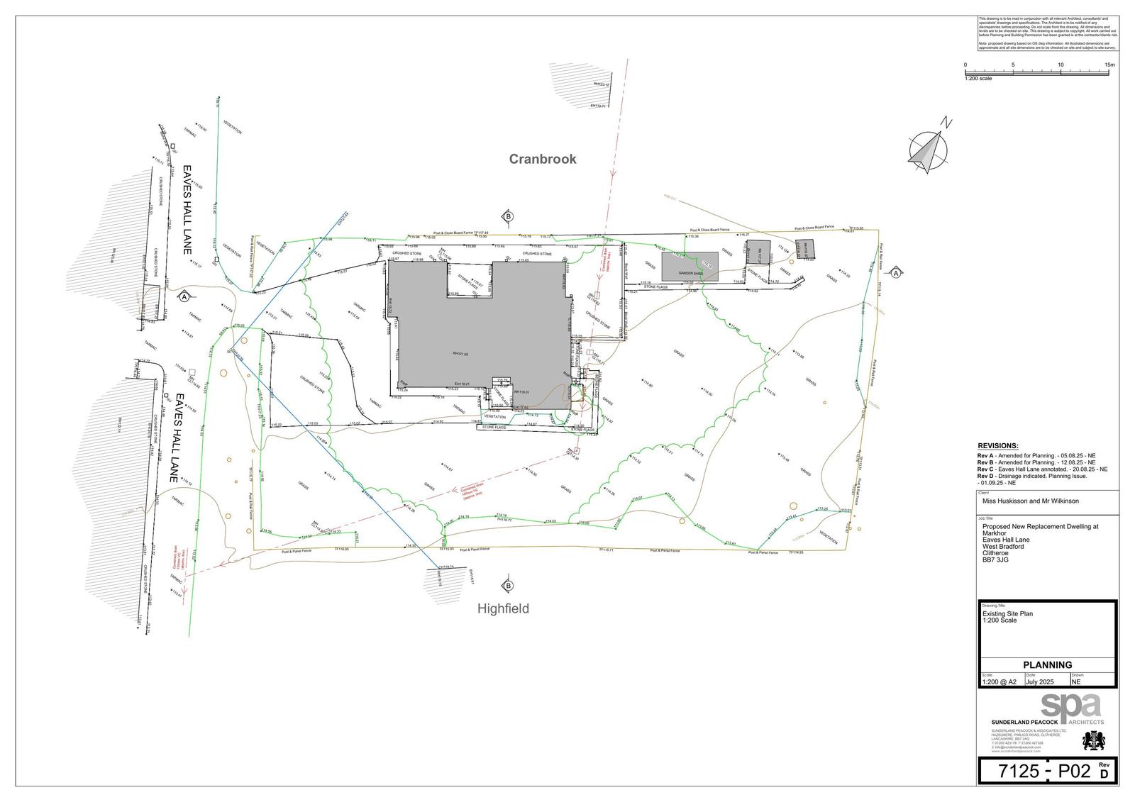
Applications for full consent Proposed demolition of existing bungalow, to be replaced with the erection of a new dormer bungalow on existing site.

Documents

25 0696 AMENDED 03112025 External Materials Information
Document
Not yet archived · Original link
25 0696 AMENDED 03112025 Proposed Streetscape and photos
Document
Not yet archived · Original link
25 0696 application form
Document
Not yet archived · Original link
25 0696 arb impact assessment
Document
Not yet archived · Original link
25 0696 bat survey
Document
Not yet archived · Original link
25 0696 bio div net gain assessment
Document
Not yet archived · Original link
25 0696 Decision notice
Document
Not yet archived · Original link
25 0696 Delegated Report
Document
Not yet archived · Original link
25 0696 design and access statement
Document
Not yet archived · Original link
25 0696 Ecology 26Sept
Document
Not yet archived · Original link
25 0696 existing ground floor plan and elevations
Document
Not yet archived · Original link
25 0696 external materials information
Document
Not yet archived · Original link
25 0696 Highways 23Sept
Document
Not yet archived · Original link
25 0696 neighbour notification
Document
Not yet archived · Original link
25 0696 PEA report
Document
Not yet archived · Original link
25 0696 planning statement
Document
Not yet archived · Original link
25 0696 Proposed External Building Lighting 24Oct25
Document
Not yet archived · Original link
25 0696 proposed site sections AA BB
Document
Not yet archived · Original link
25 0696 proposed streetscape and photos
Document
Not yet archived · Original link
25 0696 street view photos
Document
Not yet archived · Original link
25 0696 United Utilities 6Oct
Document
Not yet archived · Original link

Have your say

Your comment matters. Councils must consider every representation that raises material planning considerations.

Write a comment