← Ribble Valley Borough Council
3/2025/0755
Ribble Valley Borough Council
Status
Decided - Final Decision
Change of use
Received
19 Sep 2025
New homes
0
Full proposal
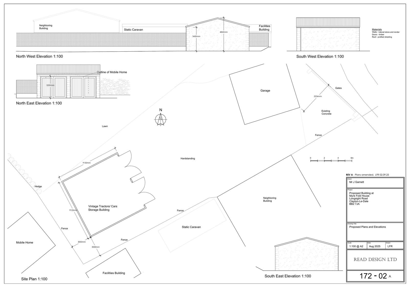
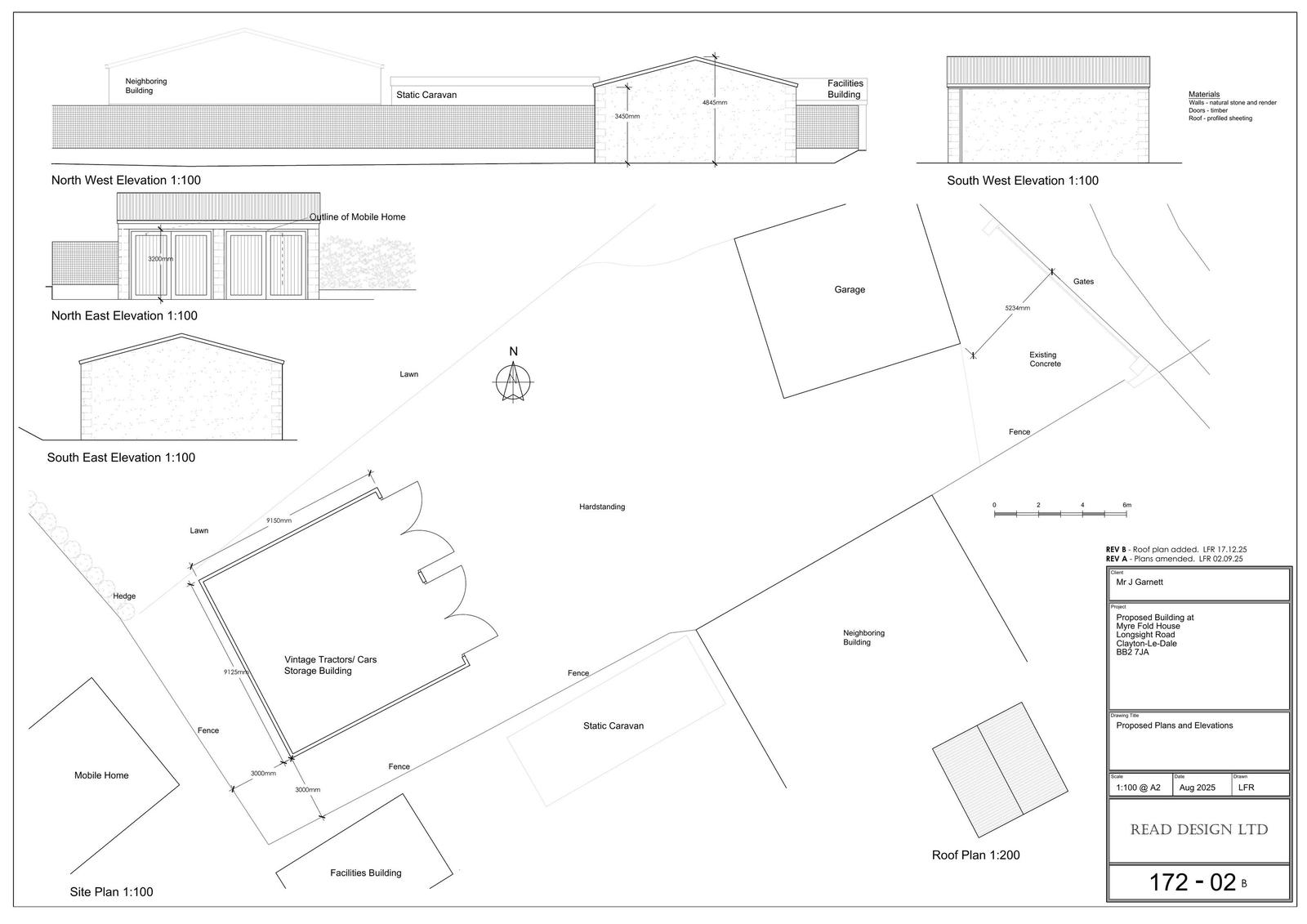
Applications for full consent Proposed garage for the storage of vintage tractors and cars, extension to hardstanding and change of use of land to residential curtilage.
Documents
Have your say
Your comment matters. Councils must consider every representation that raises material planning considerations.