← Ribble Valley Borough Council
3/2025/0843
Ribble Valley Borough Council
Status
Decided - Final Decision
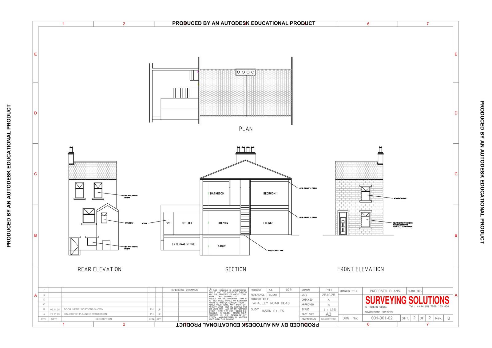
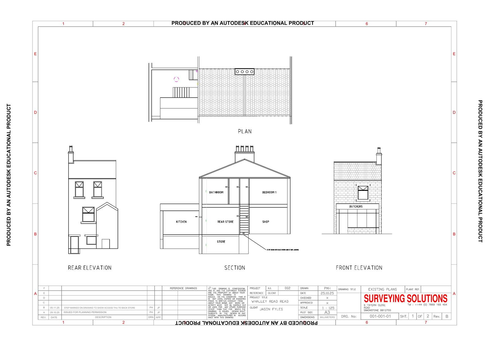
Change of use
Received
17 Oct 2025
New homes
1
Full proposal
Applications for full consent Conversion of commercial premises to residential dwelling.
Documents
Have your say
Your comment matters. Councils must consider every representation that raises material planning considerations.