← Ribble Valley Borough Council

Status

Decided - Final Decision New housing
Received
03 Nov 2025
New homes
1

Full proposal

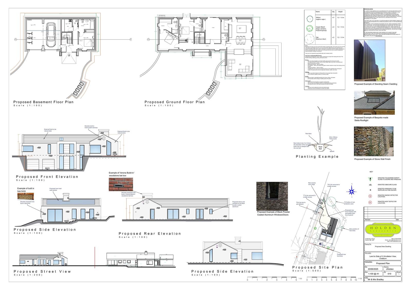
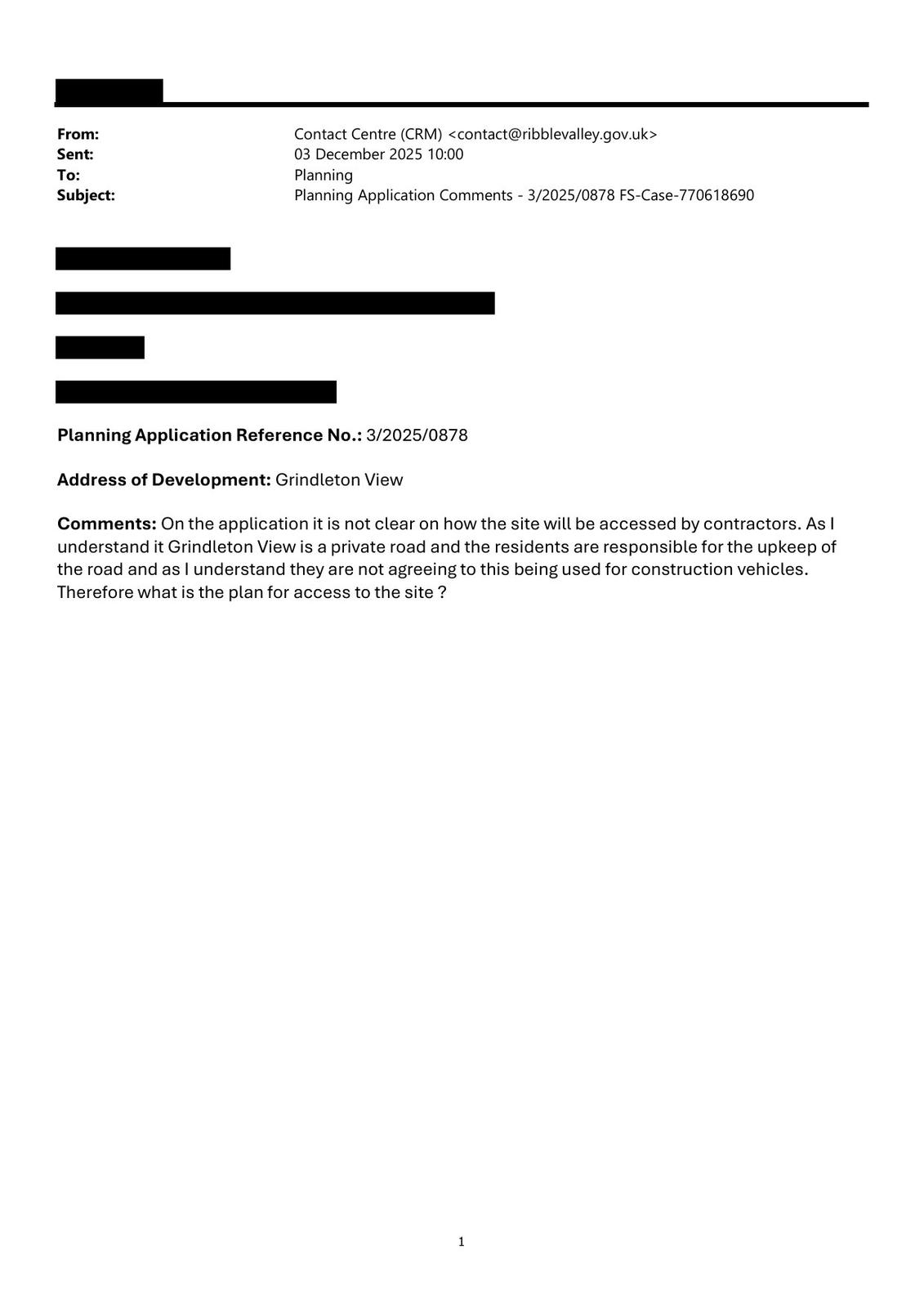
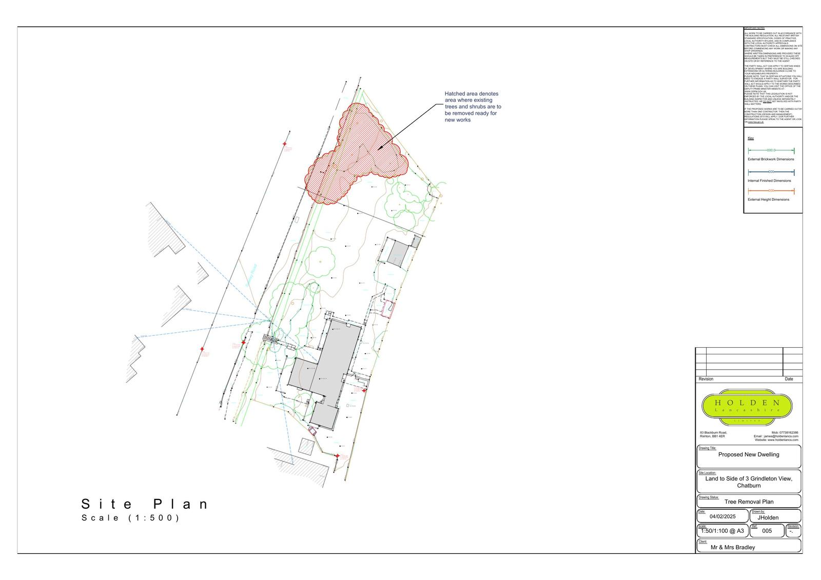
Applications for full consent Proposed new self-build dwelling and creation of new access on land to the side of 3 Grindleton View.

Documents

Document
Archived · Original link
Document
Archived · Original link
Document
Archived · Original link
Document
Archived · Original link

Have your say

Your comment matters. Councils must consider every representation that raises material planning considerations.

Write a comment