← Ribble Valley Borough Council
3/2025/0985
Ribble Valley Borough Council
Status
Decided - Final Decision
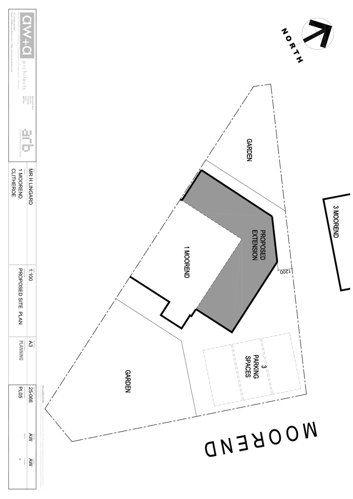
House extension
Received
17 Dec 2025
New homes
0
Full proposal
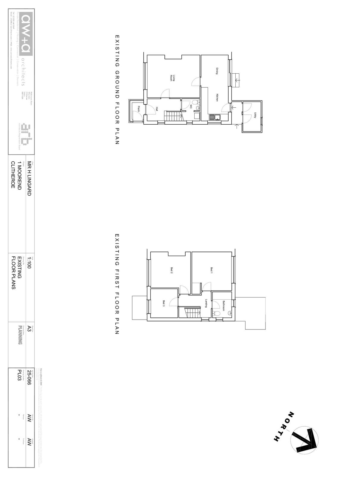
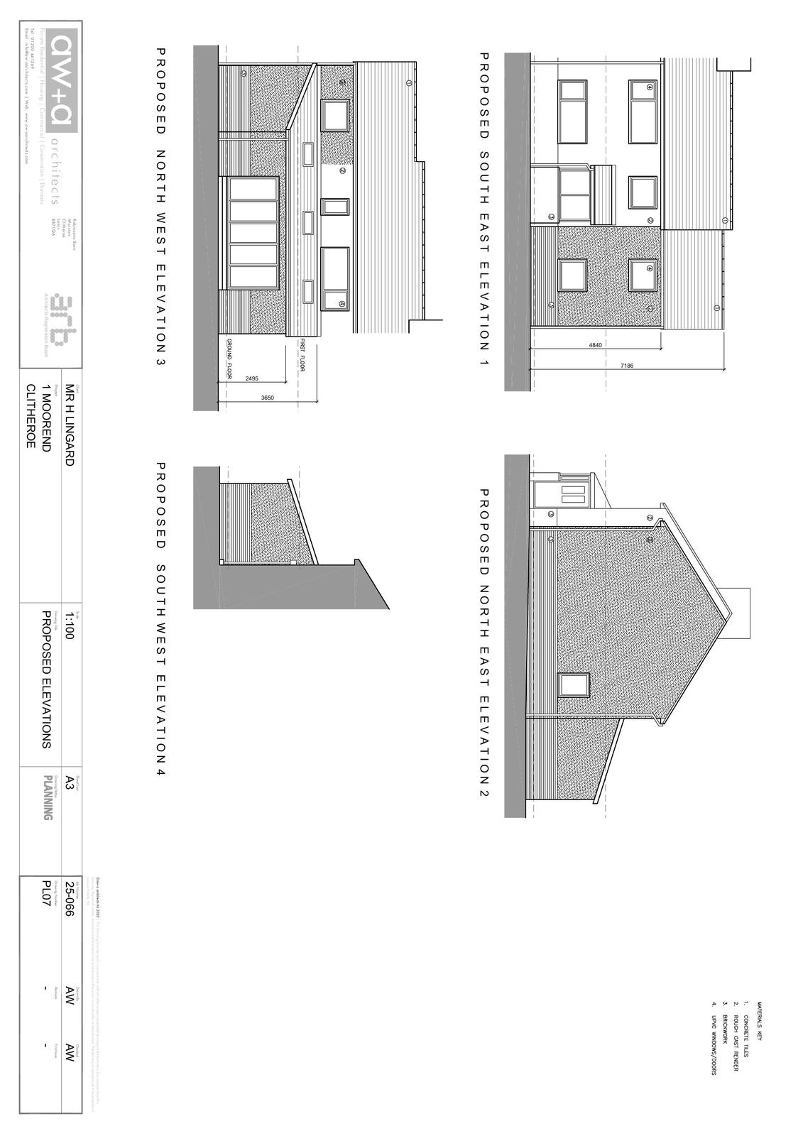
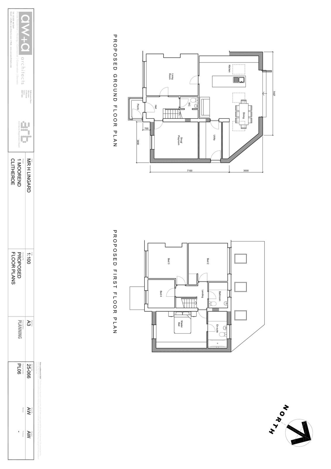
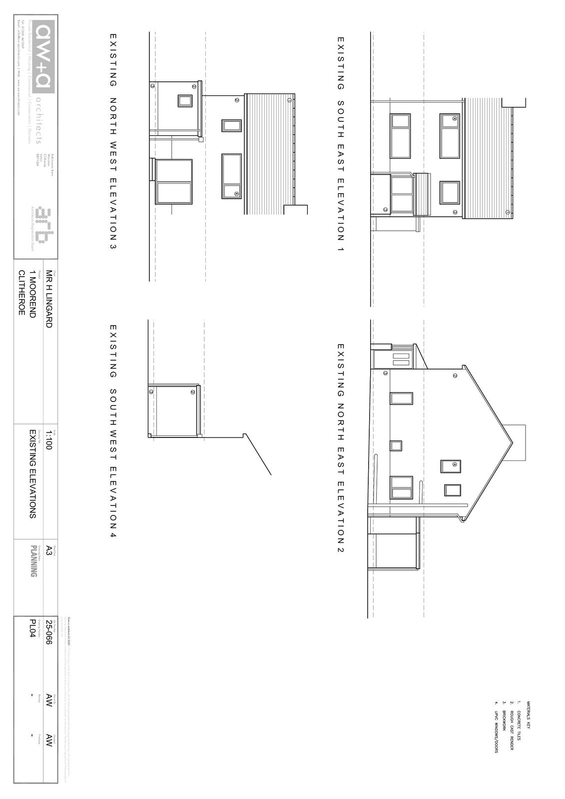
Applications for full consent Proposed demolition of existing single storey rear extension and erection of two storey side extension and single storey rear extension and creation of additional parking spaces.
Documents
Have your say
Your comment matters. Councils must consider every representation that raises material planning considerations.