← London Borough of Richmond upon Thames

Status

Application Refused House extension
Received
19 Sep 2024
New homes
0

Full proposal

Erection of a ground floor rear extension, part two-storey part single-storey front extension and loft conversion with erection of a rear dormer.

Documents

Appeal Dimissed
Appeal Decision
Not yet archived · Original link
Appeal Form
Appeal Form
Not yet archived · Original link
Application for Planning Permission
Application Form
Not yet archived · Original link
CIL Form
Application Form
Not yet archived · Original link
EXISTING ELEVATIONSE103 REV F
Submitted Drawing
Not yet archived · Original link
EXISTING FLOOR PLANS 2E102 REV F
Submitted Drawing
Not yet archived · Original link
EXISTING FLOOR PLANSE101 REV F
Submitted Drawing
Not yet archived · Original link
EXISTING SECTIONE104 REV F
Submitted Drawing
Not yet archived · Original link
Fire Safety Statement
Report
Not yet archived · Original link
FLOOD RISK ASSESSMENT
Report
Not yet archived · Original link
LOCATION PLANSE100 REV F
Submitted Drawing
Not yet archived · Original link
Officer Report
Report
Not yet archived · Original link
OTHER OPEN LAND OF TOWNSCAPE IMPORTANCE REPORT
Report
Not yet archived · Original link
PROPOSED ELEVATIONSP103 REV F
Submitted Drawing
Not yet archived · Original link
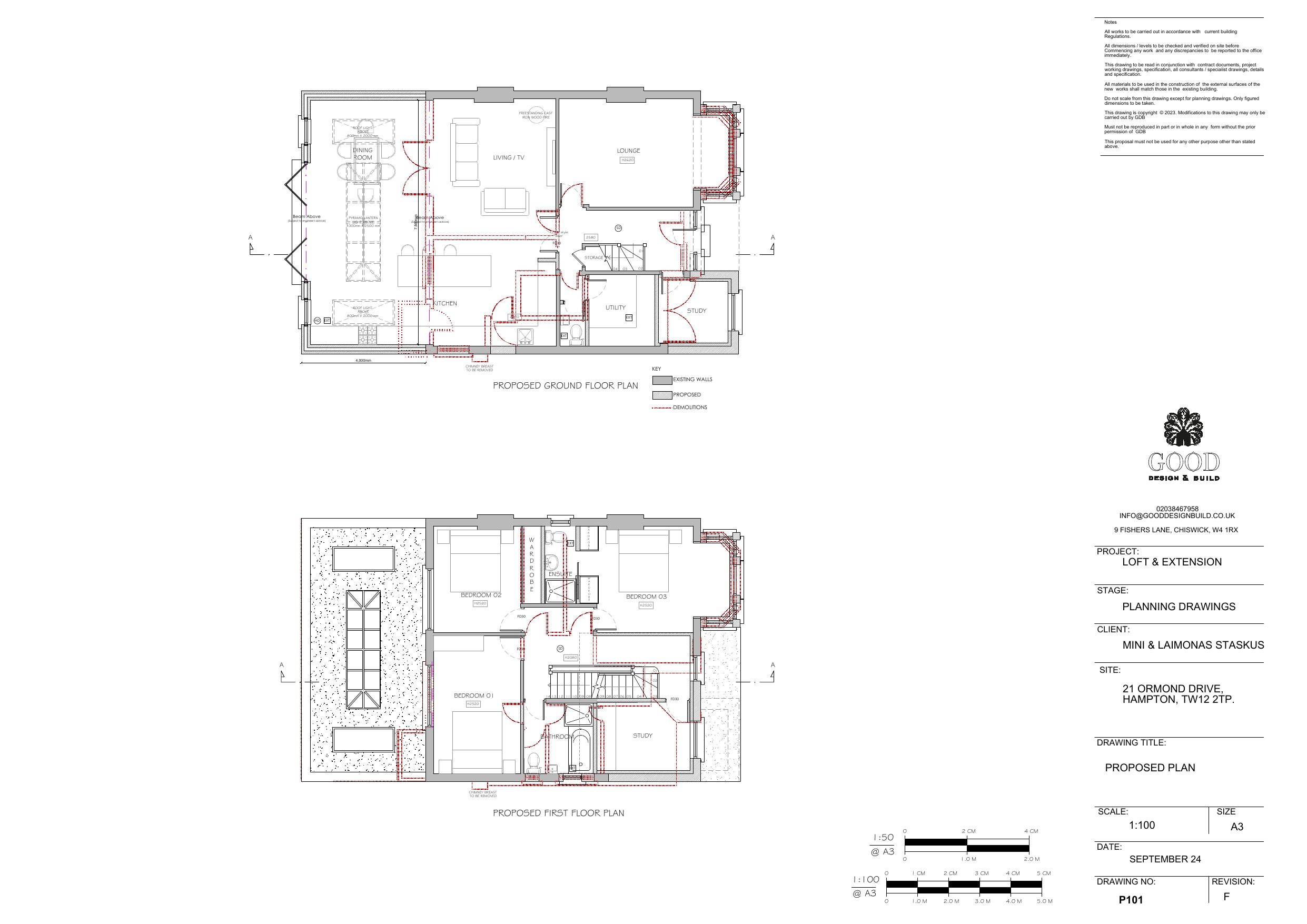
Submitted Drawing
Archived · Original link
Submitted Drawing
Archived · Original link
PROPOSED SECTIONP104 REV F
Submitted Drawing
Not yet archived · Original link
Questionnaire
Appeal Questionnaire
Not yet archived · Original link
REFUSED
Decision
Not yet archived · Original link
Statement of Case
Appeal Appellant`s Case
Not yet archived · Original link
Suggested Conditions
Appeal Council`s Case
Not yet archived · Original link
SUPPORTING INFORMATION
Report
Not yet archived · Original link

Have your say

Your comment matters. Councils must consider every representation that raises material planning considerations.

Write a comment