← London Borough of Richmond upon Thames

Status

Application Refused House extension
Received
11 Oct 2024
New homes
0

Full proposal

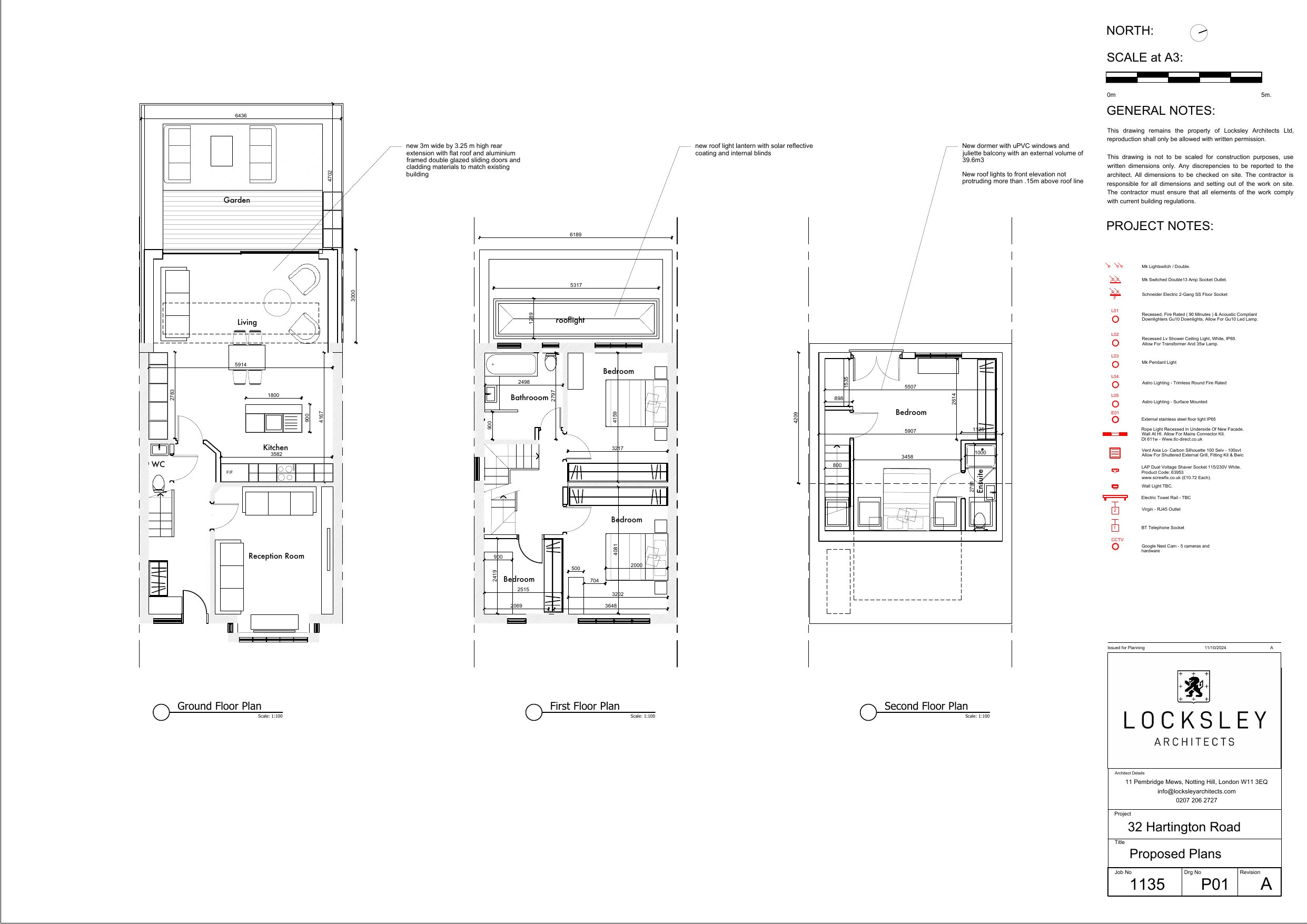
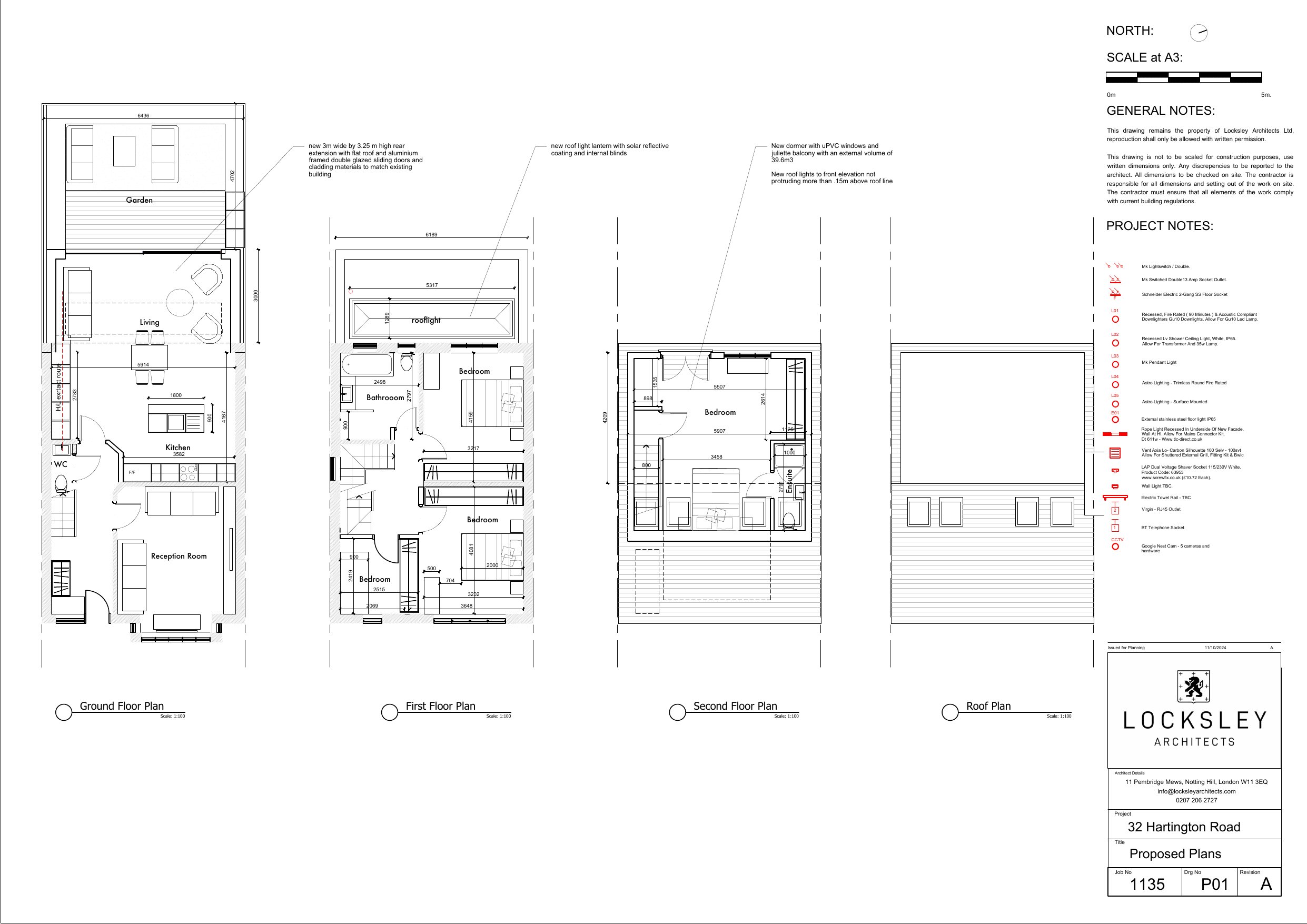
Construction of rear extension with metal framed doors and roof extension with Juliette balcony and materials to match existing.

Documents

Application for Planning Permission
Application Form
Not yet archived · Original link
CIL FORM
Application Form
Not yet archived · Original link
EXISTING ELEVAITONSE02
Superseded Drawing
Not yet archived · Original link
Existing ElevationsE02
Revised Drawing
Not yet archived · Original link
EXISTING FRONT & REAR ELEVATIONE02
Superseded Drawing
Not yet archived · Original link
EXISTING GROUND FLOOR & FIRST FLOOR PLANE01 A
Superseded Drawing
Not yet archived · Original link
EXISTING PLANSE01 A
Superseded Drawing
Not yet archived · Original link
EXISTING SECTIONE03 A
Superseded Drawing
Not yet archived · Original link
Existing SectionsE03
Revised Drawing
Not yet archived · Original link
EXISTING SECTIONSE03 A
Superseded Drawing
Not yet archived · Original link
LOCATION PLAN
Submitted Drawing
Not yet archived · Original link
Officer Report
Report
Not yet archived · Original link
Proposed (side) ElevationsP03
Revised Drawing
Not yet archived · Original link
Proposed ElevationsP02
Revised Drawing
Not yet archived · Original link
PROPOSED ELEVATIONSP02 A
Superseded Drawing
Not yet archived · Original link
PROPOSED ELEVATIONSP02 A
Superseded Drawing
Not yet archived · Original link
Superseded Drawing
Archived · Original link
Revised Drawing
Archived · Original link
Superseded Drawing
Archived · Original link
PROPOSED SECTIONP03 A
Superseded Drawing
Not yet archived · Original link
PROPOSED SECTIONP03 A
Superseded Drawing
Not yet archived · Original link
REFUSED
Decision
Not yet archived · Original link
REVISED PROPOSED ELEVATIONS1135 P02
Superseded Drawing
Not yet archived · Original link

Have your say

Your comment matters. Councils must consider every representation that raises material planning considerations.

Write a comment