← London Borough of Richmond upon Thames

Status

Prior Approval Approved Change of use
Received
24 Oct 2024
New homes
0

Full proposal

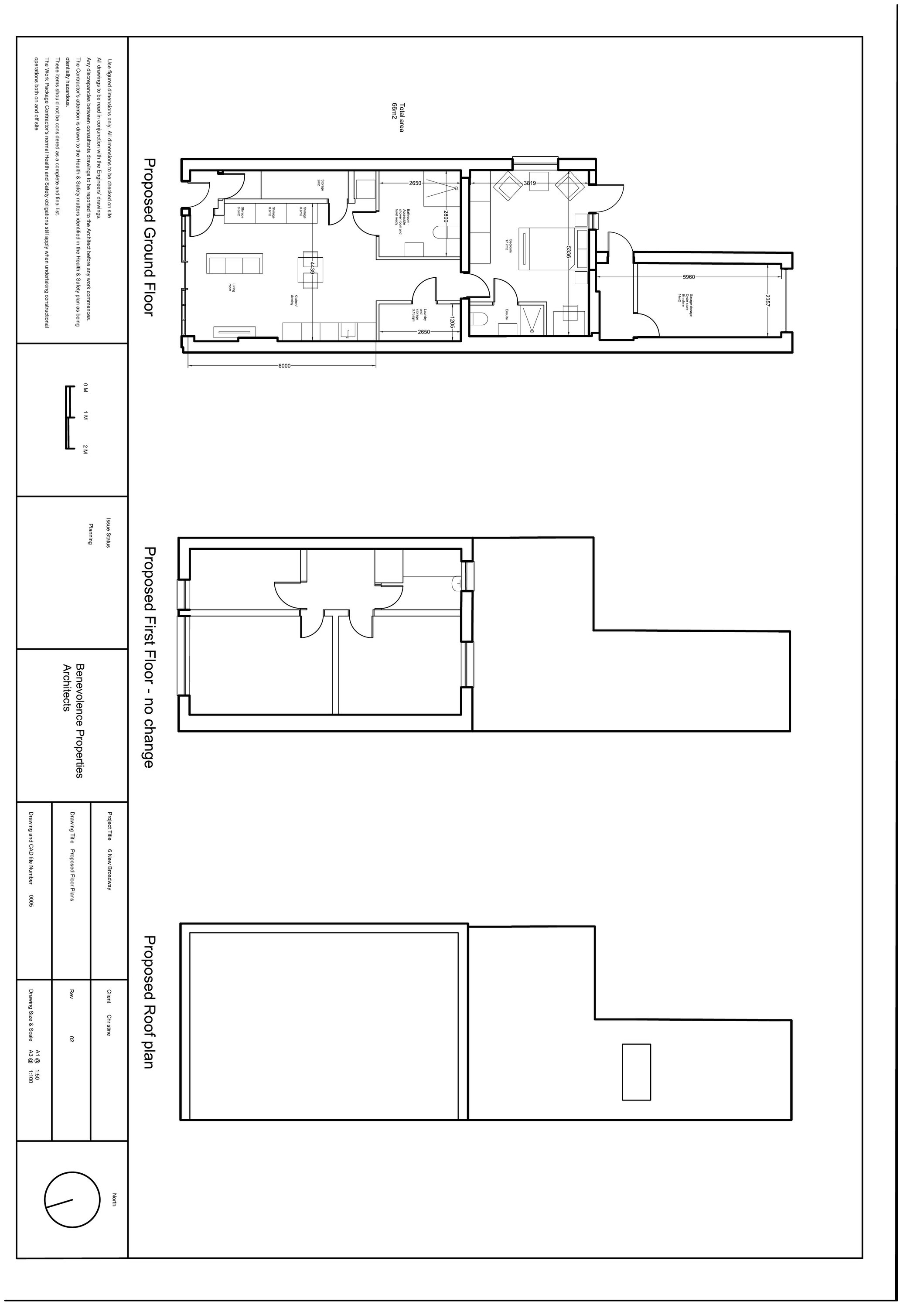
Conversion of a ground floor restaurant into a 1-bedroom, 2-person residential flat.

Documents

Application for Planning Permission
Application Form
Not yet archived · Original link
APPROVED
Decision
Not yet archived · Original link
BLOCK PLANS0002 REV 02
Submitted Drawing
Not yet archived · Original link
DESIGN & ACCESS STATEMENT
Report
Not yet archived · Original link
EXISTING ELEVATIONS0004 REV 02
Submitted Drawing
Not yet archived · Original link
EXISTING FLOOR PLANS0003 REV 02
Submitted Drawing
Not yet archived · Original link
Fire Safety Strategy
Report
Not yet archived · Original link
LOCATION PLAN0001 REV 02
Submitted Drawing
Not yet archived · Original link
Officer Report
Report
Not yet archived · Original link
PARKING SURVEY REPORTREV P01
Report
Not yet archived · Original link
PROPOSED ELEVATIONS0006 REV 02
Submitted Drawing
Not yet archived · Original link
Superseded Drawing
Archived · Original link
Revised Drawing
Archived · Original link

Have your say

Your comment matters. Councils must consider every representation that raises material planning considerations.

Write a comment