← London Borough of Richmond upon Thames

Status

Application Refused House extension
Received
04 Dec 2024
New homes
0

Full proposal

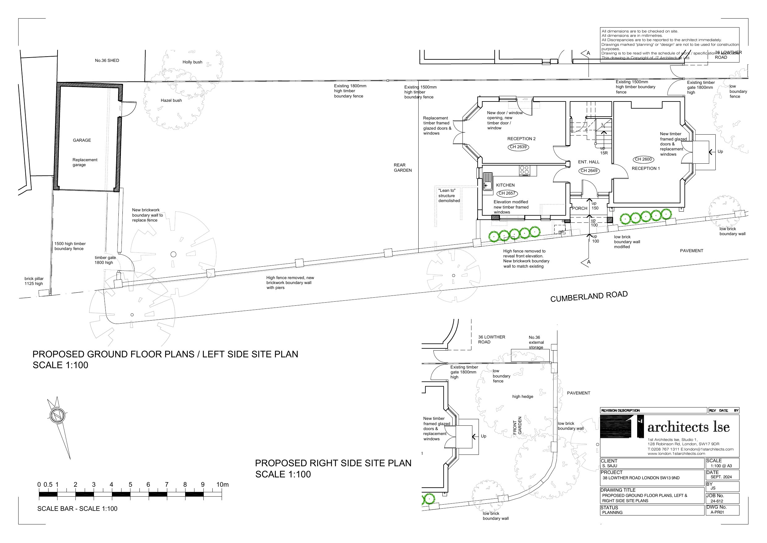
Demolition of lean to. Installation of dormer windows to front roof slope, and alteration to eaves of front roof slope, with the insertion of decorative timber brackets to support to eaves. Alterations to openings to front elevation, 2 storey extension at entrance. Installation of glazed doors to right side elevation in existing bay window, new door and window opening to rear elevation. Replacement timber doors & windows to remaining openings. Alterations to front boundary wall and replacement of front boundary fence with a wall. New detached garage to replace existing.

Documents

Application for Planning Permission
Application Form
Not yet archived · Original link
CIL FORM
Application Form
Not yet archived · Original link
DESIGN & ACCESS STATEMENT
Report
Not yet archived · Original link
EXISTING FIRST FLOOR PLANEX04
Submitted Drawing
Not yet archived · Original link
EXISTING FRONT & REAR ELEVATIONSEX06
Submitted Drawing
Not yet archived · Original link
EXISTING GARAGE ELEVATIONS & SECTION AAEX06
Submitted Drawing
Not yet archived · Original link
EXISTING ROOF PLANEX05
Submitted Drawing
Not yet archived · Original link
EXISTING SIDE ELEVATIONSEX07
Submitted Drawing
Not yet archived · Original link
FIRE SAFETY STATEMENT
Report
Not yet archived · Original link
FLOOD STATEMENT
Report
Not yet archived · Original link
Officer Report
Report
Not yet archived · Original link
PROPOSED 1ST & SECOND FLOOR PLANS W/ROOF PLANSA-PR02
Submitted Drawing
Not yet archived · Original link
PROPOSED FRONT & FRONT BOUNDARY ELEVATIONSA-PR03
Submitted Drawing
Not yet archived · Original link
PROPOSED RIGHT SIDE, LEFT SIDE & REAR ELEVATIONSA-PR04
Submitted Drawing
Not yet archived · Original link
PROPOSED SECTION AAA-PR05
Submitted Drawing
Not yet archived · Original link
REFUSED
Decision
Not yet archived · Original link
SITE LOCATION & SITE PHOTOS24-612-EX01 (REDACTED)
Submitted Drawing
Not yet archived · Original link
STREET CONTEXTEX02
Submitted Drawing
Not yet archived · Original link

Have your say

Your comment matters. Councils must consider every representation that raises material planning considerations.

Write a comment