← London Borough of Richmond upon Thames

Status

Pending Consideration Infrastructure
Received
07 Mar 2025
New homes
0

Full proposal

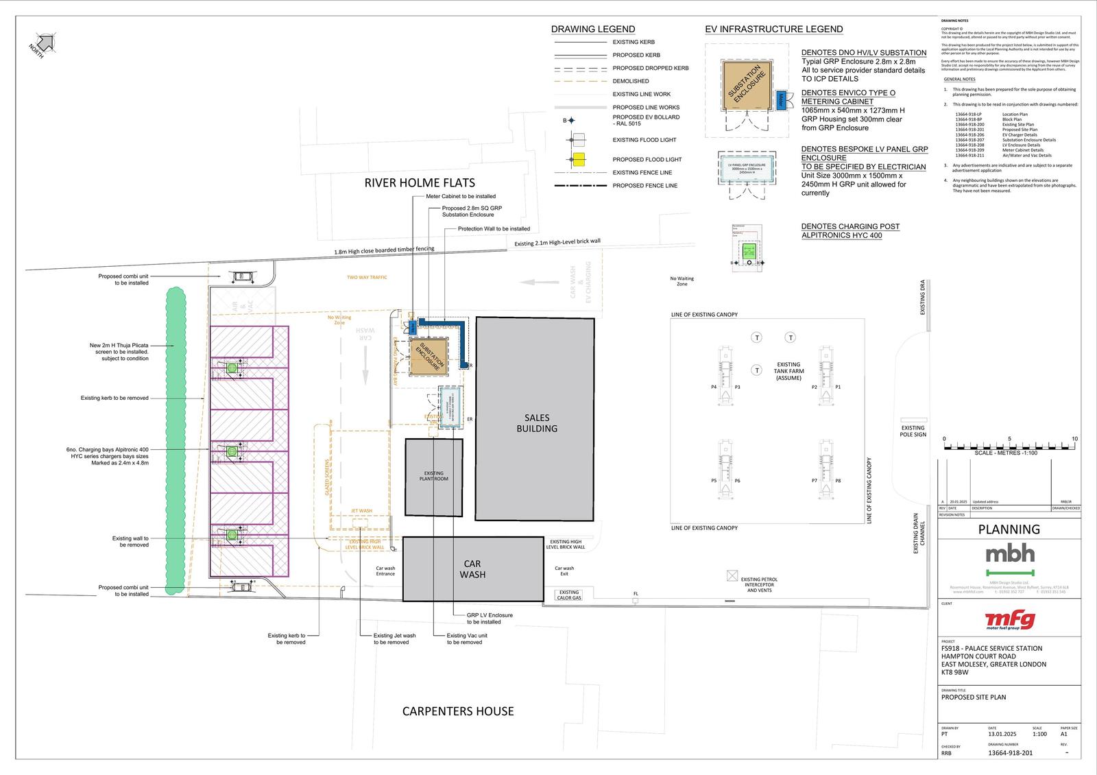
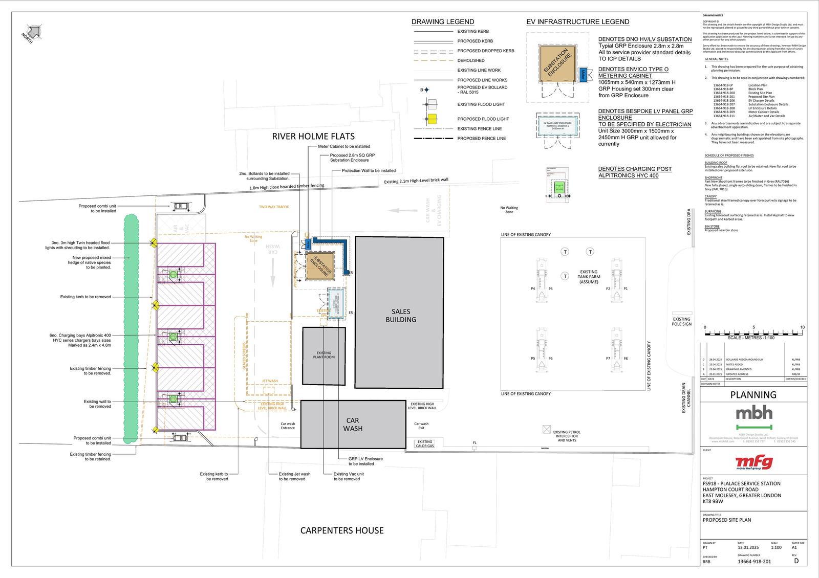
Demolition of an existing jet wash and the creation of charging zone, erection of EV chargers, sub-station enclosure, LV panel, meter cabinet and associated forecourt works.

Documents

11 Riverholme
Public Comment - Object
Not yet archived · Original link
11 Riverholme
Public Comment - Object
Not yet archived · Original link
11 Riverholme
Public Comment - Object
Not yet archived · Original link
11 Riverholme
Public Comment - Object
Not yet archived · Original link
11 Riverholme
Public Comment - Object
Not yet archived · Original link
12 Riverholme
Public Comment - Object
Not yet archived · Original link
14 Riverholme
Public Comment - Object
Not yet archived · Original link
14 Riverholme
Public Comment - Object
Not yet archived · Original link
14 riverholme
Public Comment - Object
Not yet archived · Original link
14 Riverholme
Public Comment - Object
Not yet archived · Original link
14 Riverholme
Public Comment - Object
Not yet archived · Original link
14 Riverholme
Public Comment - Object
Not yet archived · Original link
14 Riverholme
Public Comment - Object
Not yet archived · Original link
14 Riverholme
Public Comment - Object
Not yet archived · Original link
14 Riverholme
Public Comment - Object
Not yet archived · Original link
14 Riverholme
Public Comment - Object
Not yet archived · Original link
14 Riverholme
Public Comment - Object
Not yet archived · Original link
14 Riverholme
Public Comment - Object
Not yet archived · Original link
14 Riverholme
Public Comment - Object
Not yet archived · Original link
14 Riverholme
Public Comment - Object
Not yet archived · Original link
14 Riverholme
Public Comment - Object
Not yet archived · Original link
15 Riverholme
Public Comment - Object
Not yet archived · Original link
15 Riverholme
Public Comment - Object
Not yet archived · Original link
16 Riverholme
Public Comment - Object
Not yet archived · Original link
17 Riverholme
Public Comment - Object
Not yet archived · Original link
18 Riverholme
Public Comment - Object
Not yet archived · Original link
18 Riverholme
Public Comment - Object
Not yet archived · Original link
2 Riverholme
Public Comment - Object
Not yet archived · Original link
2 Riverholme
Public Comment - Object
Not yet archived · Original link
2 Riverholme
Public Comment - Object
Not yet archived · Original link
2 Riverholme
Public Comment - Object
Not yet archived · Original link
2 Riverholme
Public Comment - Object
Not yet archived · Original link
5 Riverholme
Public Comment - Object
Not yet archived · Original link
8 Riverholme
Public Comment - Object
Not yet archived · Original link
9 Riverholme
Public Comment - Object
Not yet archived · Original link
AIR/WATER & VAC ELEVATIONS
Submitted Drawing
Not yet archived · Original link
Application Form - Without Personal Data
Application Form - Redacted
Not yet archived · Original link
BLOCK PLAN
Submitted Drawing
Not yet archived · Original link
BS5837:2012 TREE SURVEY / Arboricultural Impact Assessment ref.: 801138
Report
Not yet archived · Original link
Carpenters House
Public Comment - Object
Not yet archived · Original link
COVER LETTER
Correspondence
Not yet archived · Original link
EV CHARGER DETAILS
Submitted Drawing
Not yet archived · Original link
Submitted Drawing
Archived · Original link
FIRE STATEMENT
Report
Not yet archived · Original link
Flat 12 Riverholme
Public Comment - Object
Not yet archived · Original link
Flat 16 Riverholme
Public Comment - Object
Not yet archived · Original link
Flat 16 Riverholme
Public Comment - Object
Not yet archived · Original link
Flat 16 Riverholme
Public Comment - Object
Not yet archived · Original link
FLOOD RISK ASSESSMENT
Superseded
Not yet archived · Original link
Flood Risk Assessment ref.: 20110-FRA-TN-01 Rev C03
Report
Not yet archived · Original link
HERITAGE STATEMENT
Report
Not yet archived · Original link
LOCATION PLAN
Submitted Drawing
Not yet archived · Original link
LV ENCLOSURE DETAILS
Submitted Drawing
Not yet archived · Original link
METER CABINET DETAILS
Submitted Drawing
Not yet archived · Original link
No description
Public Comment - Object
Not yet archived · Original link
Superseded Drawing
Archived · Original link
PROPOSED SUBSTATION WALL DETAILS
Submitted Drawing
Not yet archived · Original link
SITE PHOTO's
Photographs
Not yet archived · Original link
SUBSTATION ENCLOSURE DETAILS
Submitted Drawing
Not yet archived · Original link

Have your say

Your comment matters. Councils must consider every representation that raises material planning considerations.

Write a comment