← Back to London Borough of Richmond upon Thames
Application
PA25/0731
London Borough of Richmond upon Thames · AGILE
Status
Manager Review Decision
New housing
Received
17 Mar 2025
New dwellings
0
What you can do
Take Action
Make your voice heard. Authorities need to hear from people who support new homes.
Summary
Demolition of existing bungalow and erection of a three-storey replacement dwelling (no net gain).
Full Proposal
Demolition of existing bungalow and the erection of a three-storey replacement dwelling
Detail pages
- View live detail on council site
- No archived detail page available.
Documents
2 Coleshill Road
Public Comment - Object
Not downloaded
· Council link
2 Coleshill Road
Public Comment - Observation
Not downloaded
· Council link
23 Hampton Road
Public Comment - Object
Not downloaded
· Council link
3D Photo Front no tree
Photo
Not downloaded
· Council link
3D Photo with Tree
Photo
Not downloaded
· Council link
4, Teddington Hall
Public Comment - Object
Not downloaded
· Council link
5 Shrewsbury House, 16 Hampton road
Public Comment - Object
Not downloaded
· Council link
5 Shrewsbury House, 16 Hampton road
Public Comment - Object
Not downloaded
· Council link
Application Form - Without Personal Data
Application Form - Redacted
Not downloaded
· Council link
Arboricultural Impact Assessment
Report
Not downloaded
· Council link
CIL FORM
Community Infrastructure Levy Form
Not downloaded
· Council link
Construction Managment Plan
Report
Not downloaded
· Council link
Design and access statement
Report
Not downloaded
· Council link
Ecological Appraisal Report
Report
Not downloaded
· Council link
Elevation (Side) - Proposed
Photo
Not downloaded
· Council link
Energy Statement
Report
Not downloaded
· Council link
Existing and Proposed Block Plan TP(00)02 A
Revised Drawing
Not downloaded
· Council link
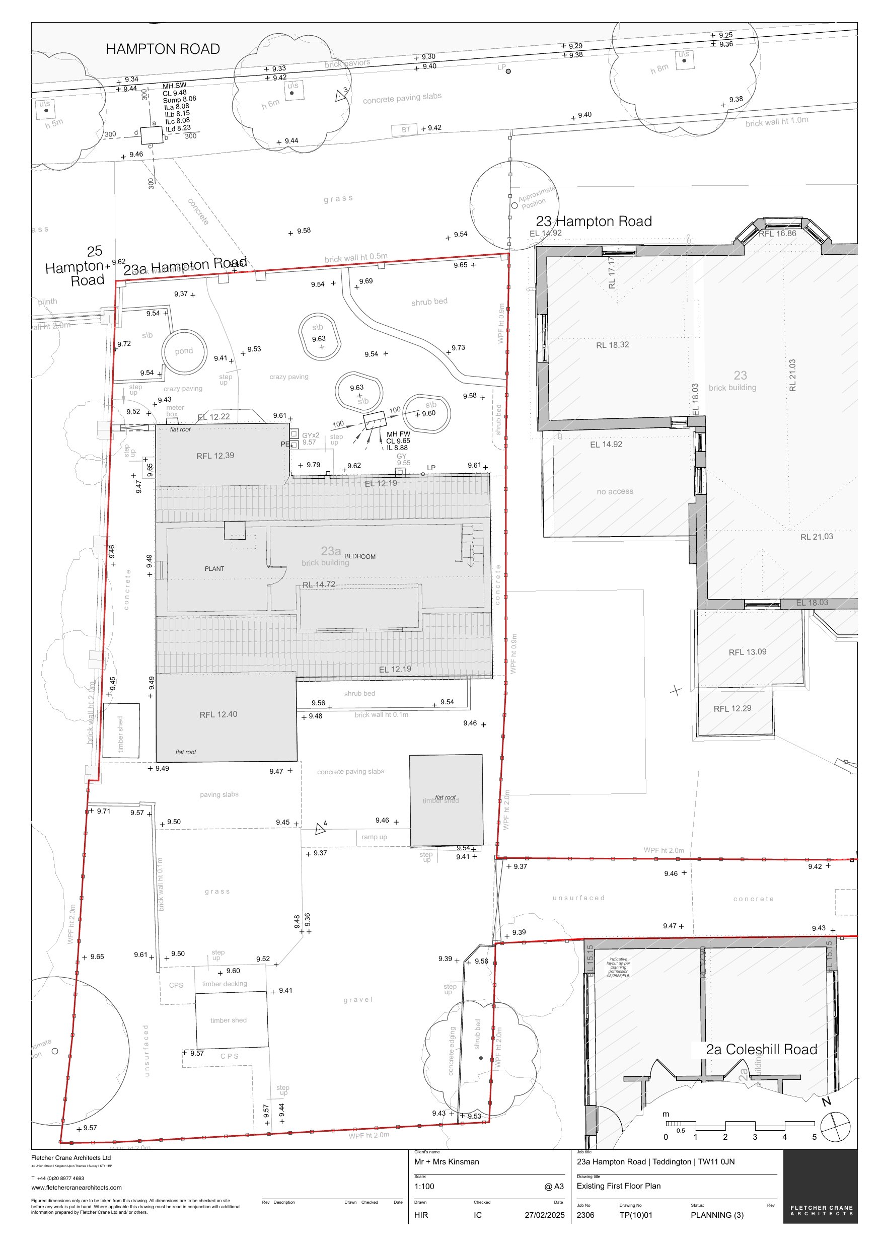
Existing First Floor Plan TP(10)01
Submitted Drawing
Not downloaded
· Council link
Existing Front & Side Elevations TP(11)01
Submitted Drawing
Not downloaded
· Council link
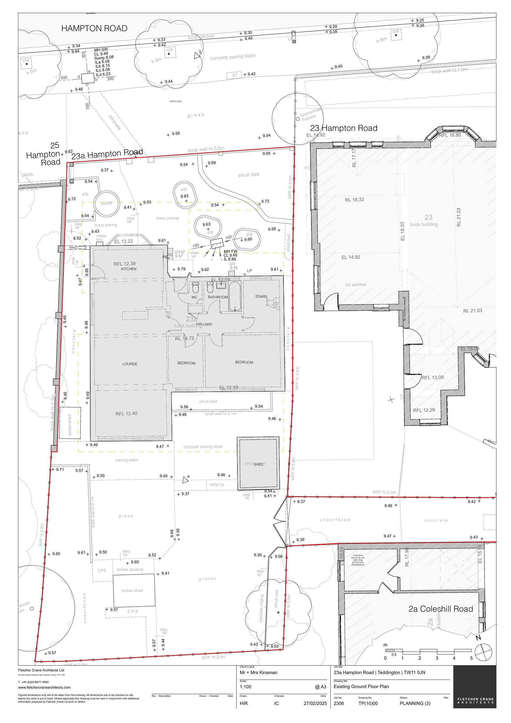
Existing Ground Floor Plan TP(00)00
Submitted Drawing
Not downloaded
· Council link
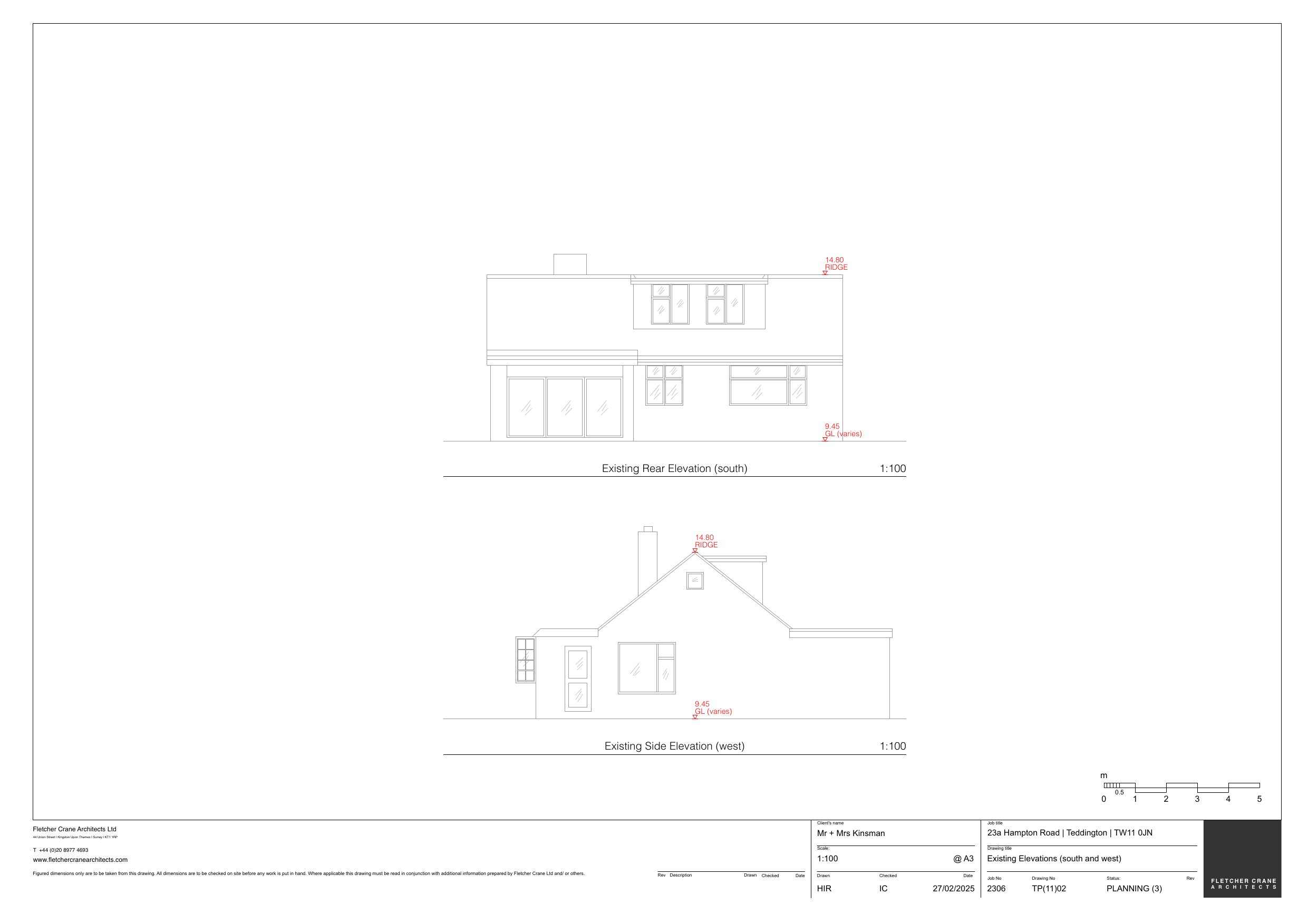
Existing Rear & Side Elevations TP(11)02
Submitted Drawing
Not downloaded
· Council link
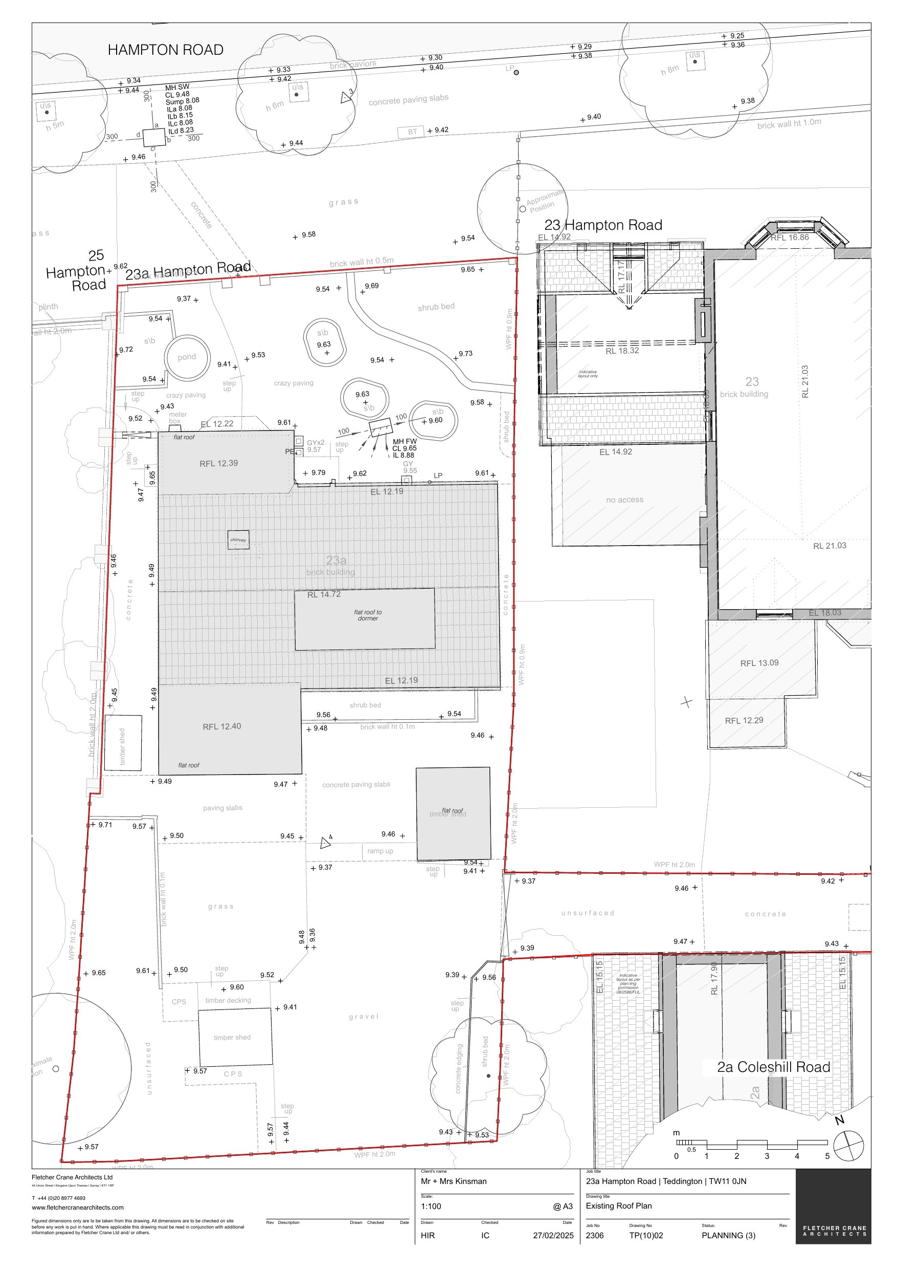
Existing Roof Plan TP(10)02
Submitted Drawing
Not downloaded
· Council link
Existing Site Plan (Topographic plus trees) TP(00)03
Submitted Drawing
Archived copy
· Council link
Existing/Proposed Block Plan TP(11)02
Superseded Drawing
Not downloaded
· Council link
Financial Viability Assessment
Report
Not downloaded
· Council link
Fire Statement
Report
Not downloaded
· Council link
Flats a and b, 12 Hampton Road
Public Comment - Object
Not downloaded
· Council link
Flood risk assessment
Report
Not downloaded
· Council link
Heritage statement
Report
Not downloaded
· Council link
Location Plan TP(00)01
Submitted Drawing
Not downloaded
· Council link
Photo Corner 3D
Photo
Not downloaded
· Council link
Photo Side A 3D
Photo
Not downloaded
· Council link
Photo Side A 3D Tree
Photo
Not downloaded
· Council link
Planning Design Access Statement
Report
Not downloaded
· Council link
Proposed East Side Elevation TP(11)22
Superseded Drawing
Not downloaded
· Council link
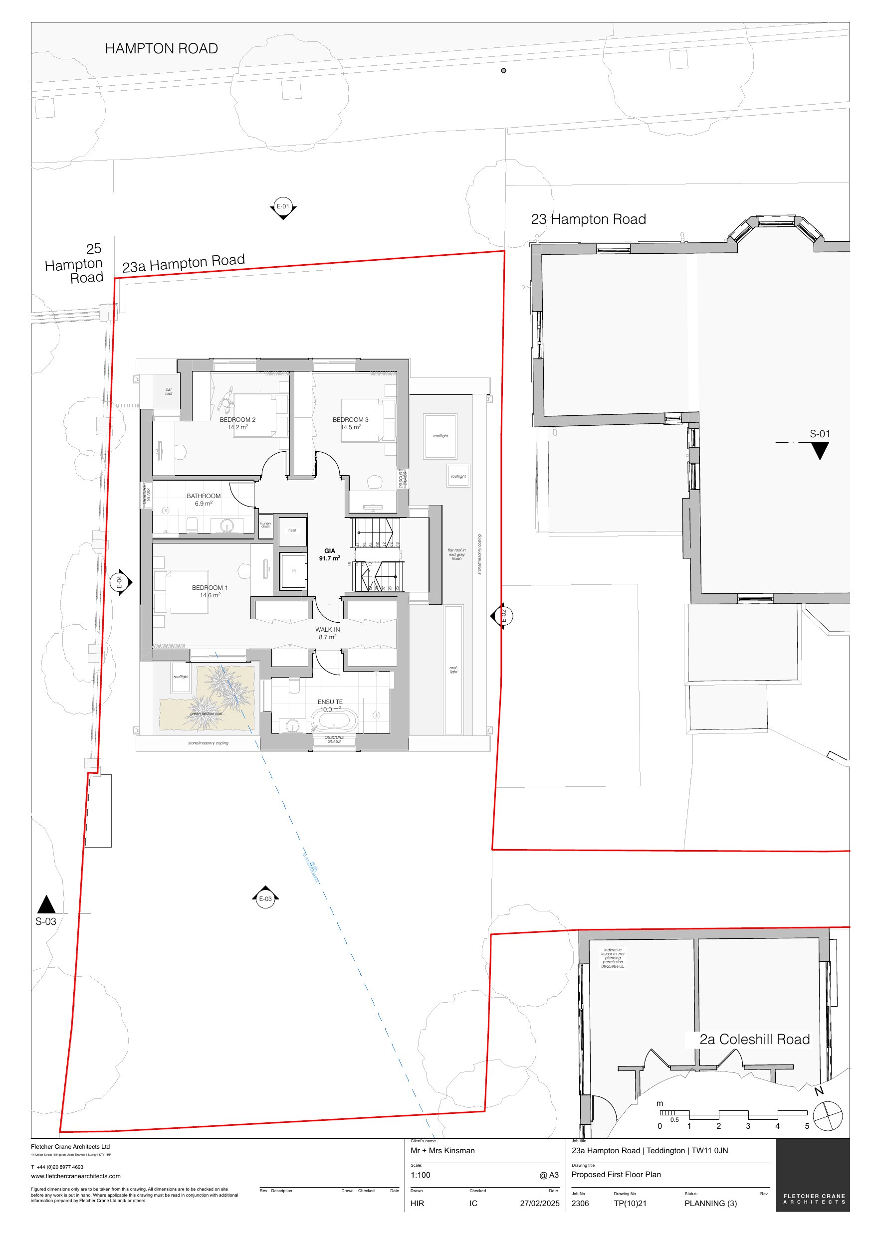
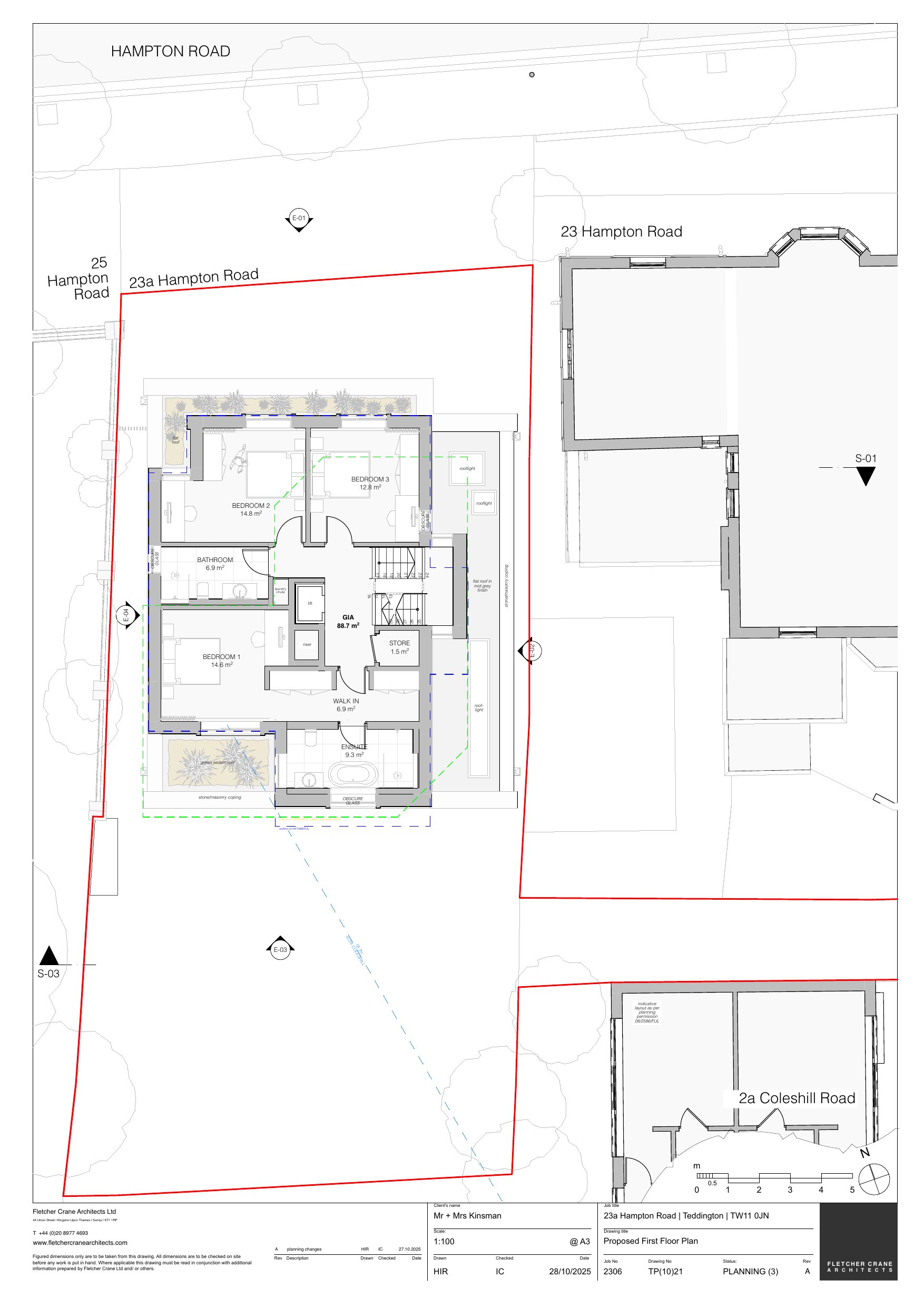
Proposed First Floor Plan TP(10)21
Superseded Drawing
Not downloaded
· Council link
Proposed First Floor TP(10)20 A
Revised Drawing
Not downloaded
· Council link
Proposed Front Elevation North TP(11)21 B
Revised Drawing
Not downloaded
· Council link
Proposed Front Elevation North TP(11)21A
Superseded Drawing
Not downloaded
· Council link
Proposed Front Elevation TP(11)21
Superseded Drawing
Not downloaded
· Council link
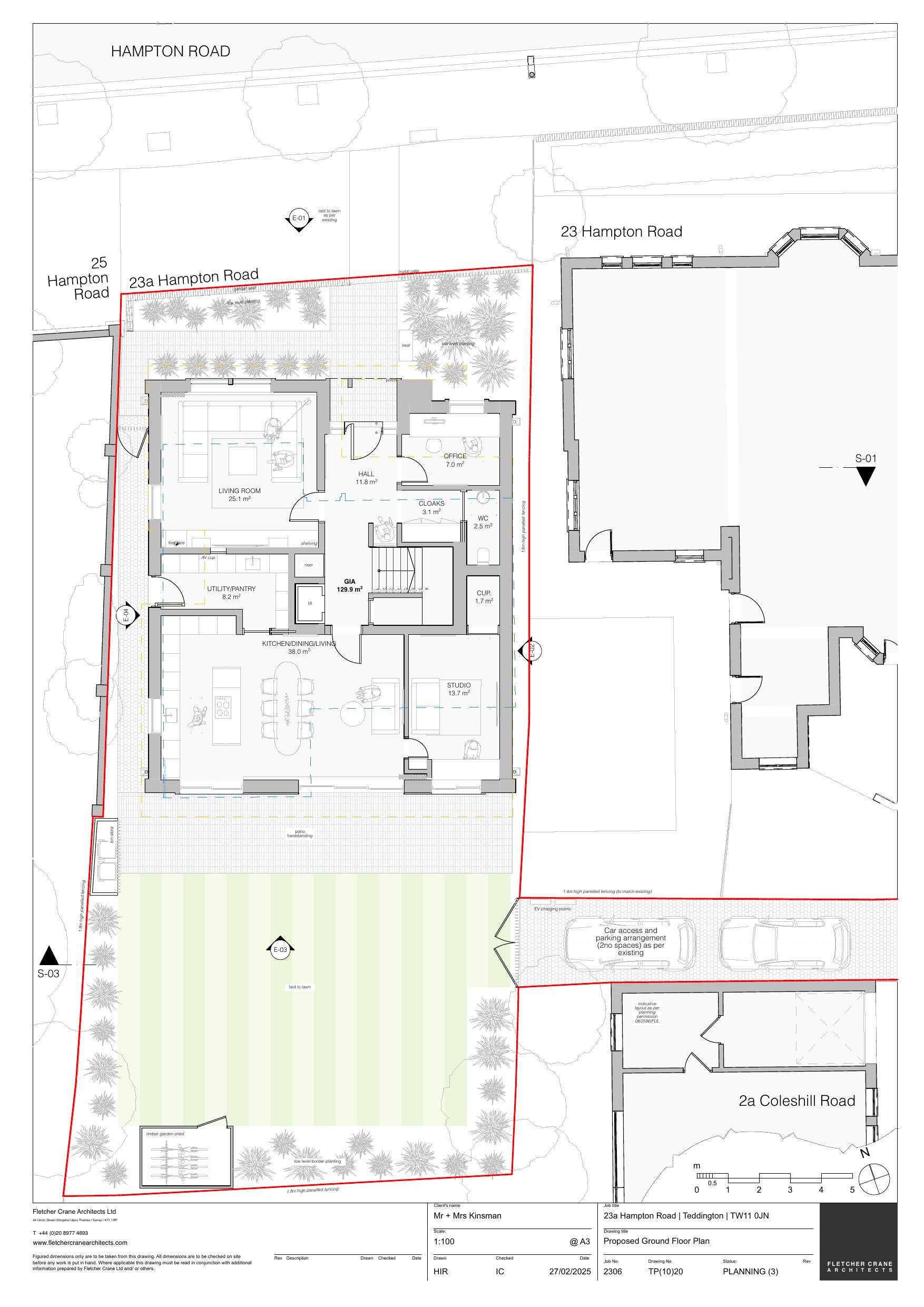
Proposed Ground Floor Plan TP(10)20
Superseded Drawing
Not downloaded
· Council link
Proposed Ground Floor TP(10)04 A
Revised Drawing
Not downloaded
· Council link
Proposed Rear 3D
Photo
Not downloaded
· Council link
Proposed Rear Elevation South TP(11)23 B
Revised Drawing
Not downloaded
· Council link
Proposed Rear Elevation TP(11)23
Superseded Drawing
Not downloaded
· Council link
Proposed Roof Plan TP(10)23
Superseded Drawing
Not downloaded
· Council link
Proposed Roof Plan TP(10)23 A
Revised Drawing
Not downloaded
· Council link
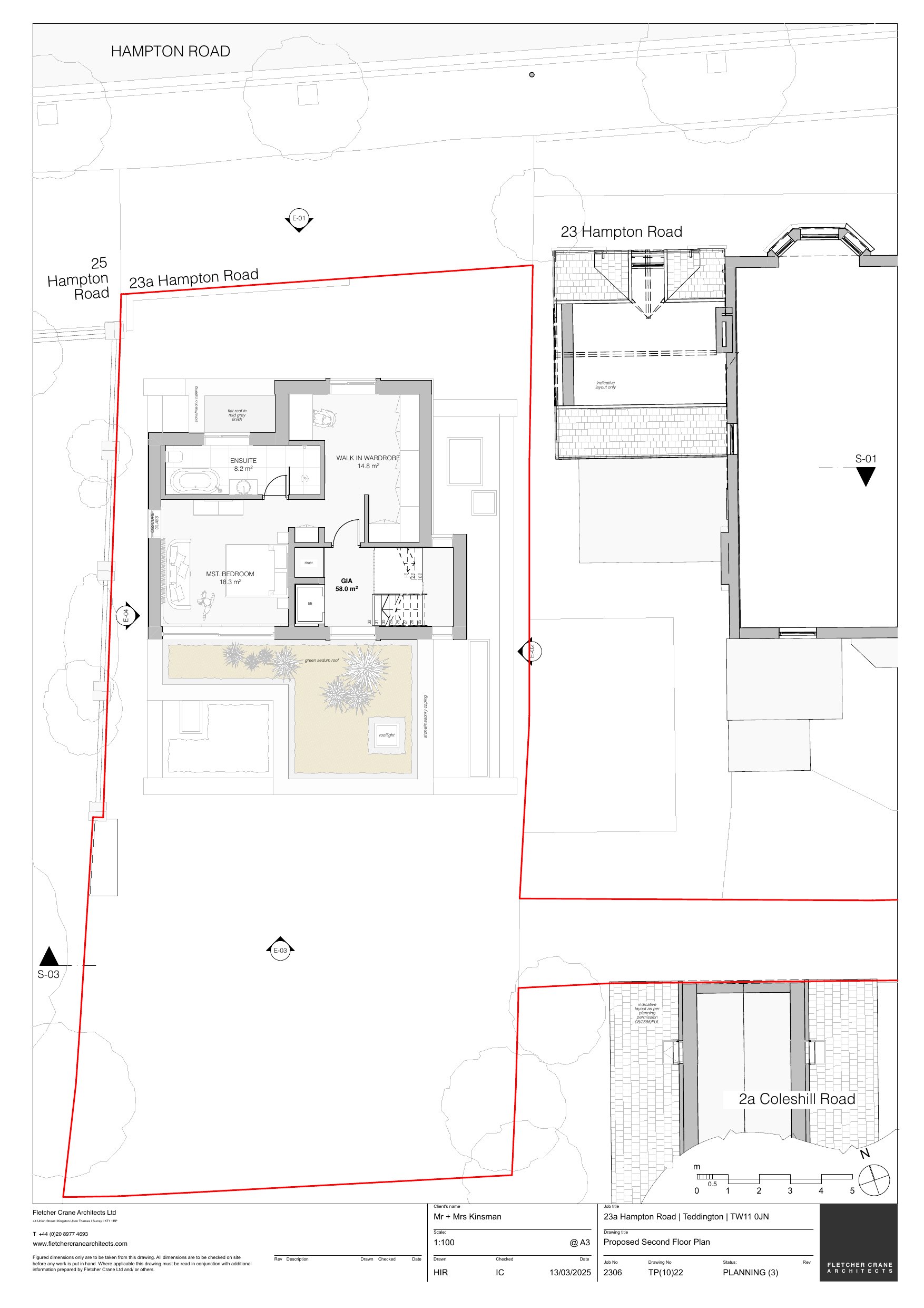
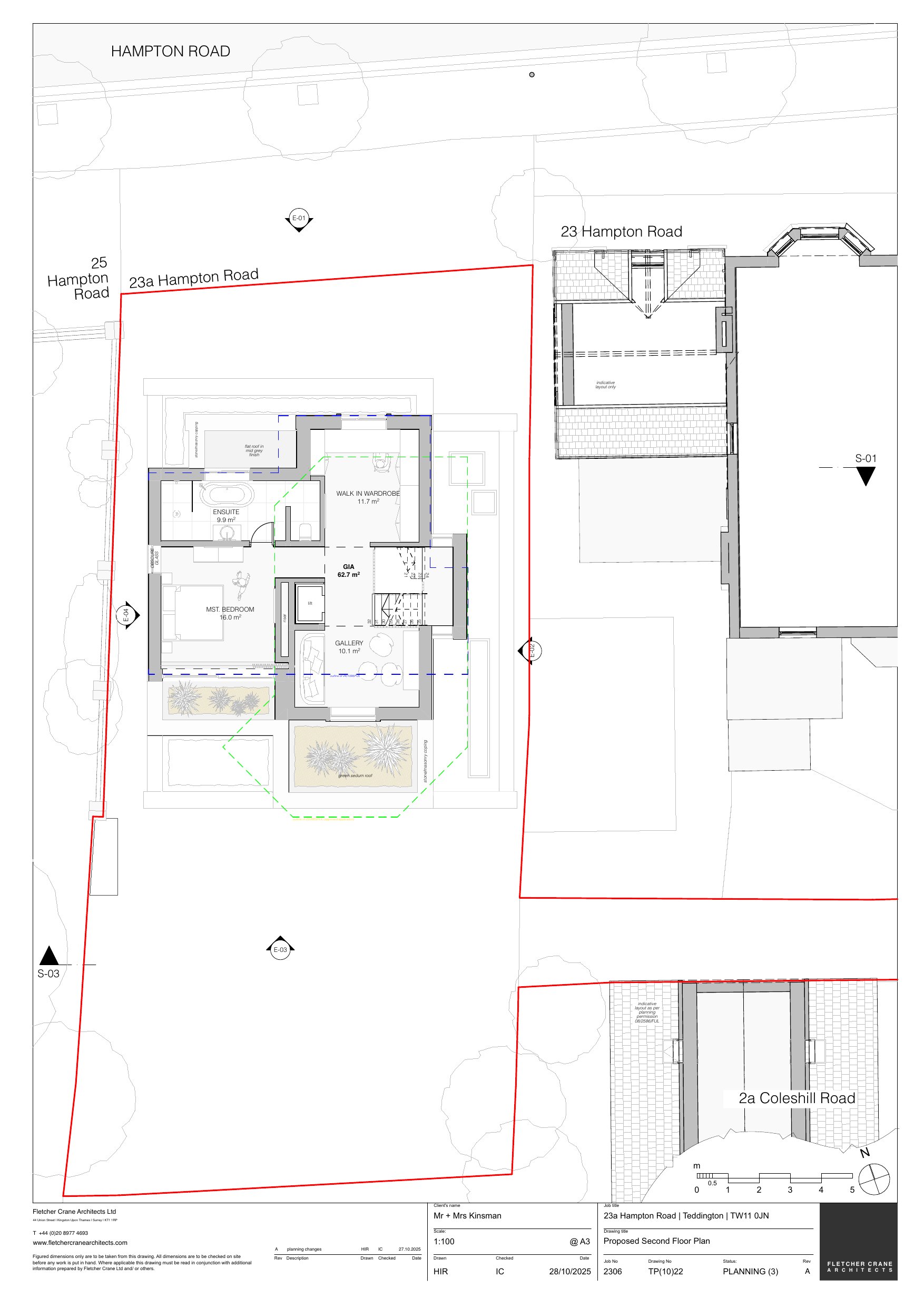
Proposed Second Floor Plan TP(10)22
Superseded Drawing
Not downloaded
· Council link
Proposed Second Floor TP(10)22 A
Revised Drawing
Not downloaded
· Council link
Proposed Section 01 TP(12)21
Superseded Drawing
Not downloaded
· Council link
Proposed Section 01 TP(12)21 A
Revised Drawing
Not downloaded
· Council link
Proposed Side Elevation East TP(11)22 B
Revised Drawing
Not downloaded
· Council link
Proposed Side Elevation East TP(11)22A
Superseded Drawing
Not downloaded
· Council link
Proposed Side Elevation West TP(11)24 B
Revised Drawing
Not downloaded
· Council link
Proposed Side Elevation West TP(11)24A
Superseded Drawing
Not downloaded
· Council link
Proposed Site Plan TP(00)04
Superseded Drawing
Archived copy
· Council link
Proposed Site Plan TP(00)04
Superseded Drawing
Archived copy
· Council link
Proposed Site Plan TP(00)04 A
Revised Drawing
Archived copy
· Council link
Proposed Street Elevation TP(11)25
Superseded Drawing
Not downloaded
· Council link
Proposed Street Elevation TP(11)25A
Superseded Drawing
Not downloaded
· Council link
Proposed Street Elevatoin TP(11)25 B
Revised Drawing
Not downloaded
· Council link
Proposed West Side Elevation TP(11)24
Superseded Drawing
Not downloaded
· Council link
Residential Development Standards
Report
Not downloaded
· Council link
S106 Unilateral Undertaking
Legal Document
Not downloaded
· Council link
Sustainable Drainage Assessment
Report
Not downloaded
· Council link
Transport assessment
Report
Not downloaded
· Council link
Tree Protection Plan 02
Submitted Drawing
Not downloaded
· Council link
TW11 0JN, 4 TEDDINGTON HALL (OBJECTION TO REVISED PLANS)
Public Comment - Object
Not downloaded
· Council link