← London Borough of Richmond upon Thames

Status

Pending Consideration House extension
Received
29 Apr 2025
New homes
0

Summary

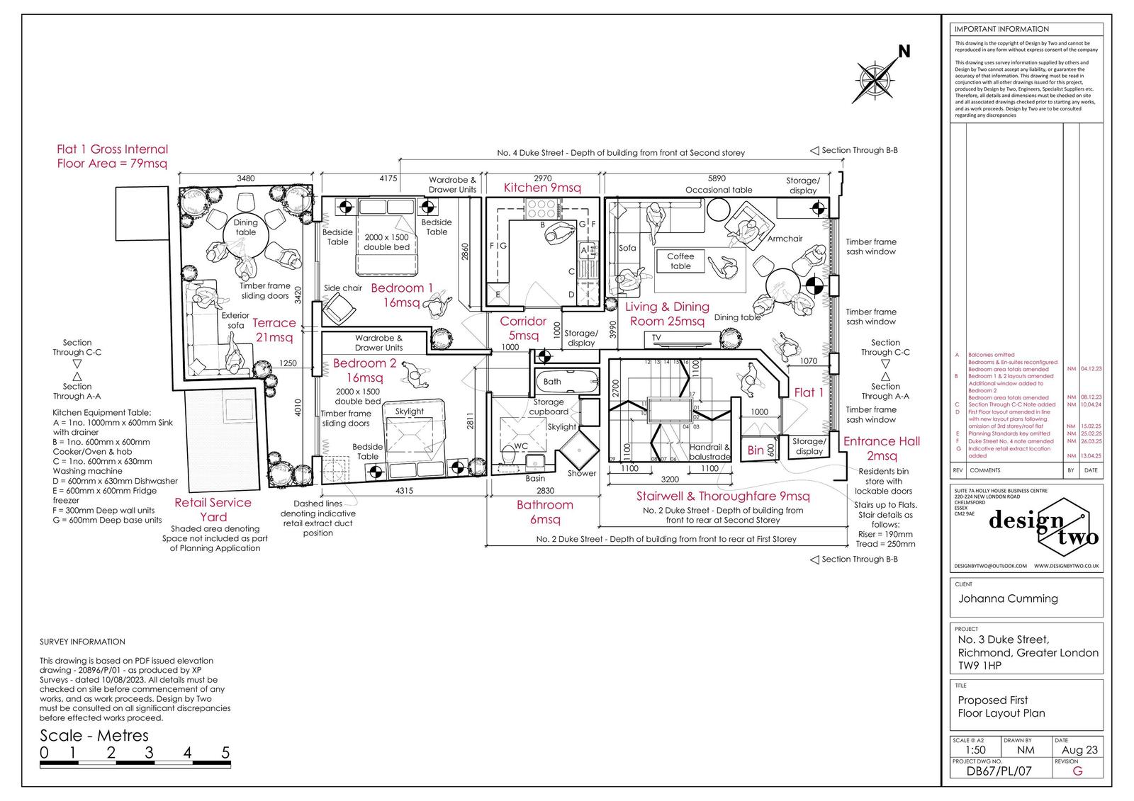
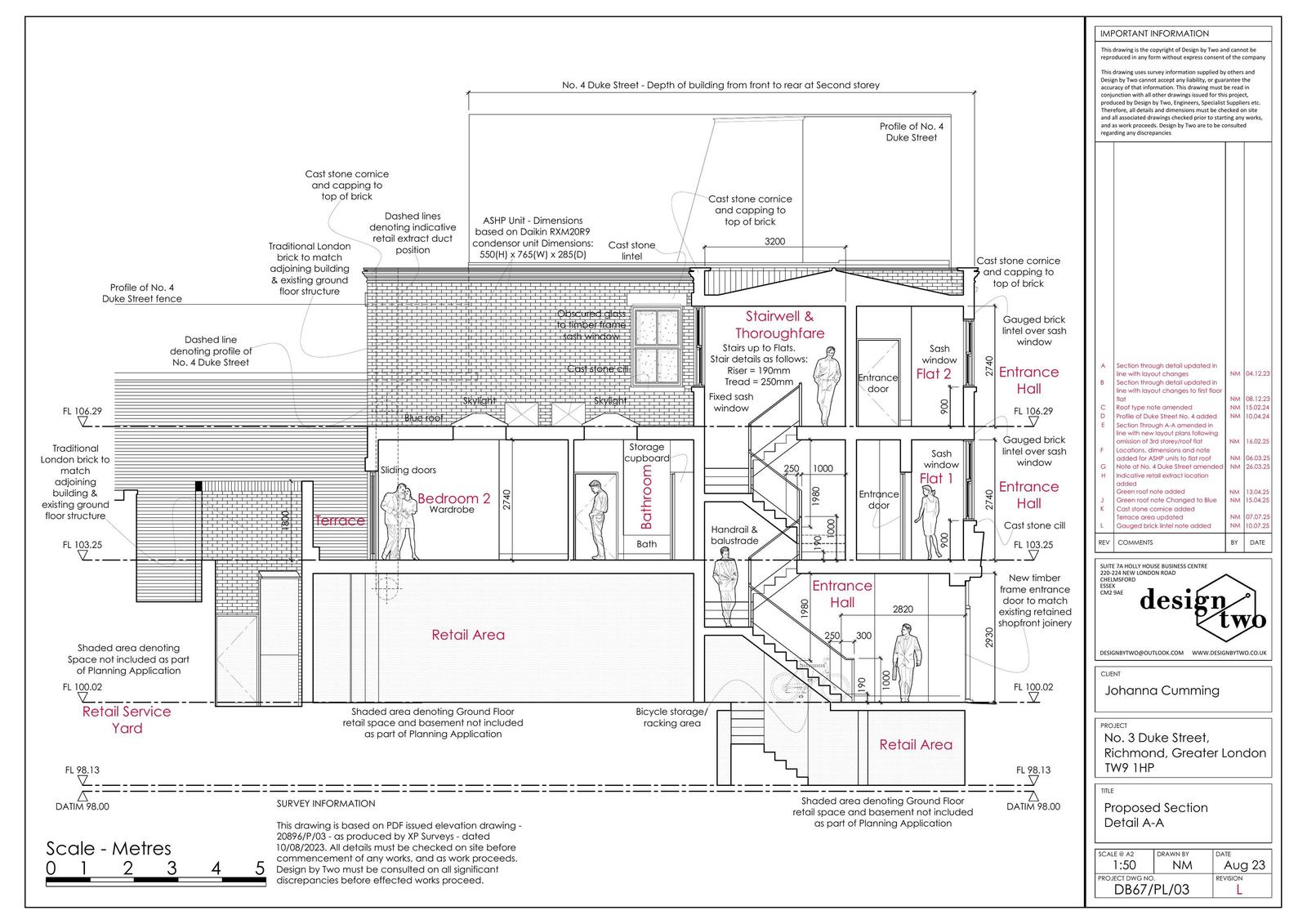
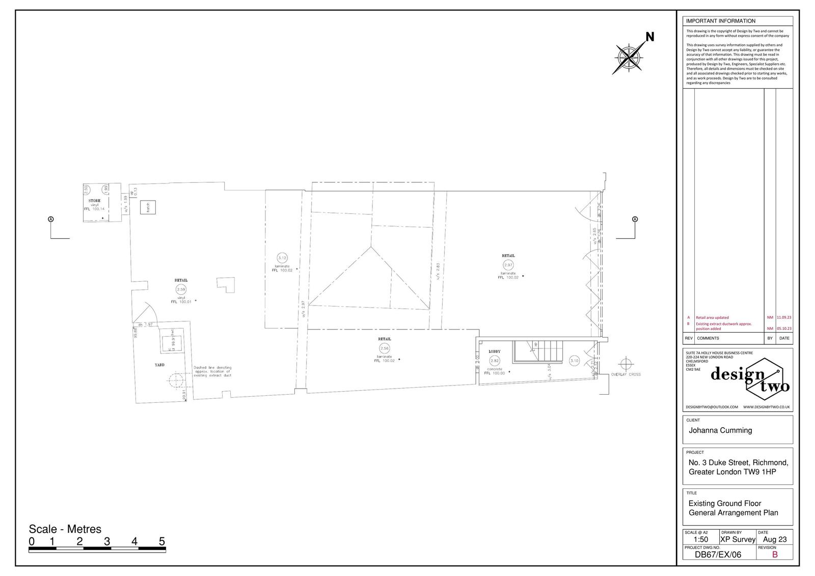
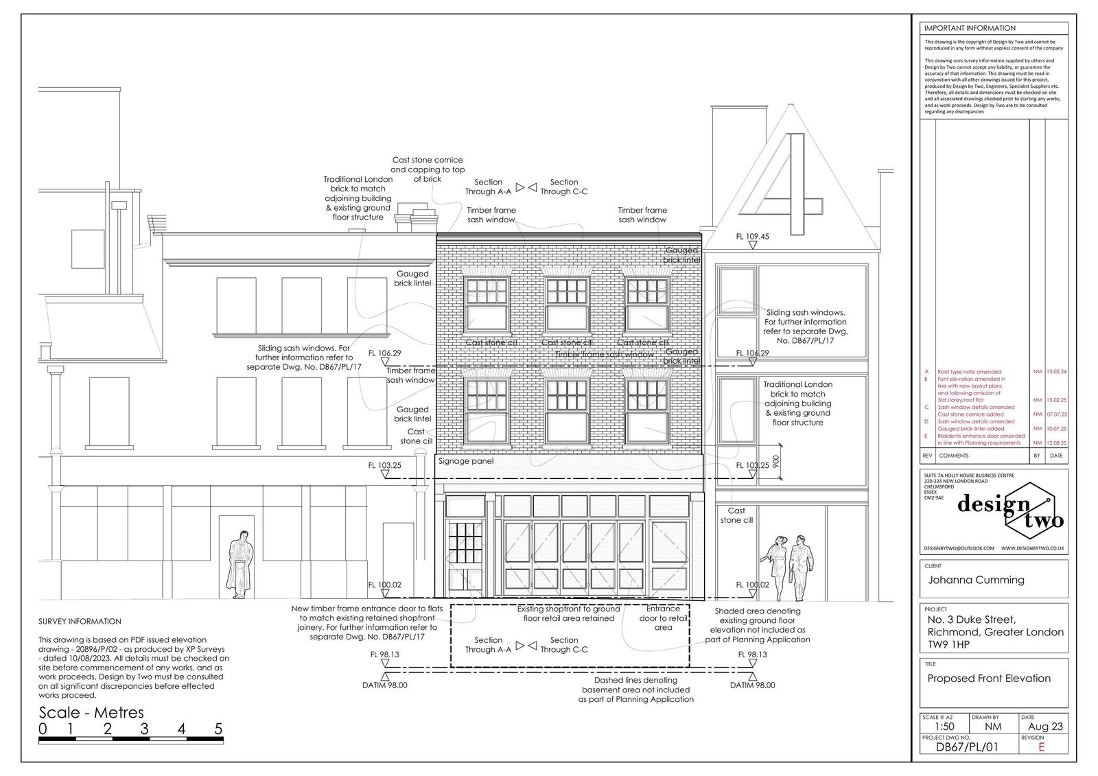
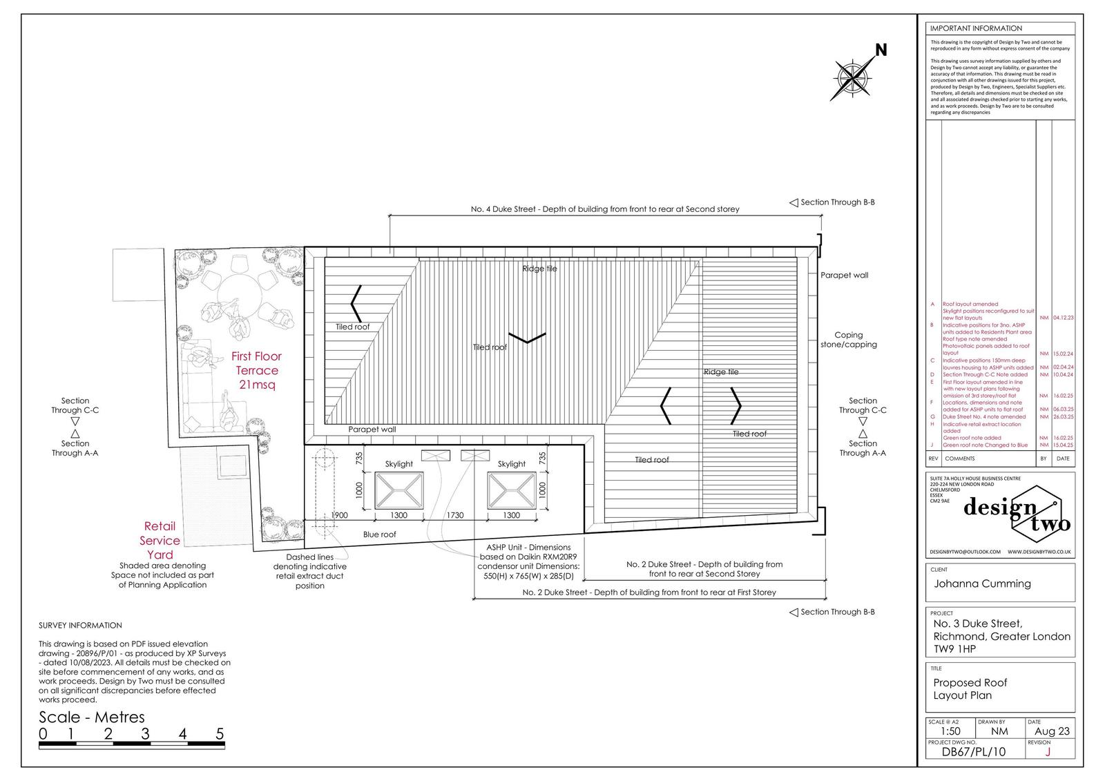
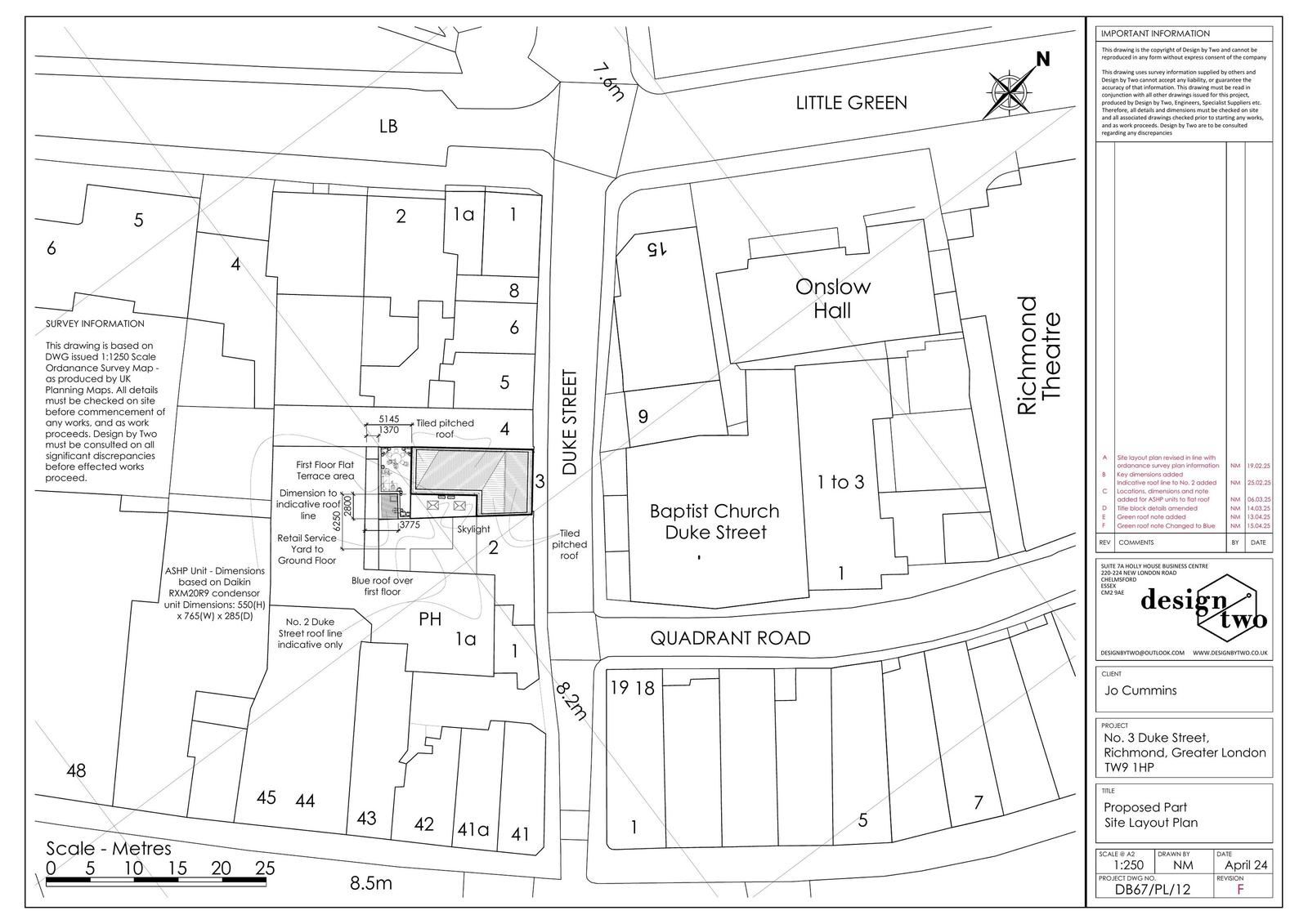
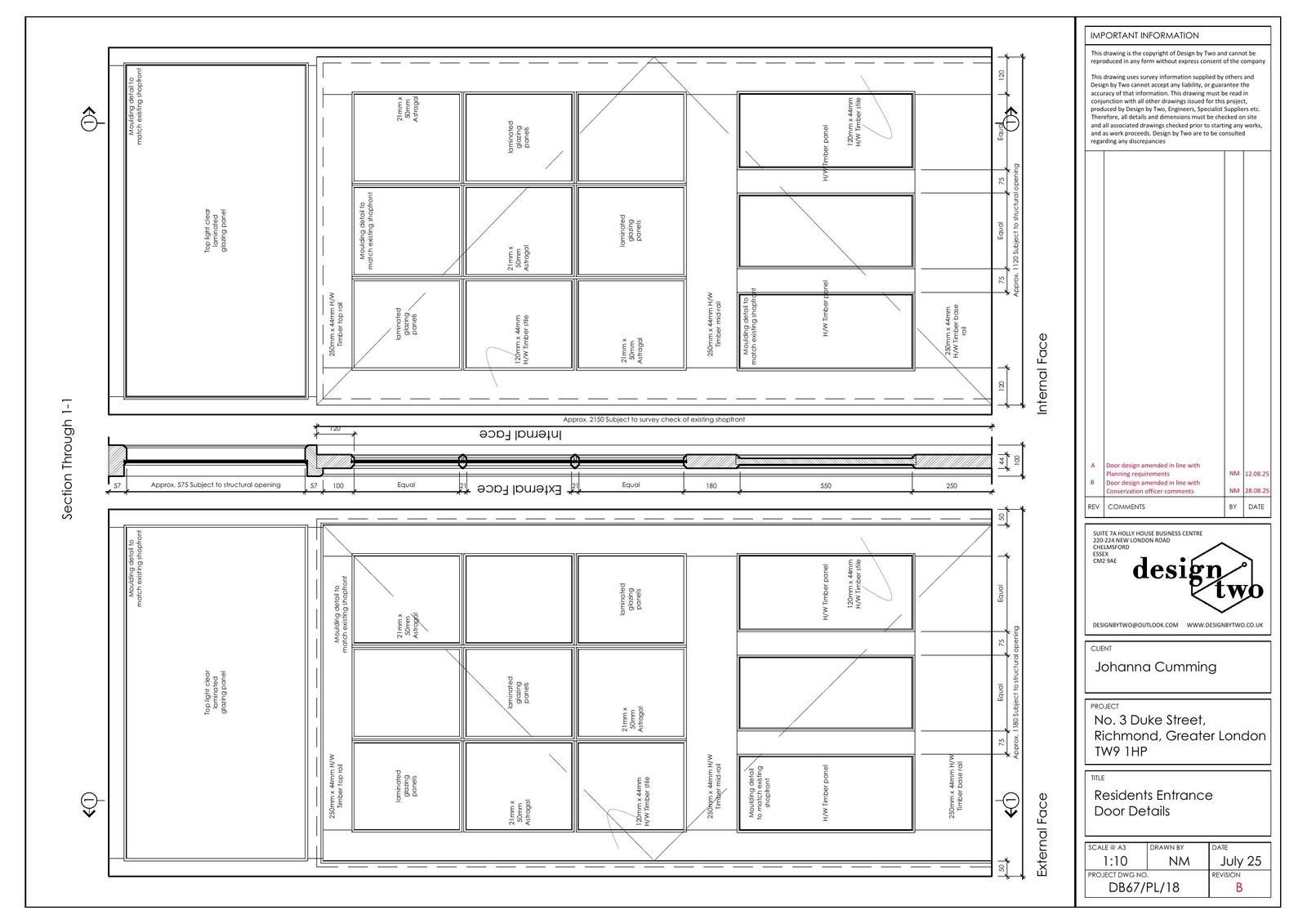
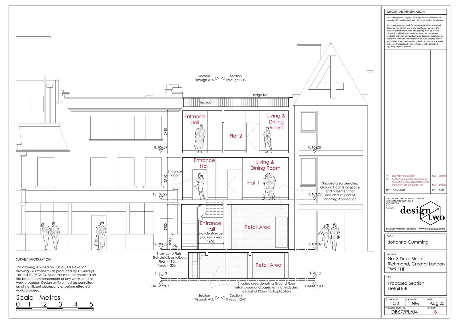
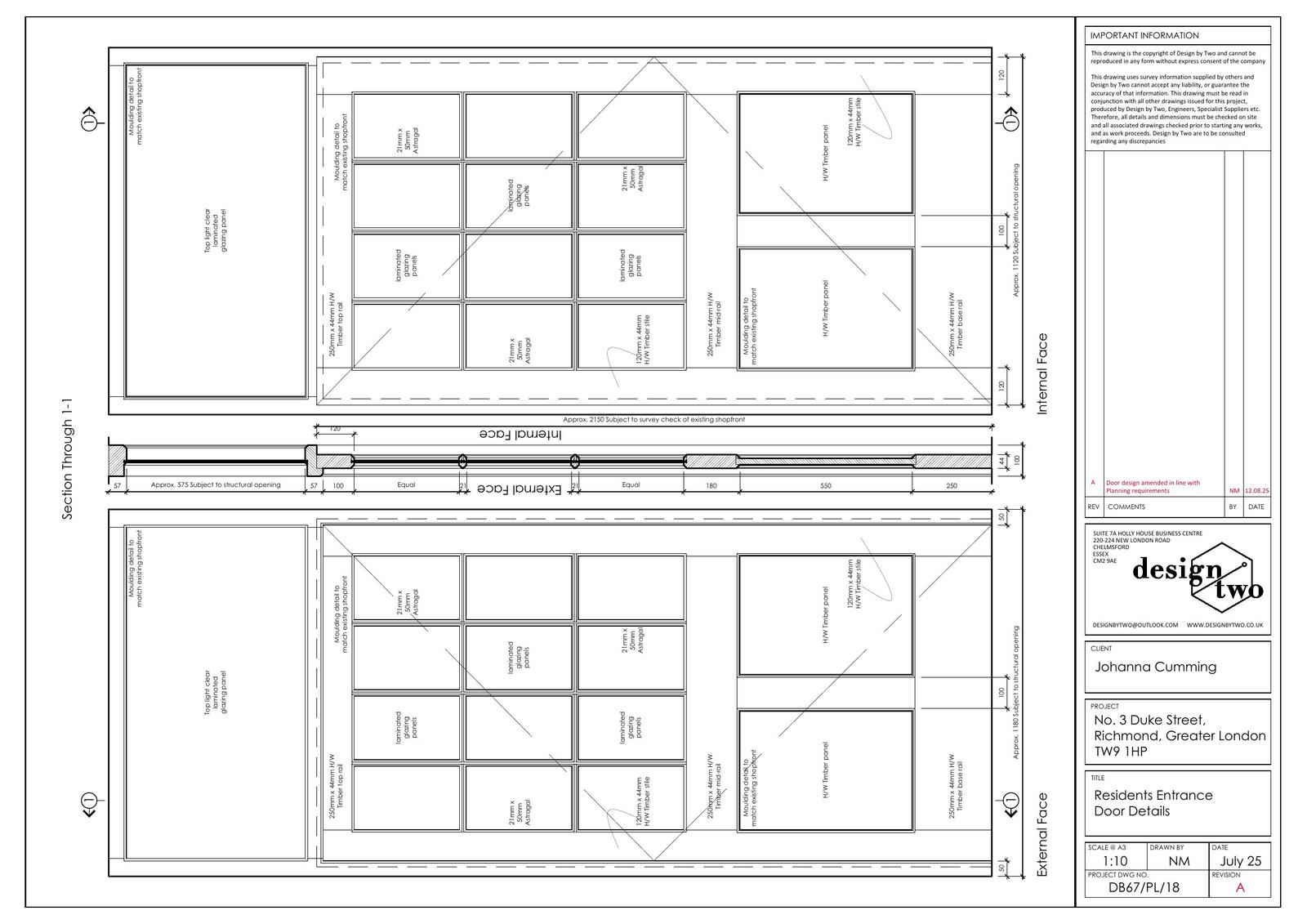
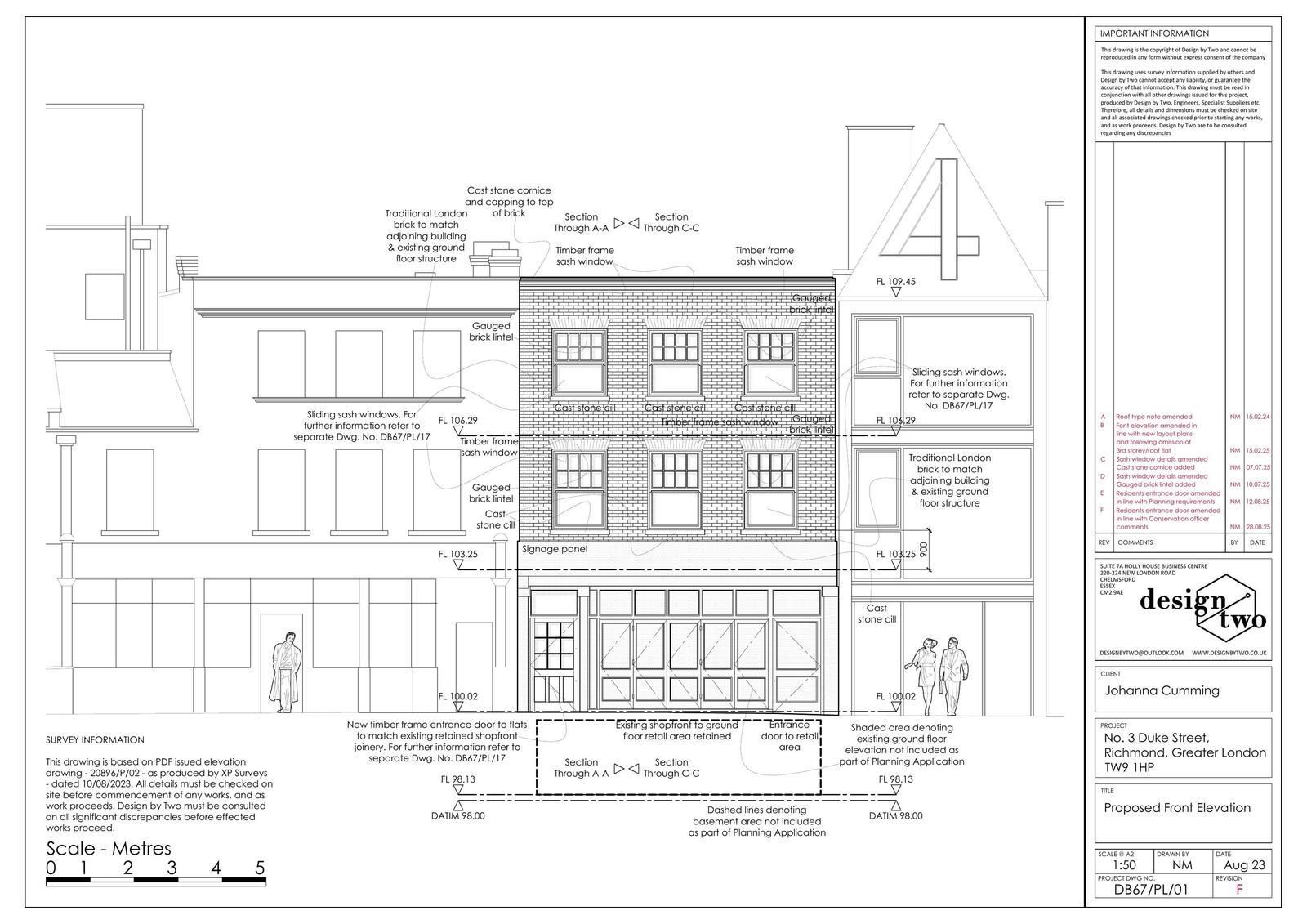
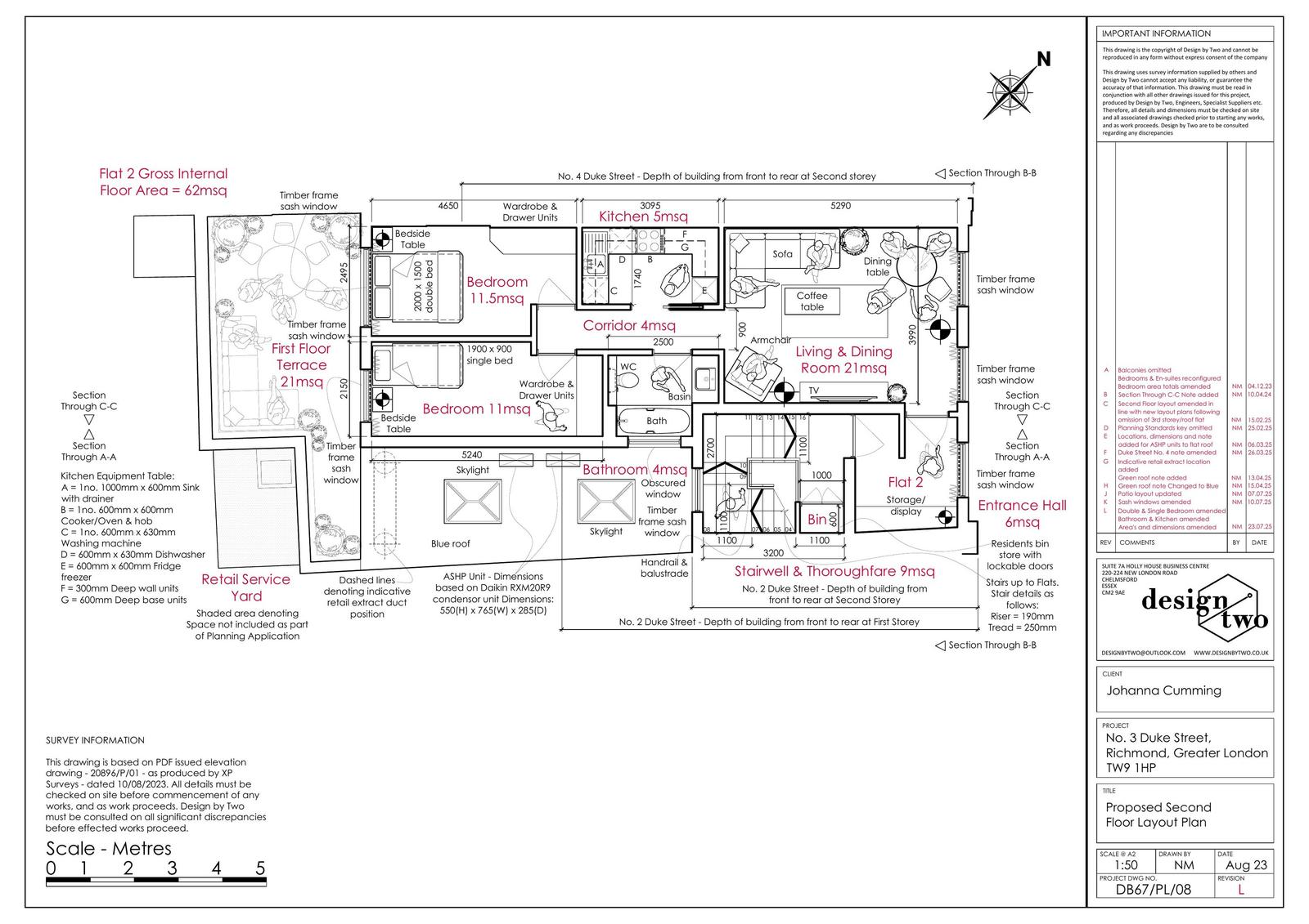
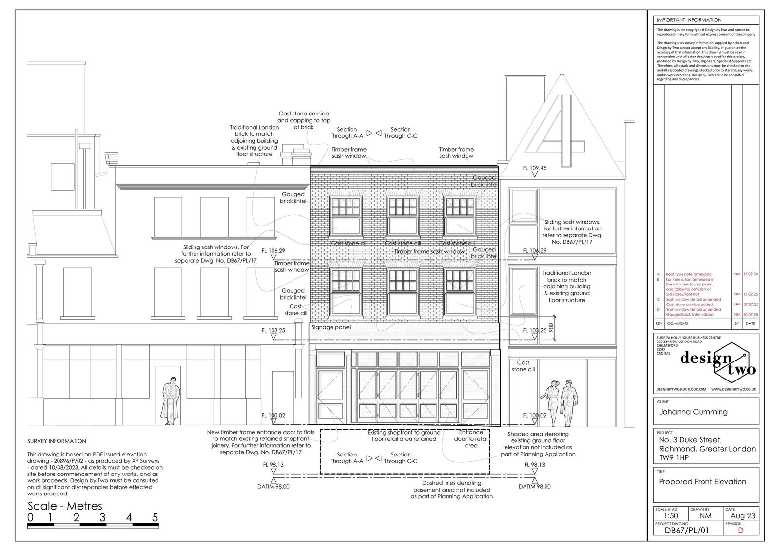
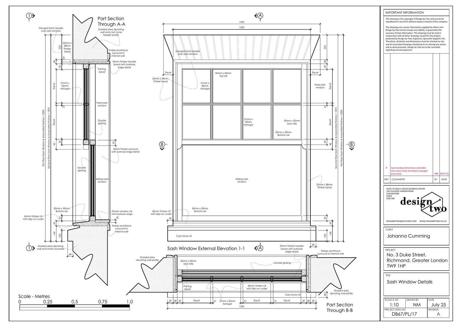
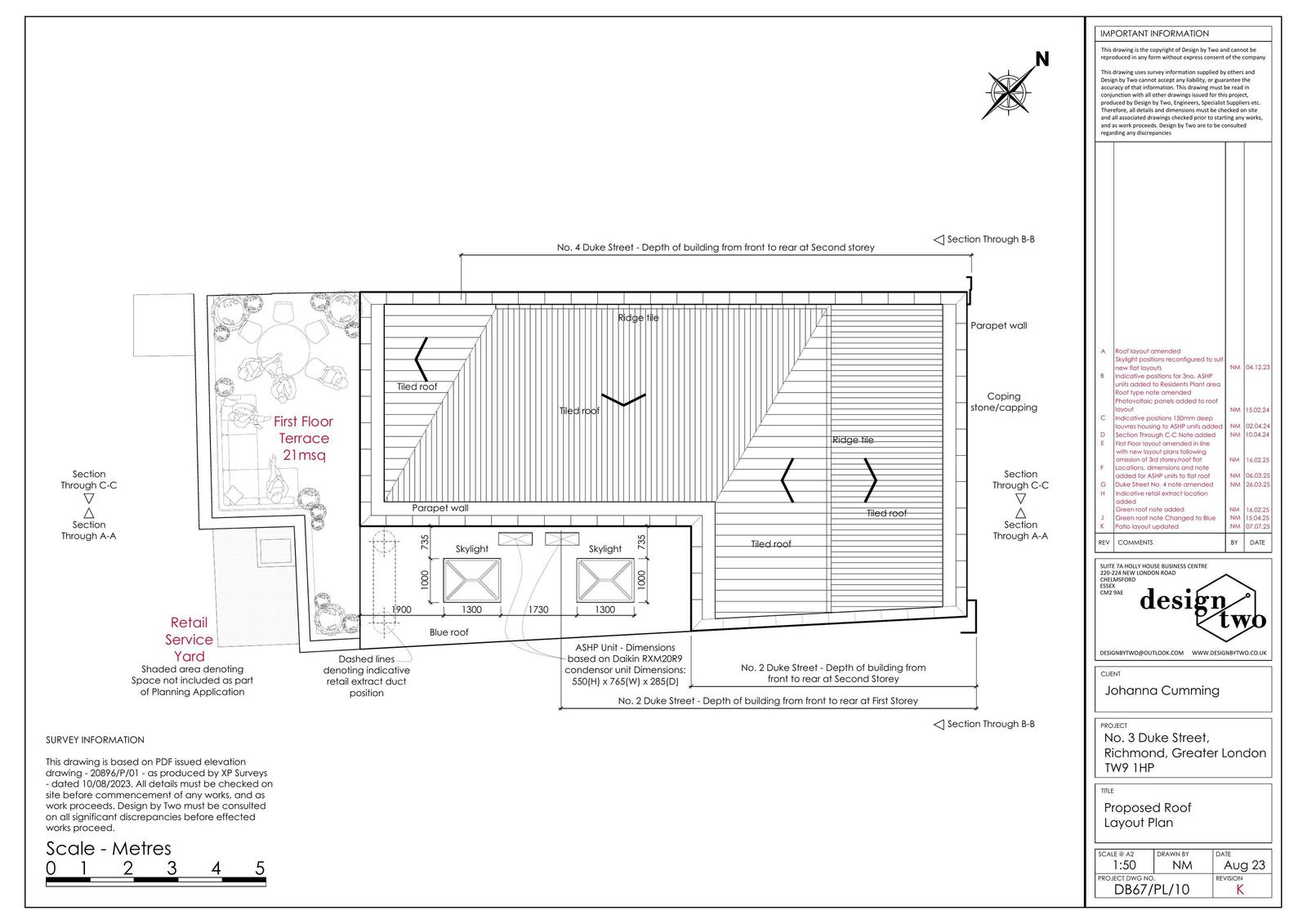
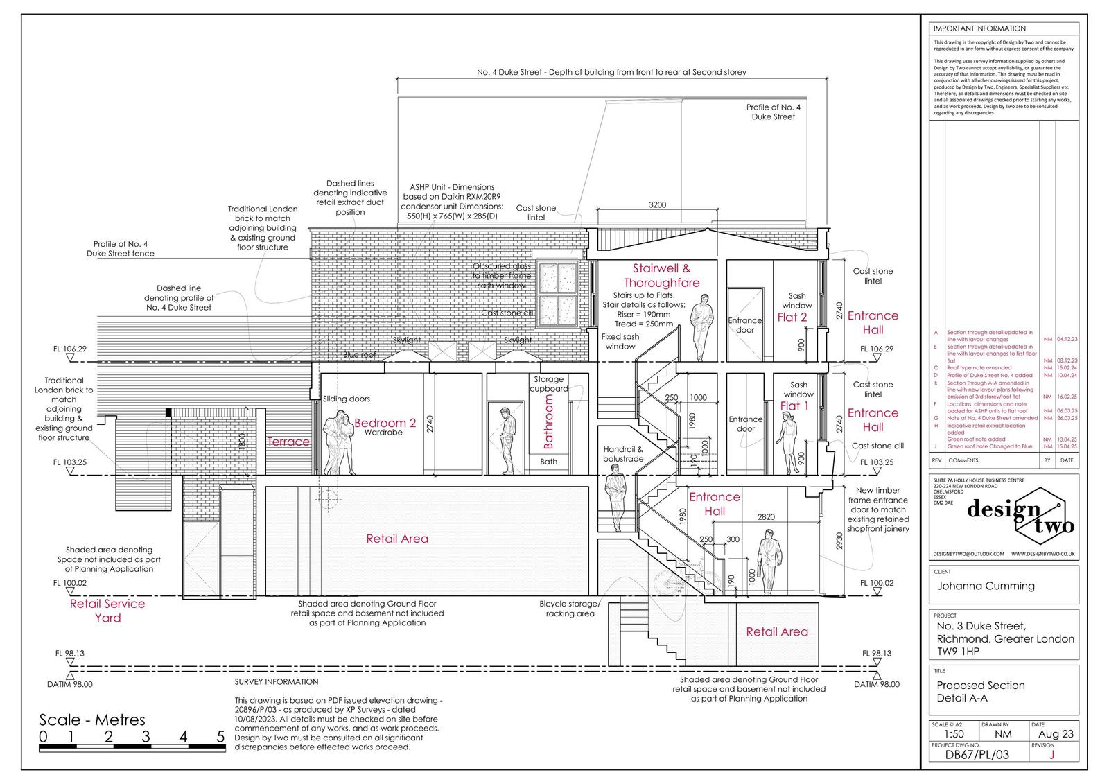
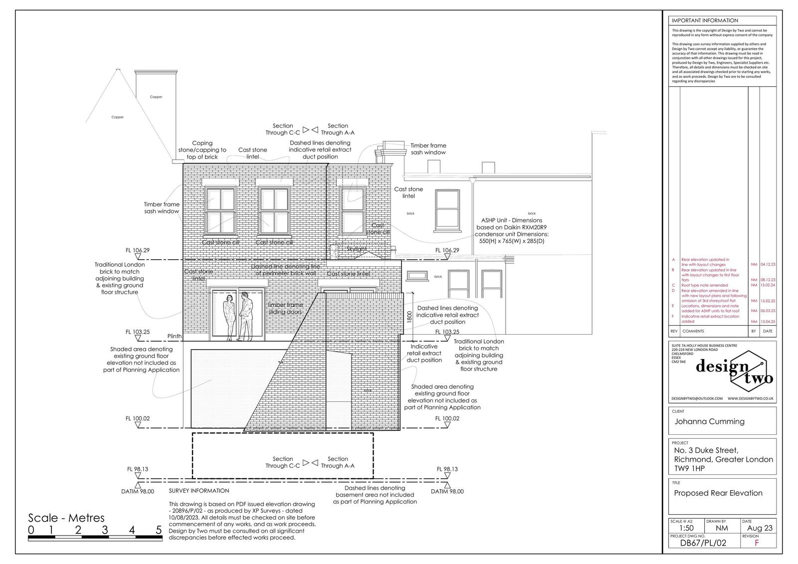
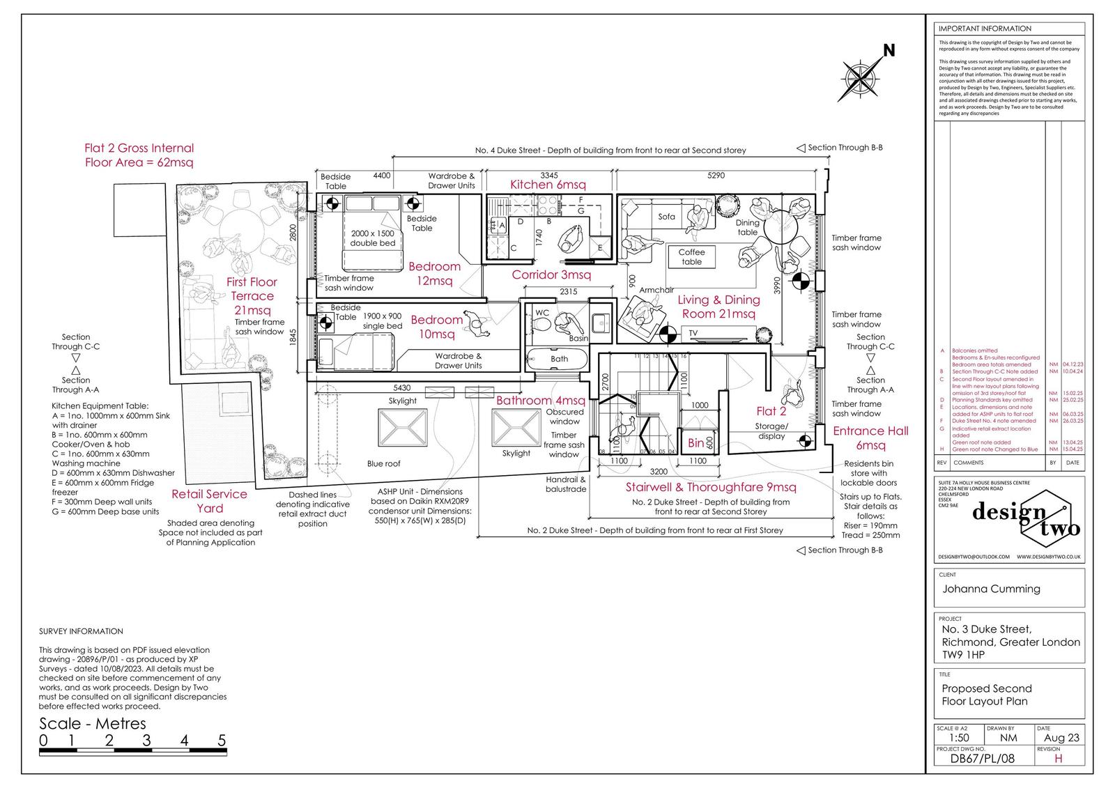
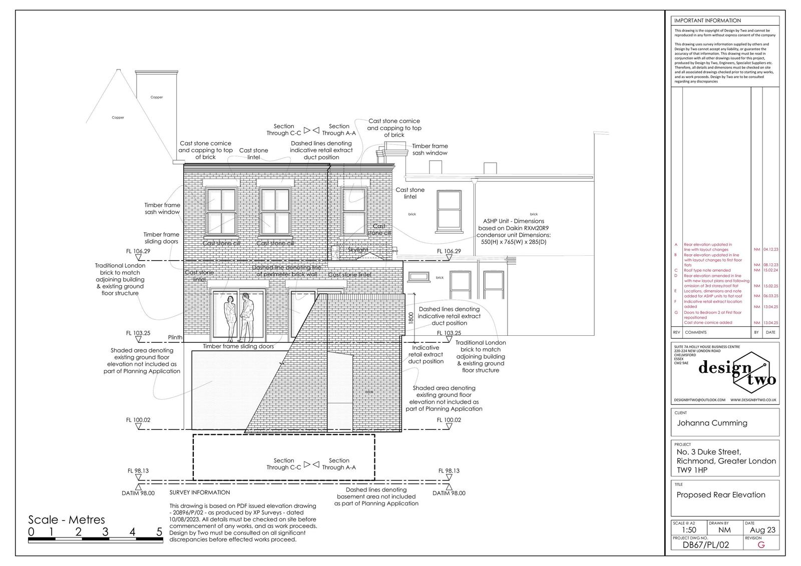
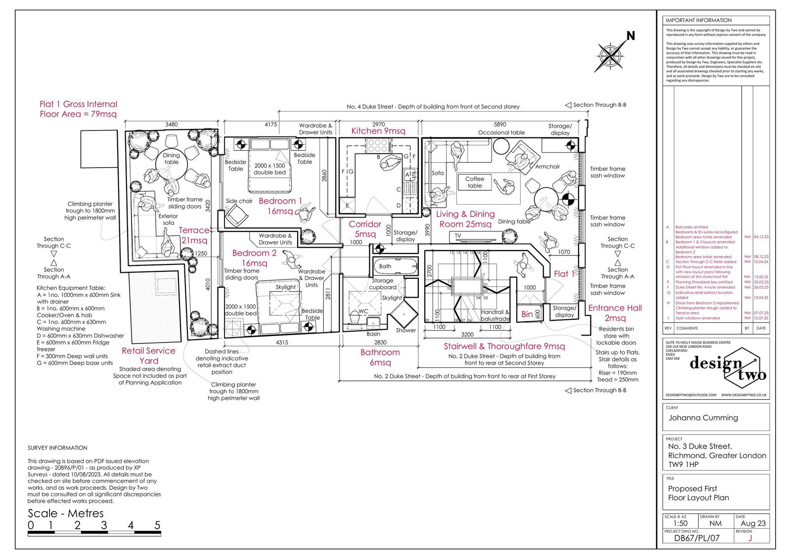
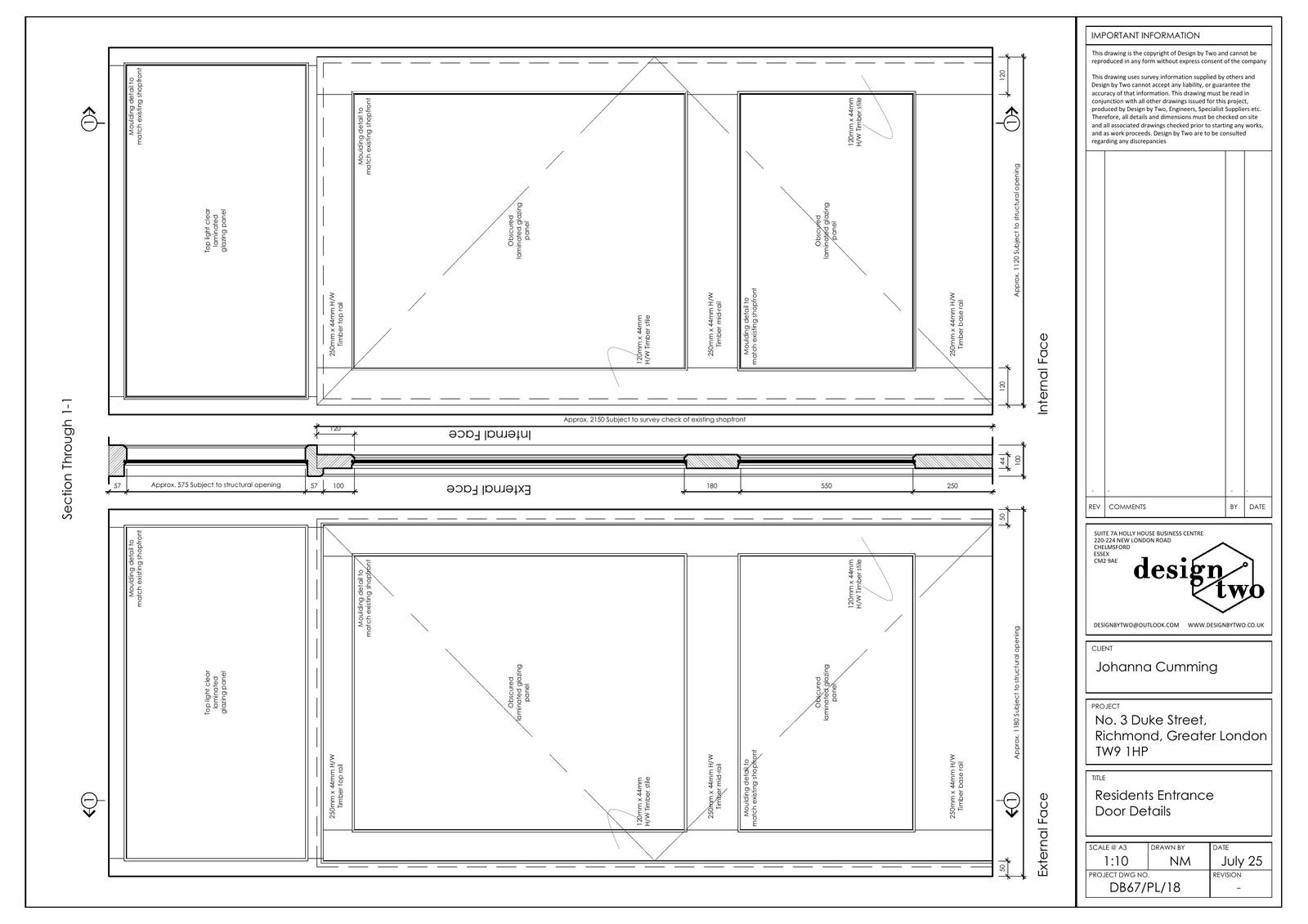
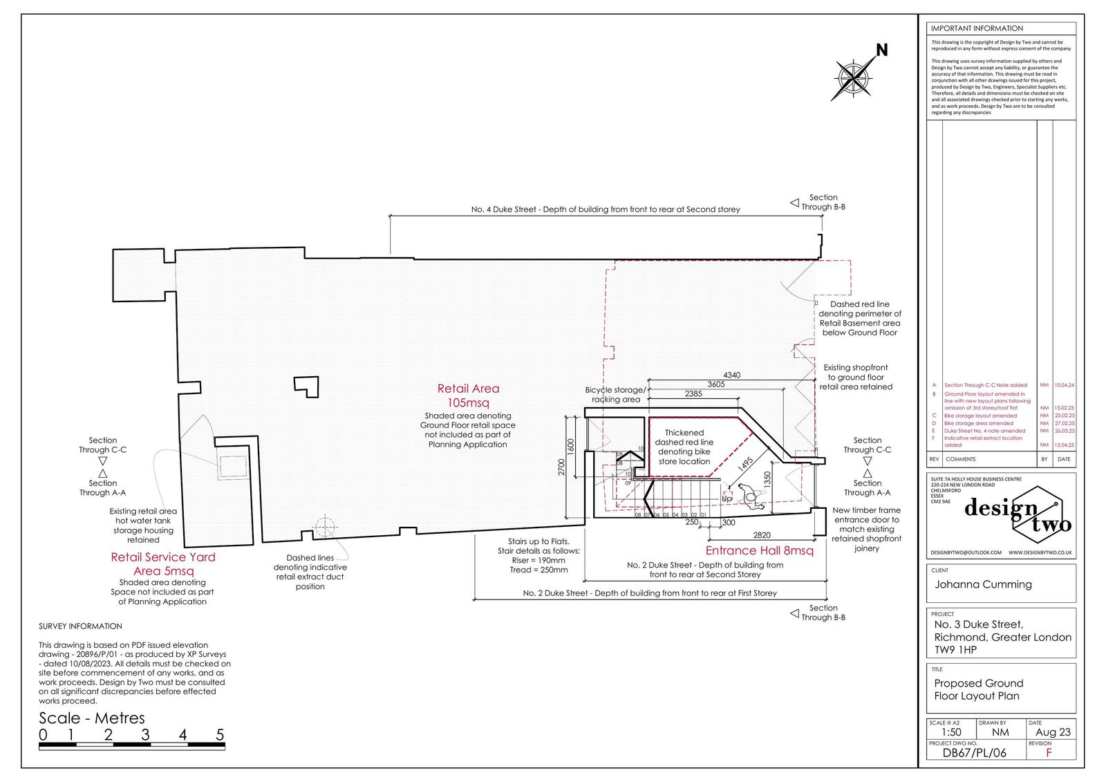
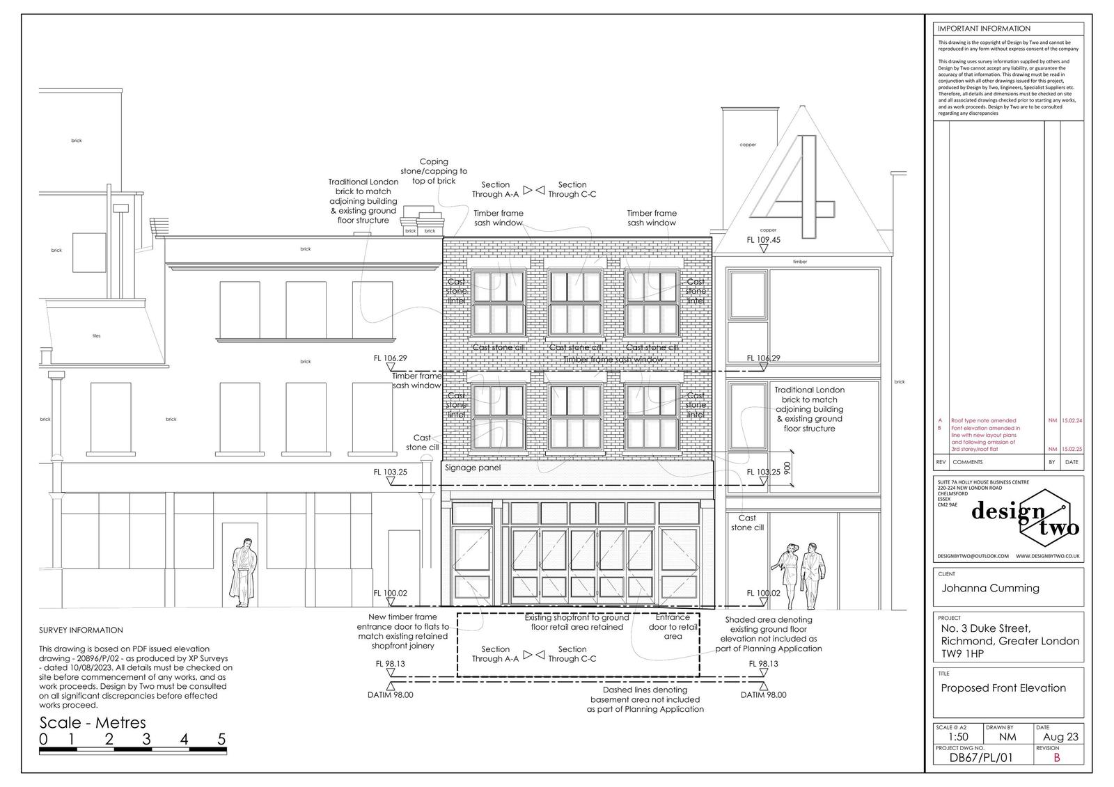
Two-storey upward extension creating two self-contained flats and a residential shop entrance.

Full proposal

Erection of two storey upwards extension to provide 2 self-contained flats, and associated works to create a residential entrance to the shopfront.

Documents

Public Comment - Object
Archived · Original link
Public Comment - Object
Archived · Original link
Public Comment - Object
Archived · Original link
Public Comment - Observation
Archived · Original link
Application Form - Redacted
Archived · Original link
Application Form
Archived · Original link
Submitted Drawing
Archived · Original link
Correspondence
Archived · Original link
Report
Archived · Original link
Report
Archived · Original link
Superseded Drawing
Archived · Original link
Revised Drawing
Archived · Original link
Submitted Drawing
Archived · Original link
Submitted Drawing
Archived · Original link
Submitted Drawing
Archived · Original link
Public Comment - Object
Archived · Original link
Report
Archived · Original link
Submitted Drawing
Archived · Original link
Submitted Drawing
Archived · Original link
Report
Archived · Original link
Superseded Drawing
Archived · Original link
Revised Drawing
Archived · Original link
Revised Drawing
Archived · Original link
Superseded Drawing
Archived · Original link
Superseded Drawing
Archived · Original link

Have your say

Your comment matters. Councils must consider every representation that raises material planning considerations.

Write a comment