← London Borough of Richmond upon Thames

Status

Pending Consideration New housing
Received
01 May 2025
New homes
2

Summary

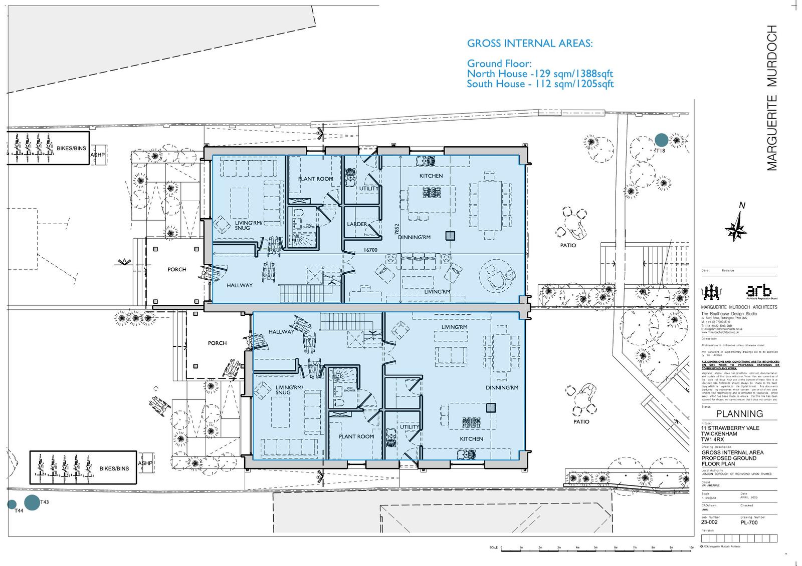
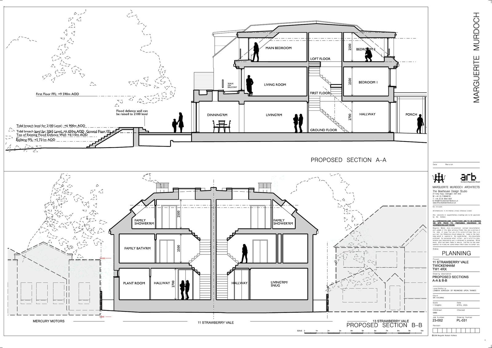
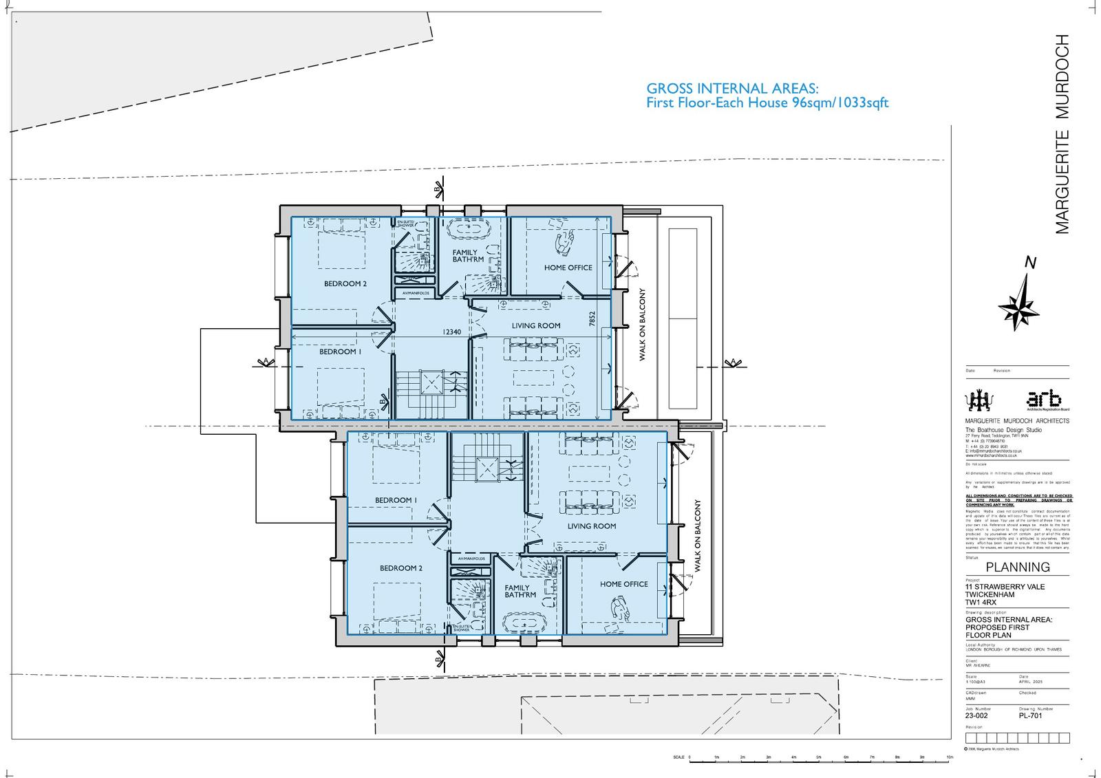
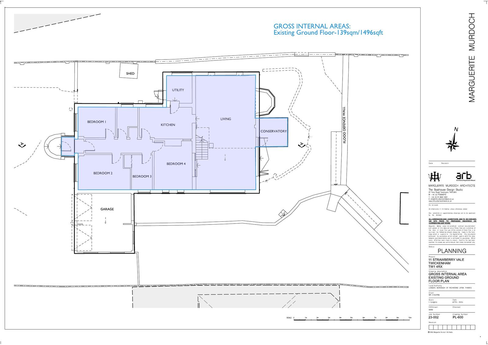
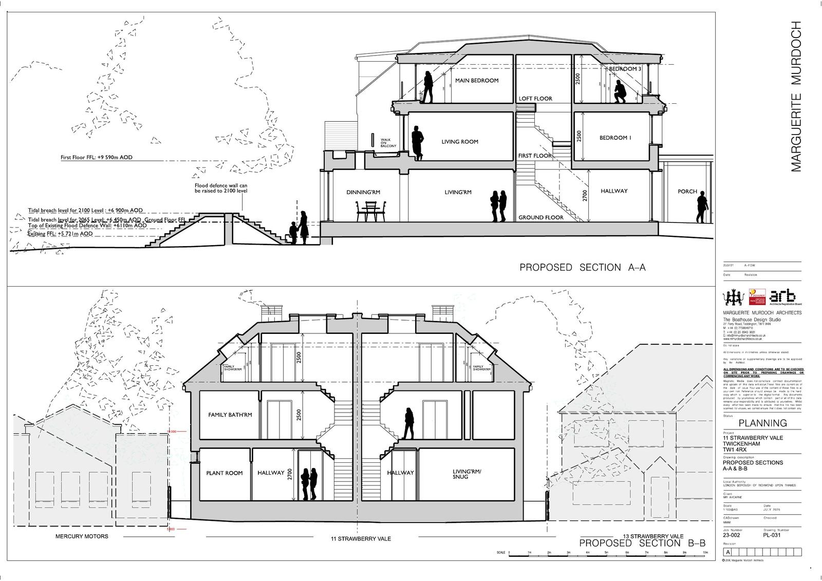
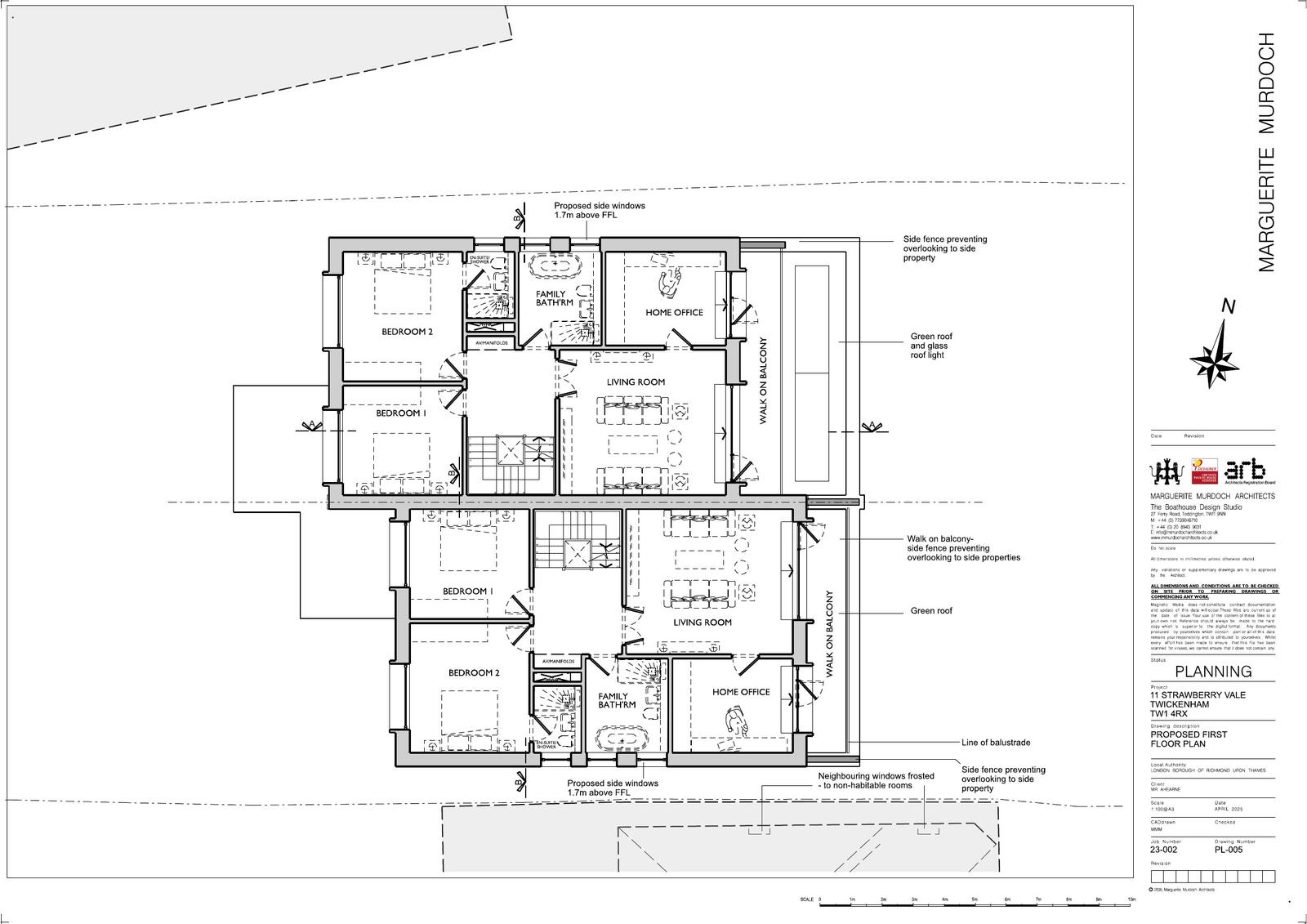
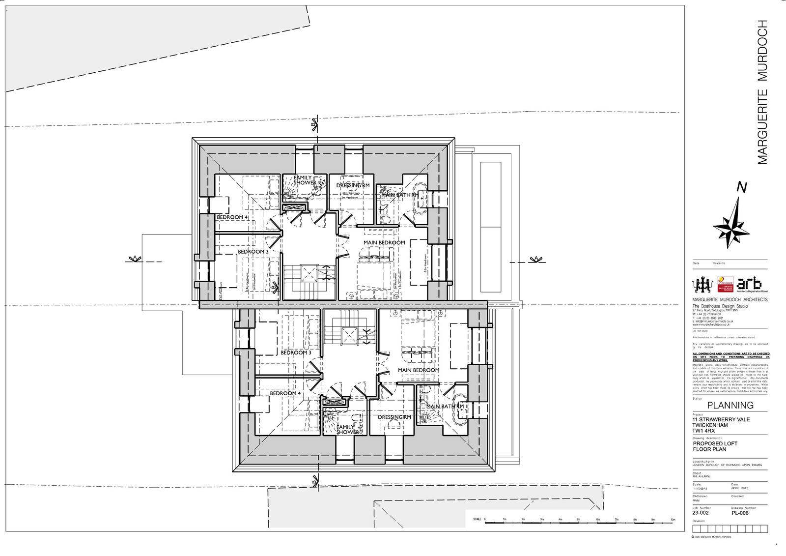
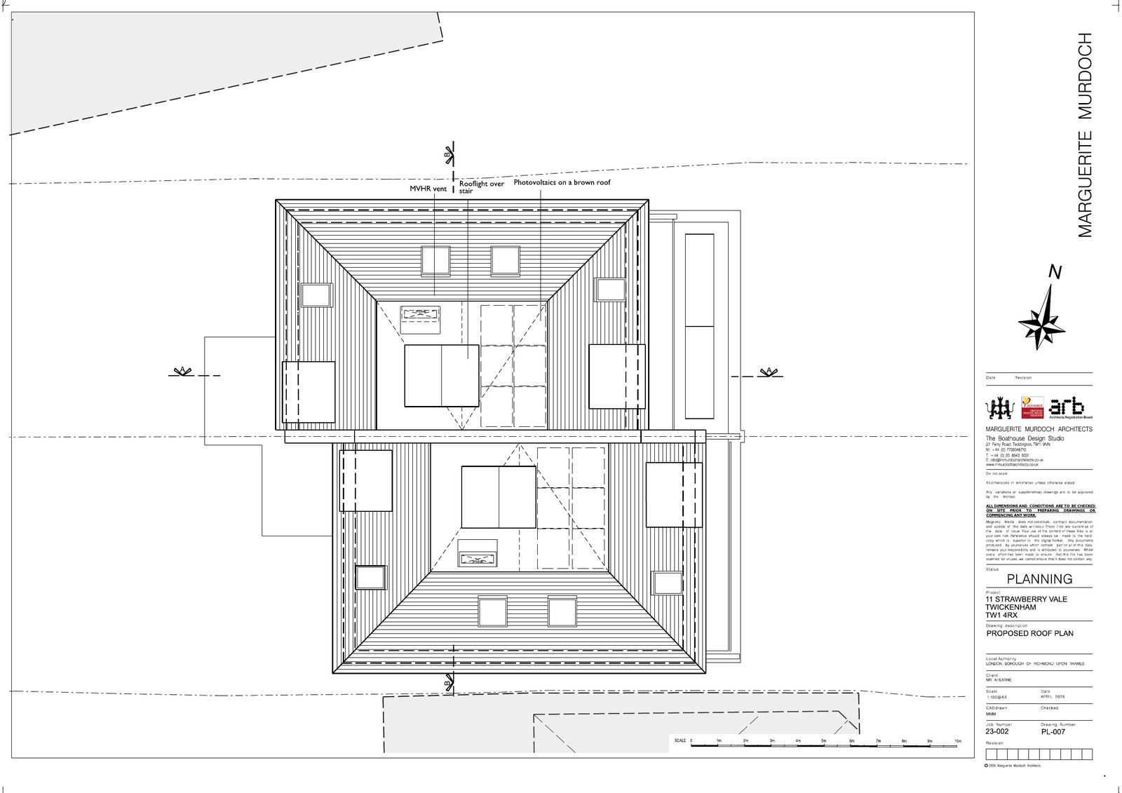
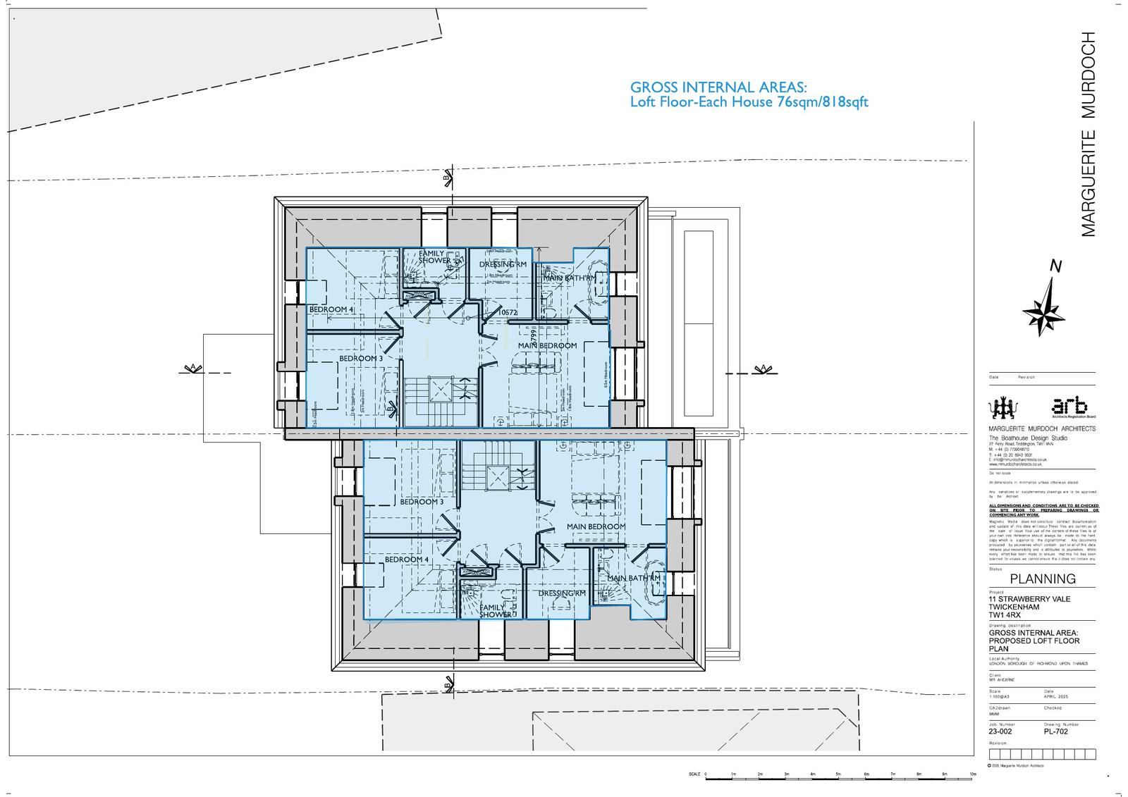
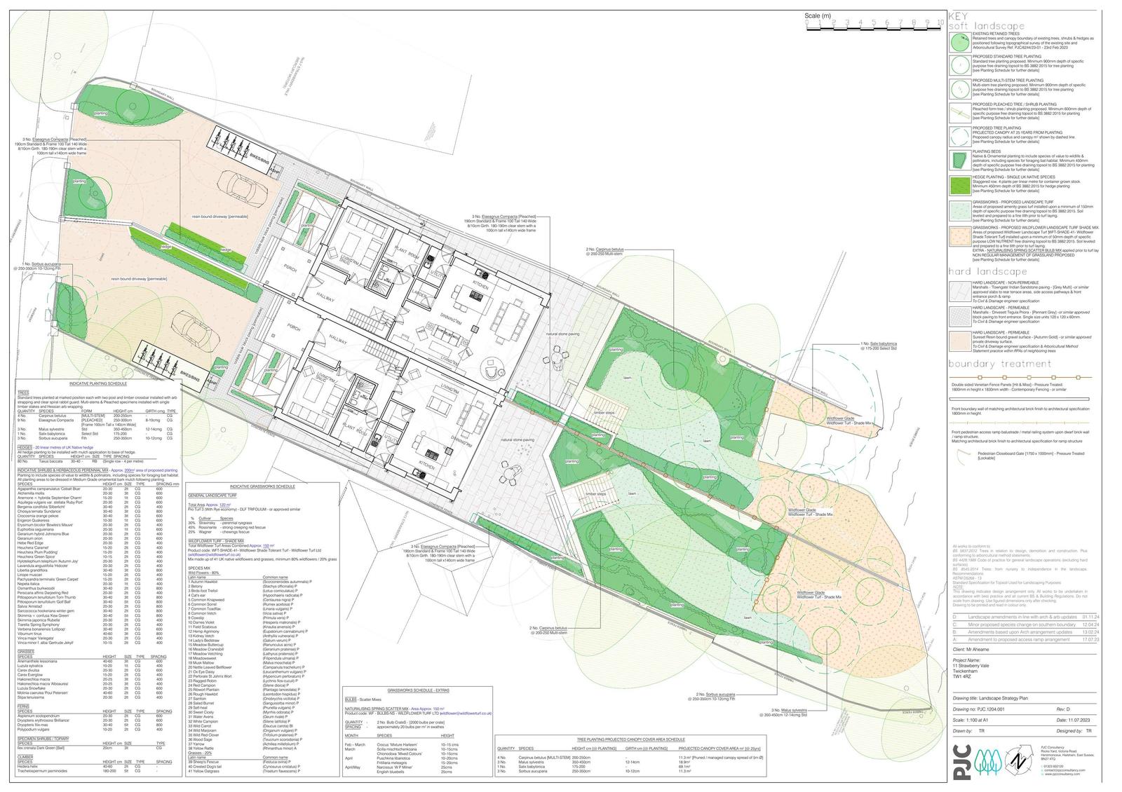
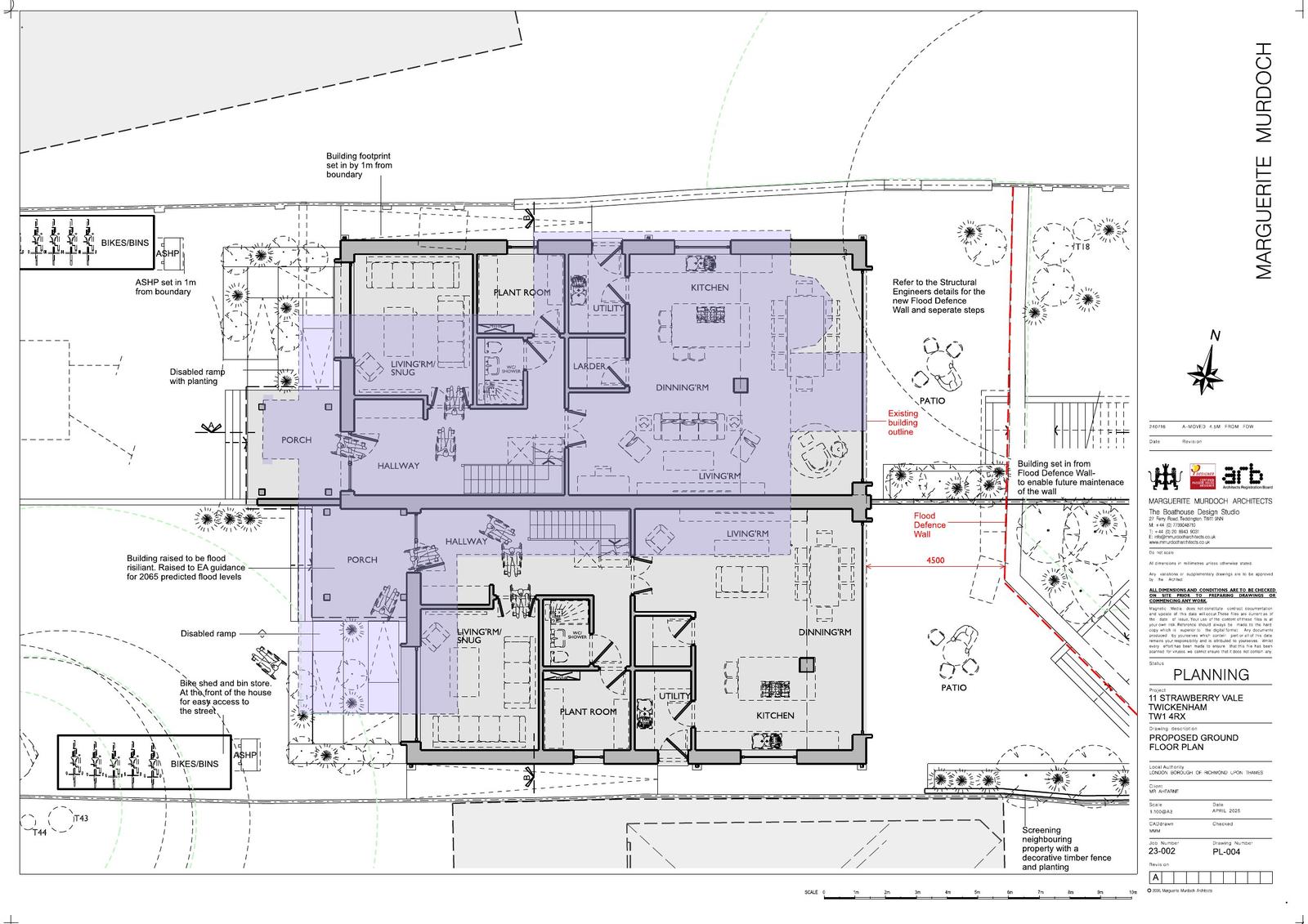
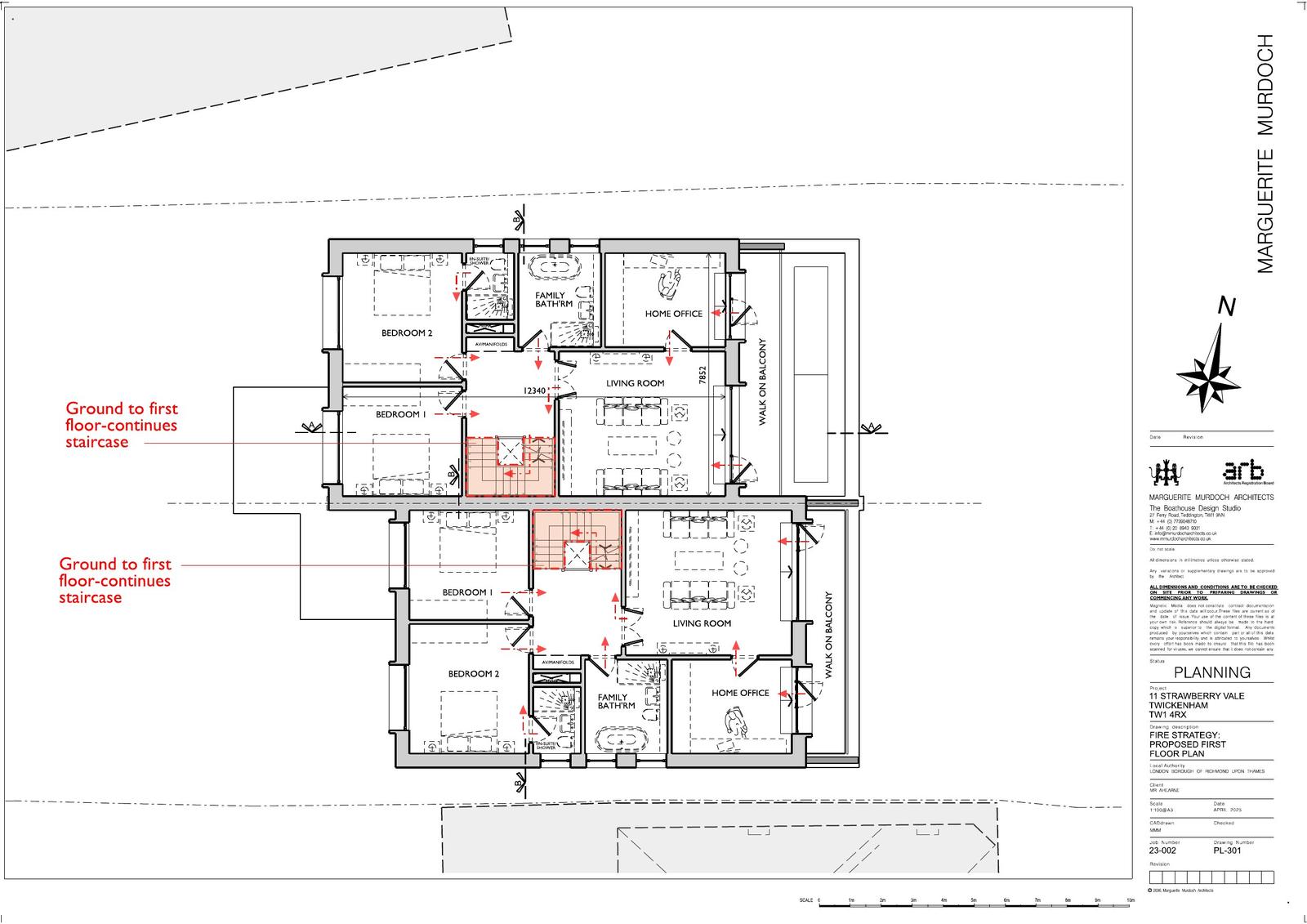
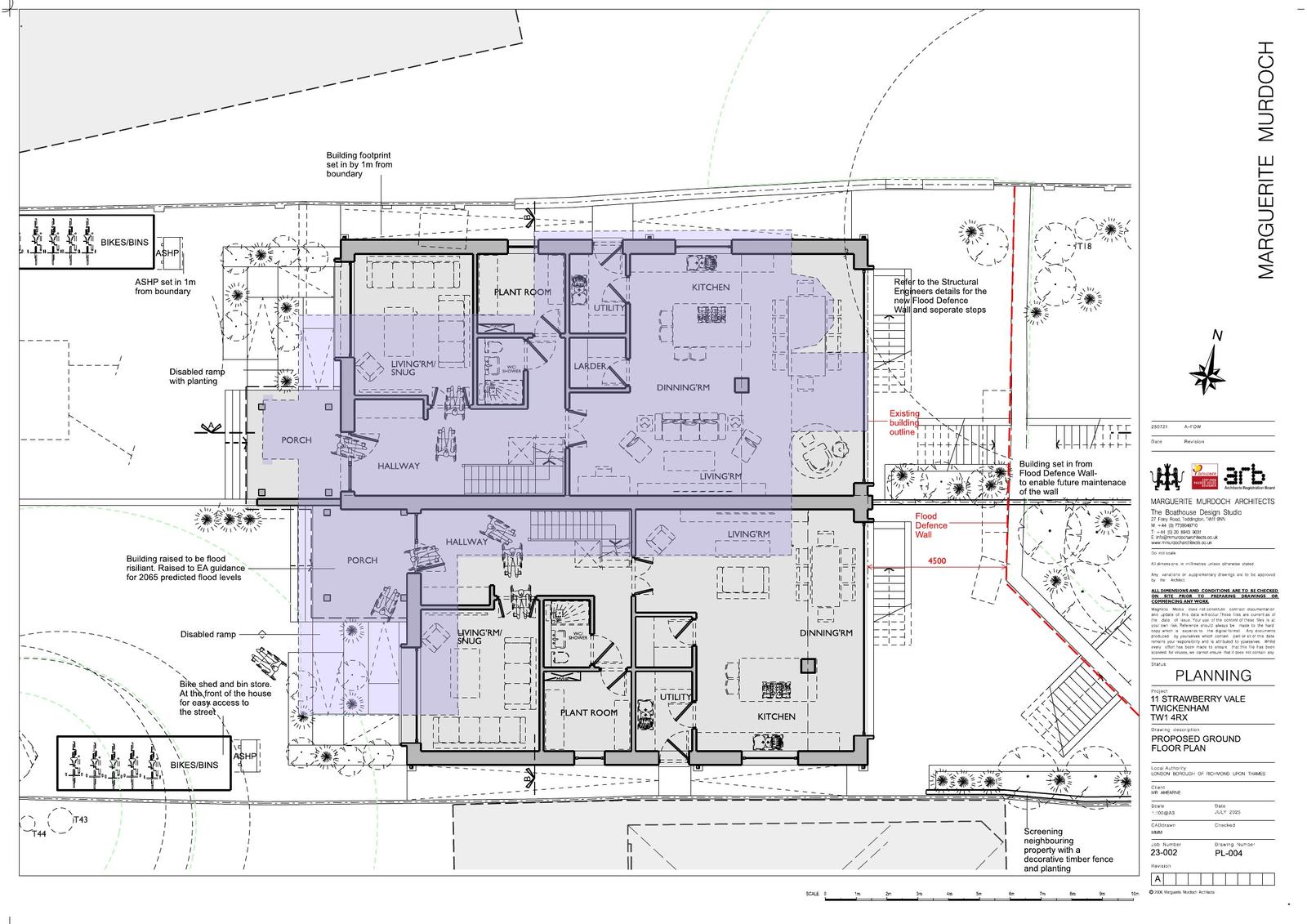
Redevelopment to erect two 2.5‑storey semi‑detached dwellings.

Full proposal

Demolition of existing dwelling and redevelopment of the site to erect 2no 2.5 storey semi-detached dwellings

Documents

Public Comment - Support
Archived · Original link
Affordable Housing Statement
Archived · Original link
Application Form - Redacted
Archived · Original link
Related Docs [Old System]
Archived · Original link
Specifications
Archived · Original link
Application Form
Archived · Original link
Correspondence
Archived · Original link
Submitted Drawing
Archived · Original link
Noise Impact Assessment
Archived · Original link
Open Space Assessment
Archived · Original link
Submitted Drawing
Archived · Original link
Submitted Drawing
Archived · Original link
Submitted Drawing
Archived · Original link
Superseded Drawing
Archived · Original link
Superseded Drawing
Archived · Original link
Submitted Drawing
Archived · Original link
Submitted Drawing
Archived · Original link
Superseded Drawing
Archived · Original link
Revised Drawing
Archived · Original link
Revised Drawing
Archived · Original link
Superseded Drawing
Archived · Original link
Submitted Drawing
Archived · Original link
Revised Drawing
Archived · Original link
Specifications
Archived · Original link

Have your say

Your comment matters. Councils must consider every representation that raises material planning considerations.

Write a comment