← London Borough of Richmond upon Thames
PA25/2563
London Borough of Richmond upon Thames
Status
Pending Consideration
House extension
Received
25 Jul 2025
New homes
0
Full proposal
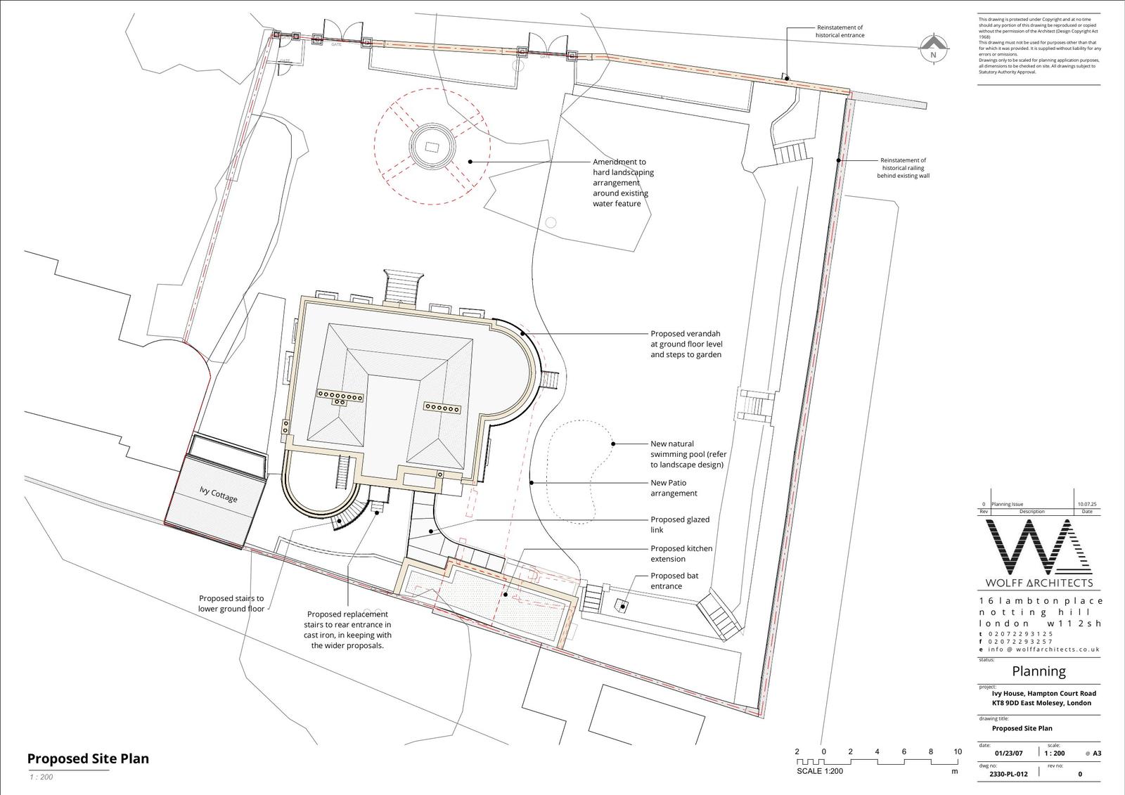
Demolition of an existing brick structure and the erection of a single-storey rear extension with glazed link, installation of external steps and veranda to east elevation, alterations to existing and proposed new windows, creation of a natural pool, installation of iron balustrade adjacent to the eastern boundary wall, installation of external uplights and alterations to front boundary wall.
Documents
Application Form - Without Personal Data
Application Form - Redacted
Not yet archived
· Original link
TREE PROTECTION PLAN - CONSTRUCTION=RCG - IH - TPPC=REV=A
Submitted Drawing
Not yet archived
· Original link
TREE PROTECTION PLAN - DEMOLITION=RCG - IH - TPPD=REV=A
Submitted Drawing
Not yet archived
· Original link
TREE PROTECTION PLAN - TRIAL EXCAVATIONS=RCG - IH - TPPD=REV=A
Superseded Drawing
Not yet archived
· Original link
Have your say
Your comment matters. Councils must consider every representation that raises material planning considerations.