← London Borough of Richmond upon Thames

Status

Pending Consideration House extension
Received
11 Dec 2025
New homes
0

Full proposal

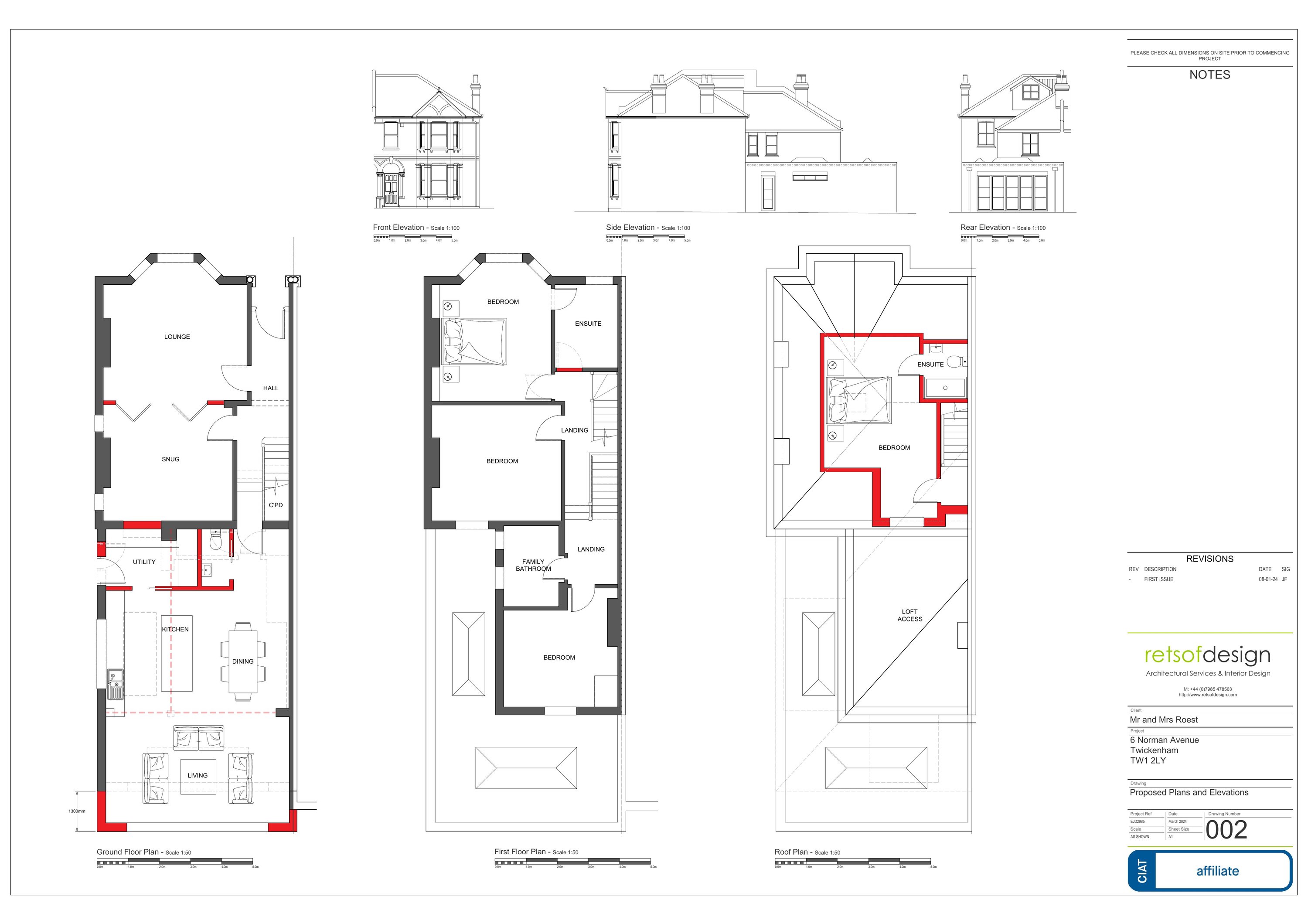
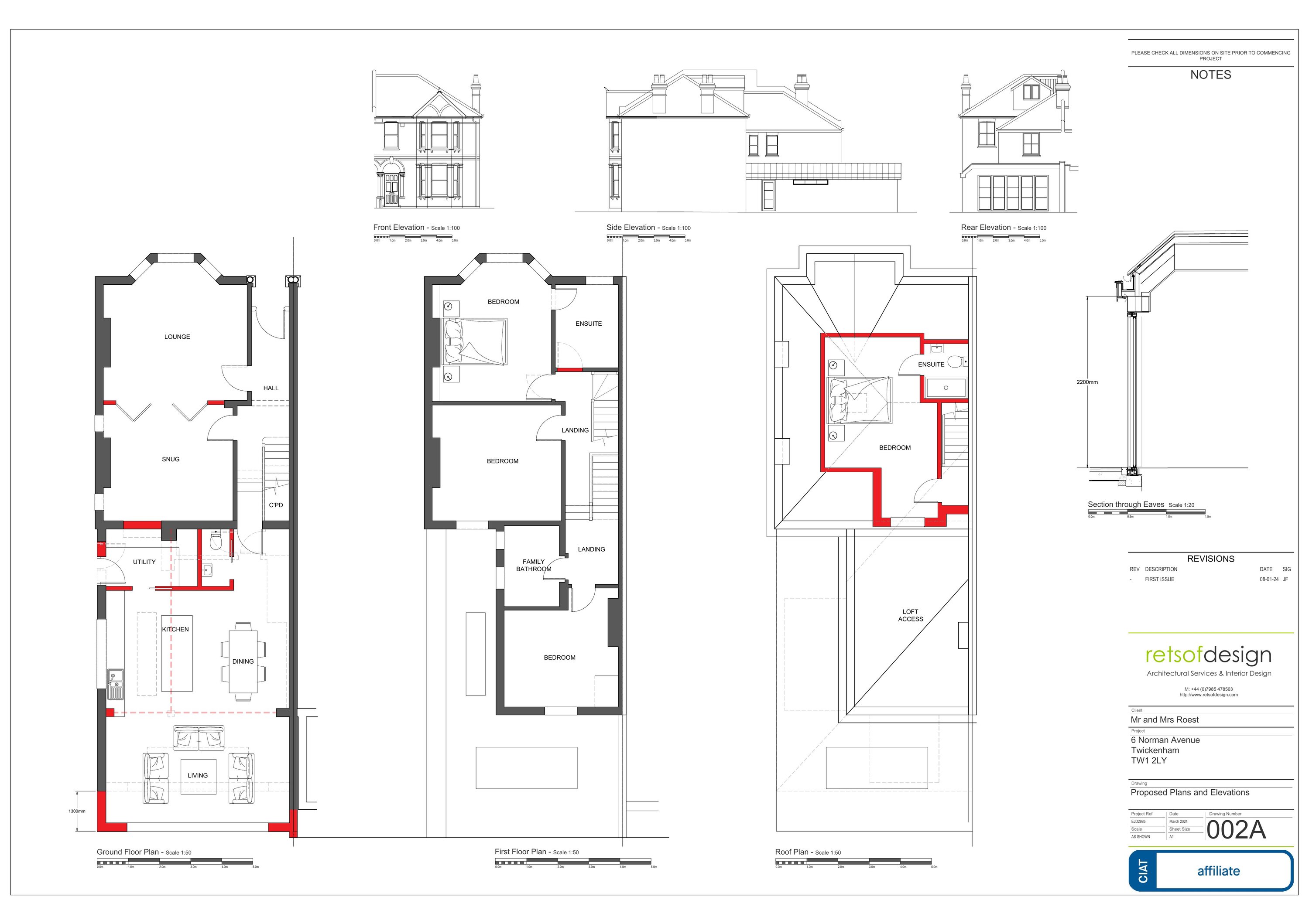
Erection of a replacement single storey rear infill extension and creation of a rear dormer roof extension

Documents

4 Norman Avenue
Public Comment - Object
Not yet archived · Original link
8 Norman Avenue
Public Comment - Object
Not yet archived · Original link
8 Norman Avenue L & D Piachaud
Public Comment - Object
Not yet archived · Original link
Application Form - Without Personal Data
Application Form - Redacted
Not yet archived · Original link
CIL FORM
Community Infrastructure Levy Form
Not yet archived · Original link
Superseded Drawing
Archived · Original link
Existing Floor Plans & Elevations 001
Submitted Drawing
Not yet archived · Original link
Fire Safety Statement
Report
Not yet archived · Original link
Location plan
Submitted Drawing
Not yet archived · Original link
Superseded Drawing
Archived · Original link

Have your say

Your comment matters. Councils must consider every representation that raises material planning considerations.

Write a comment