← London Borough of Richmond upon Thames

Status

Pending Consideration House extension
Received
11 Dec 2025
New homes
0

Full proposal

Erection of a lower ground floor rear extension with an external terrace above, reinstatement of a two storey infill extension to the front, other alterations to the property including repairs to chimneys, reinstatement of the original roof form and alterations to the rear garden.

Documents

2 The Hermitage
Public Comment - Object
Not yet archived · Original link
3 The Hermitage
Public Comment - Object
Not yet archived · Original link
3 The Hermitage
Public Comment - Observation
Not yet archived · Original link
4 The Hermitage
Public Comment - Observation
Not yet archived · Original link
4 The Hermitage
Public Comment - Observation
Not yet archived · Original link
Application Form - Without Personal Data
Application Form - Redacted
Not yet archived · Original link
Arboricultural Impact Assessment
Report
Not yet archived · Original link
Archaeological Desk Based Assessment
Report
Not yet archived · Original link
Basement Impact Assessment
Report
Not yet archived · Original link
Bat Prescence Likely Absence Report
Report
Not yet archived · Original link
Biodiversity net gain statement
Report
Not yet archived · Original link
Brick Cleaning Method Statement
Submitted Drawing
Not yet archived · Original link
CIL FORM
Community Infrastructure Levy Form
Not yet archived · Original link
Construction Management Plan
Report
Not yet archived · Original link
Demolition Plans
Submitted Drawing
Not yet archived · Original link
Design and access statement
Report
Not yet archived · Original link
Existing and Proposed Lower Ground Floor Levels
Submitted Drawing
Not yet archived · Original link
Existing and Proposed Upper Ground Floor Build Up
Submitted Drawing
Not yet archived · Original link
Existing Elevations
Submitted Drawing
Not yet archived · Original link
Existing Plans
Submitted Drawing
Not yet archived · Original link
Submitted Drawing
Archived · Original link
Fire Safety Statement
Report
Not yet archived · Original link
Flood risk assessment
Report
Not yet archived · Original link
Geotechnical Report
Report
Not yet archived · Original link
Glasshouse Elevation
Submitted Drawing
Not yet archived · Original link
Heritage Statement
Report
Not yet archived · Original link
Internal Elevations
Submitted Drawing
Not yet archived · Original link
Landscape Layout Plan
Superseded Drawing
Not yet archived · Original link
Landscape Lighting Plan
Submitted Drawing
Not yet archived · Original link
Preliminary Bat Roost Appraisal Report
Report
Not yet archived · Original link
Proposed Elevations
Superseded Drawing
Not yet archived · Original link
Proposed Elevations REV B
Submitted Drawing
Not yet archived · Original link
PROPOSED FIRST FLOOR PLAN
Superseded Drawing
Not yet archived · Original link
Superseded Drawing
Archived · Original link
Proposed Lower Ground Floor Build Up
Submitted Drawing
Not yet archived · Original link
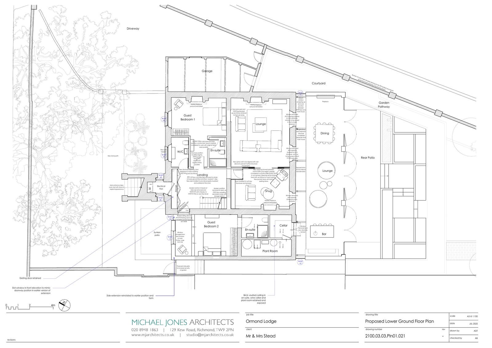
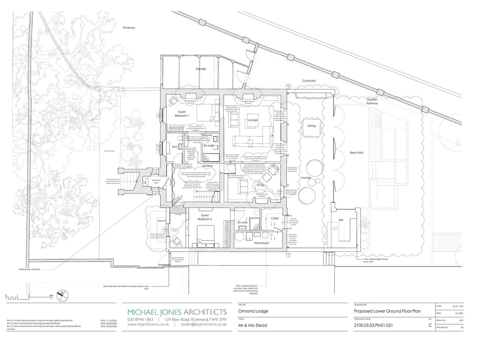
Proposed Lower Ground Floor Plan
Submitted Drawing
Not yet archived · Original link
PROPOSED LOWER GROUND FLOOR PLAN
Superseded Drawing
Not yet archived · Original link
Superseded Drawing
Archived · Original link
Submitted Drawing
Archived · Original link
PROPOSED ROOF PLAN
Superseded Drawing
Not yet archived · Original link
Proposed Section through Main Roof
Submitted Drawing
Not yet archived · Original link
Proposed Section through Patten Alley
Submitted Drawing
Not yet archived · Original link
Superseded Drawing
Archived · Original link
PROPOSED UPPER GROUND FLOOR PLAN
Superseded Drawing
Not yet archived · Original link
Proposed Windows W02
Submitted Drawing
Not yet archived · Original link
Schedule of Works to Listed Building
Report
Not yet archived · Original link
Submitted Drawing
Archived · Original link
Structural Impact Assessment
Report
Not yet archived · Original link
SuDS Strategy
Report
Not yet archived · Original link
Window Refurbishment Method Statement
Submitted Drawing
Not yet archived · Original link

Have your say

Your comment matters. Councils must consider every representation that raises material planning considerations.

Write a comment