← London Borough of Richmond upon Thames

Status

Pending Consideration House extension
Received
22 Jan 2026
New homes
0

Full proposal

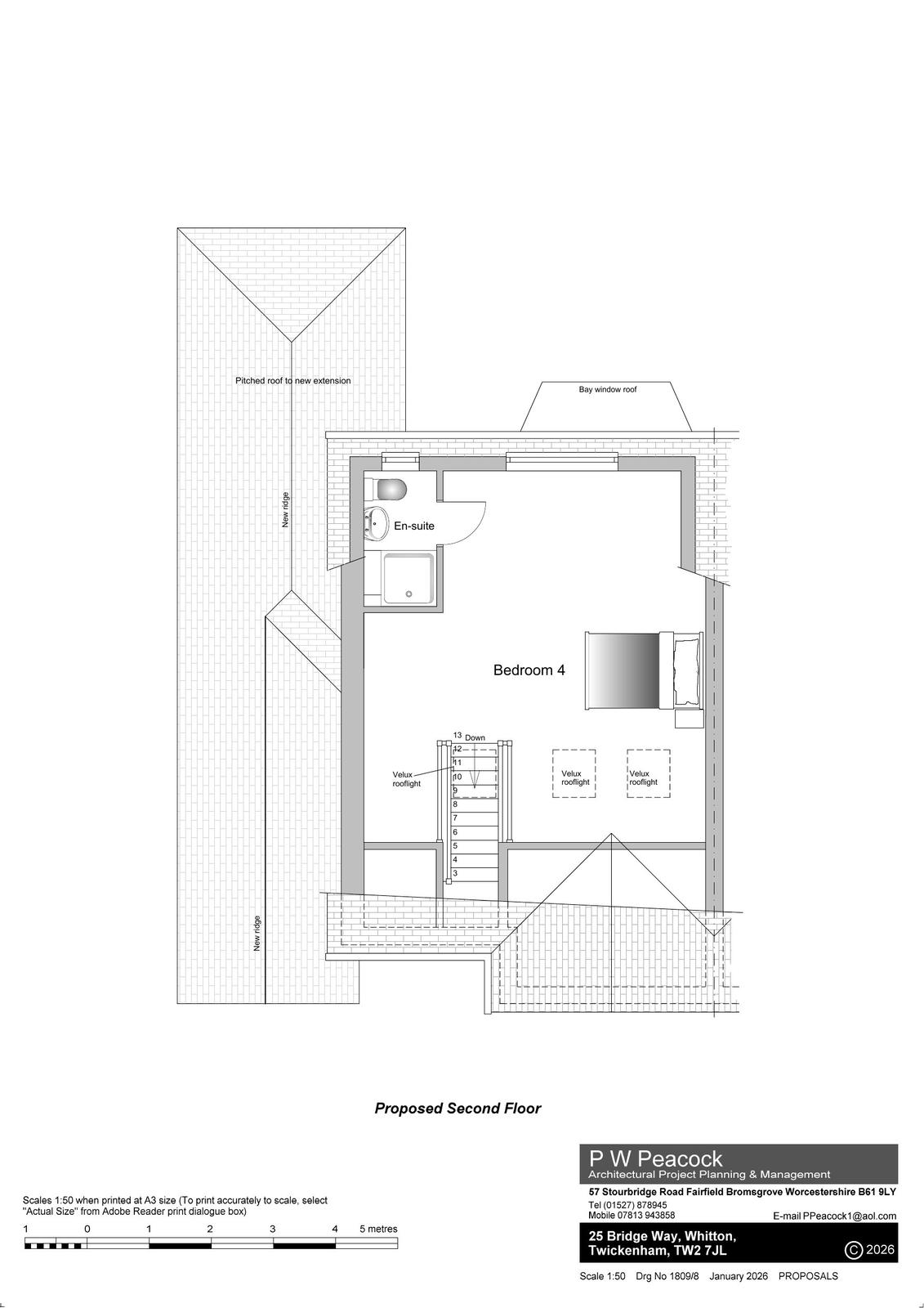
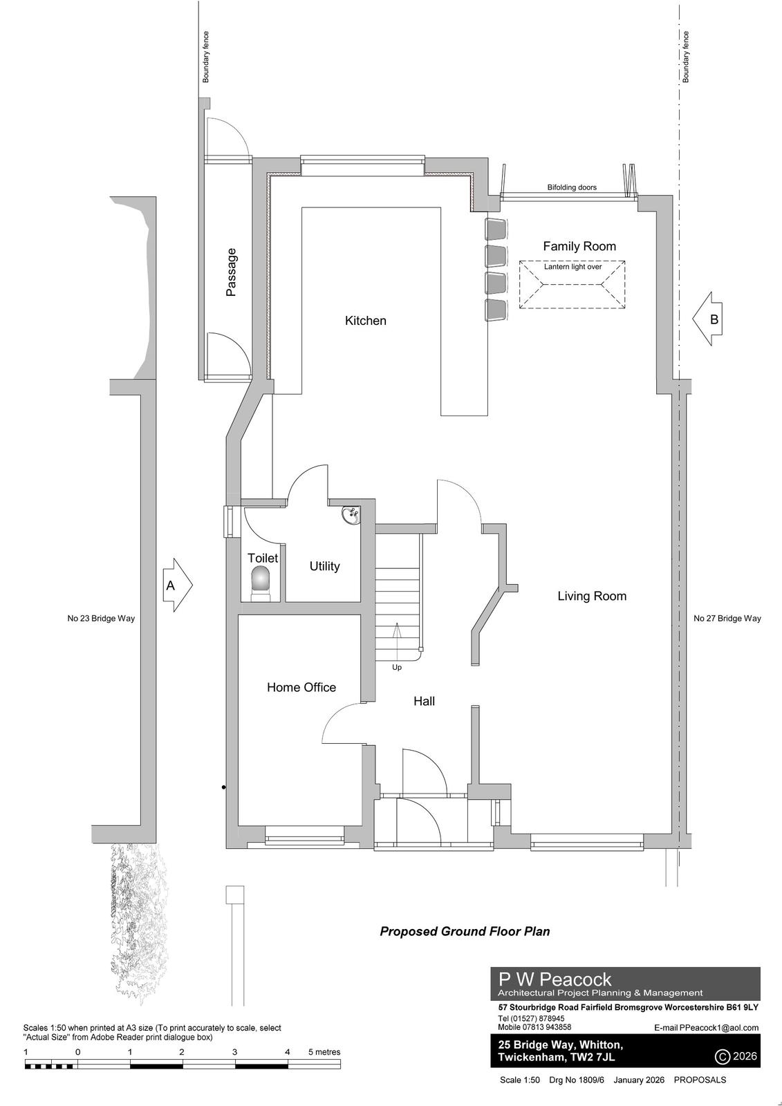
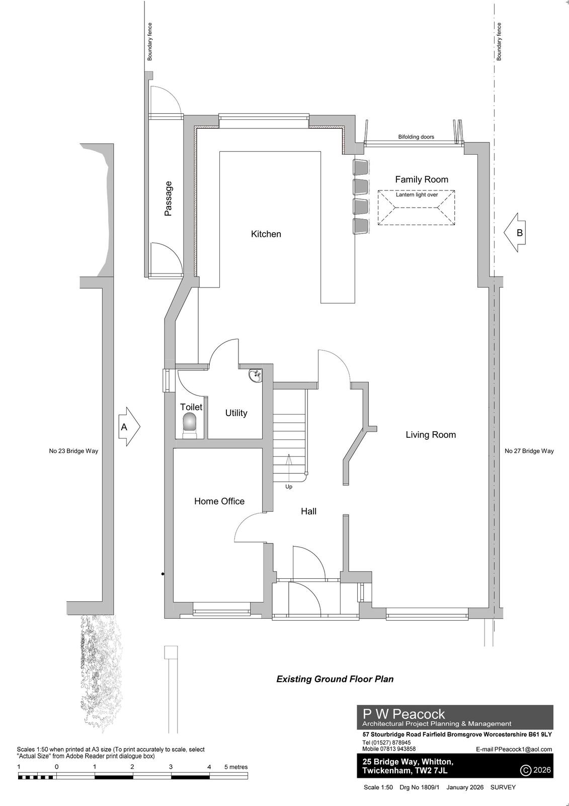
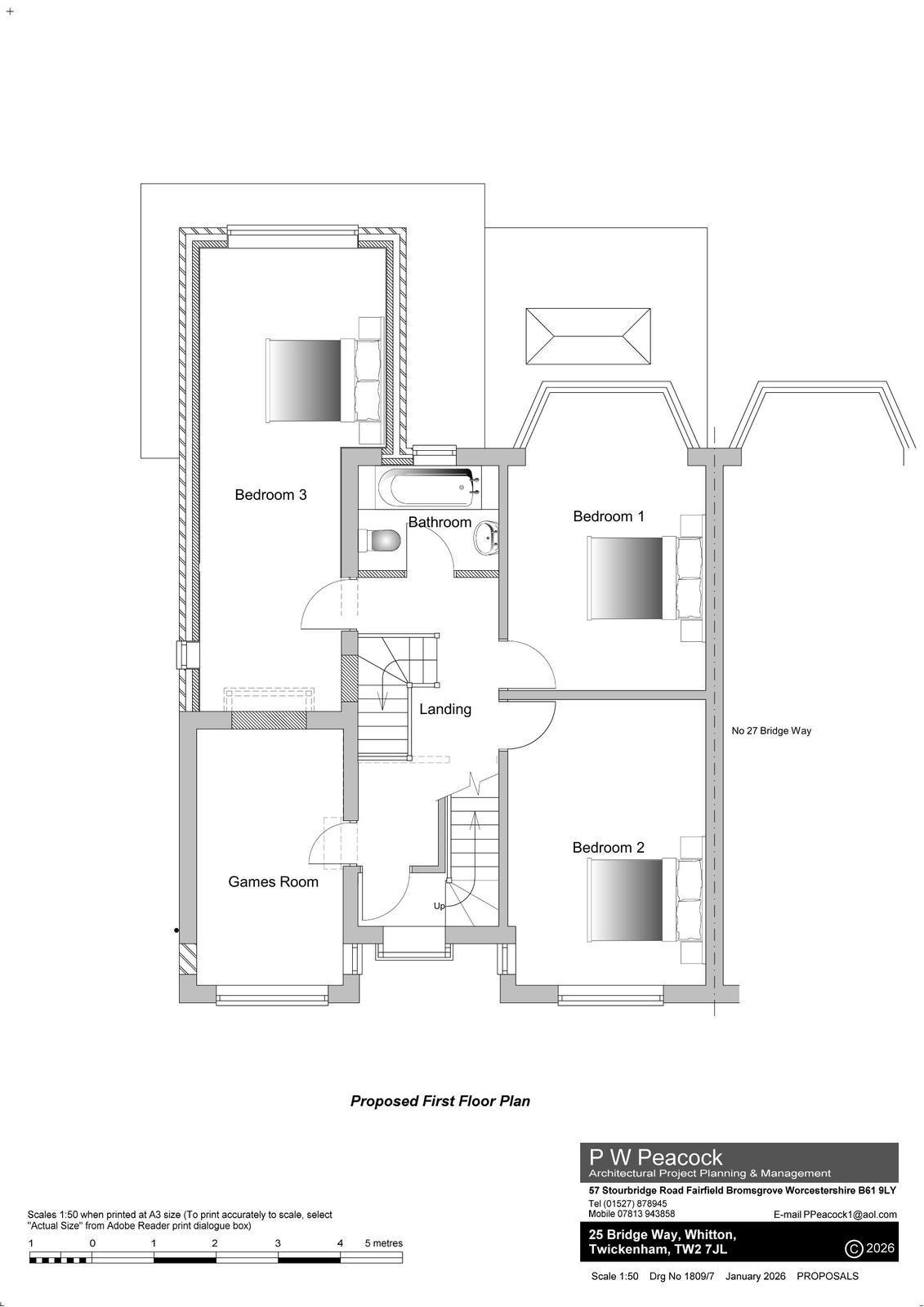
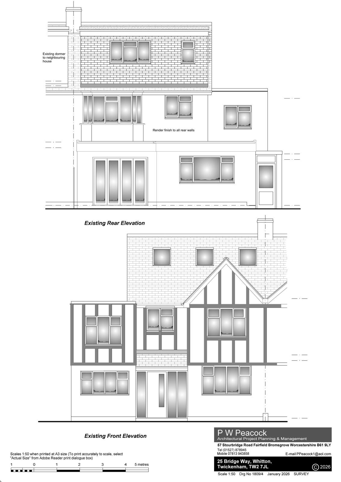
Construction of pitched roof first floor rear/side extension and replacement of an existing flat roof with a new pitched roof.

Documents

Application Form - Redacted
Archived · Original link
Community Infrastructure Levy Form
Archived · Original link
Report
Archived · Original link
Submitted Drawing
Archived · Original link
Submitted Drawing
Archived · Original link
Submitted Drawing
Archived · Original link
Submitted Drawing
Archived · Original link
Submitted Drawing
Archived · Original link
Report
Archived · Original link
Report
Archived · Original link
Submitted Drawing
Archived · Original link
Report
Archived · Original link
Submitted Drawing
Archived · Original link
Submitted Drawing
Archived · Original link
Submitted Drawing
Archived · Original link
Submitted Drawing
Archived · Original link
Submitted Drawing
Archived · Original link
Submitted Drawing
Archived · Original link

Have your say

Your comment matters. Councils must consider every representation that raises material planning considerations.

Write a comment