← London Borough of Richmond upon Thames

Status

Pending Consideration House extension
Received
02 Feb 2026
New homes
0

Full proposal

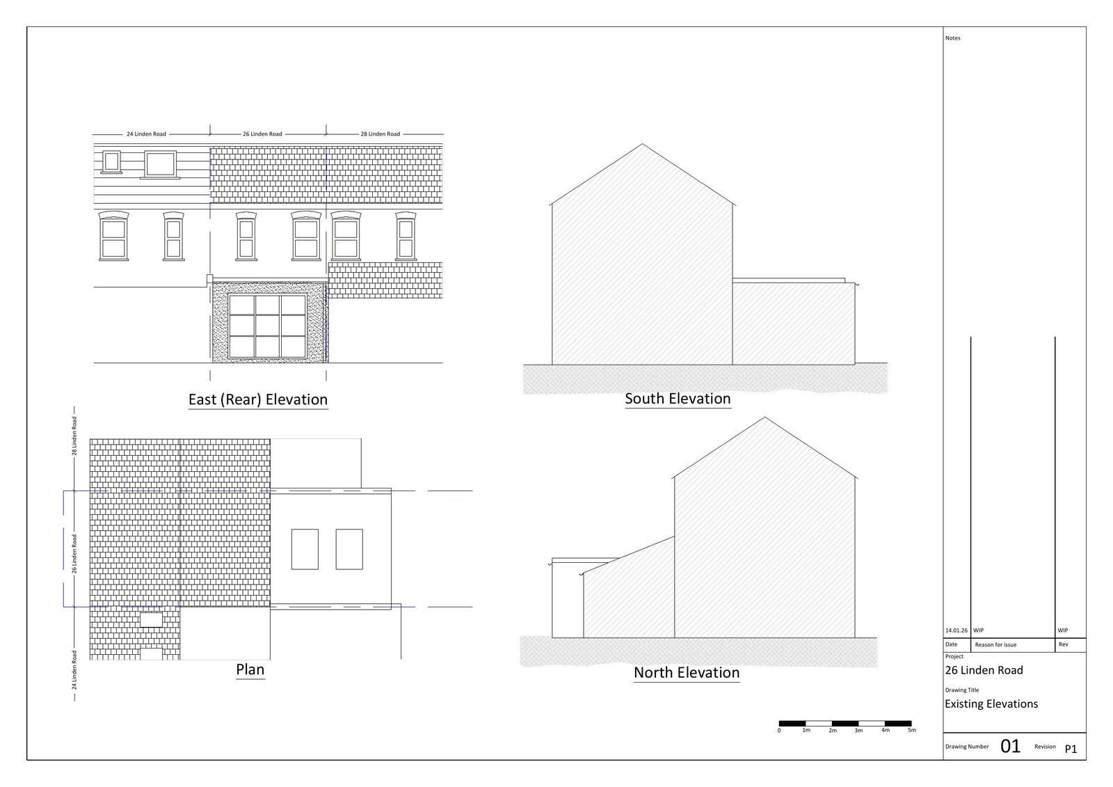
Creation of rear dormer within existing pitched roof for loft conversion and roof lights to the front roof slope.

Documents

Application Form - Redacted
Archived · Original link
Application Form
Archived · Original link
Submitted Drawing
Archived · Original link
Submitted Drawing
Archived · Original link
Submitted Drawing
Archived · Original link

Have your say

Your comment matters. Councils must consider every representation that raises material planning considerations.

Write a comment