← London Borough of Richmond upon Thames

Status

Pending Consideration House extension
Received
03 Feb 2026
New homes
0

Full proposal

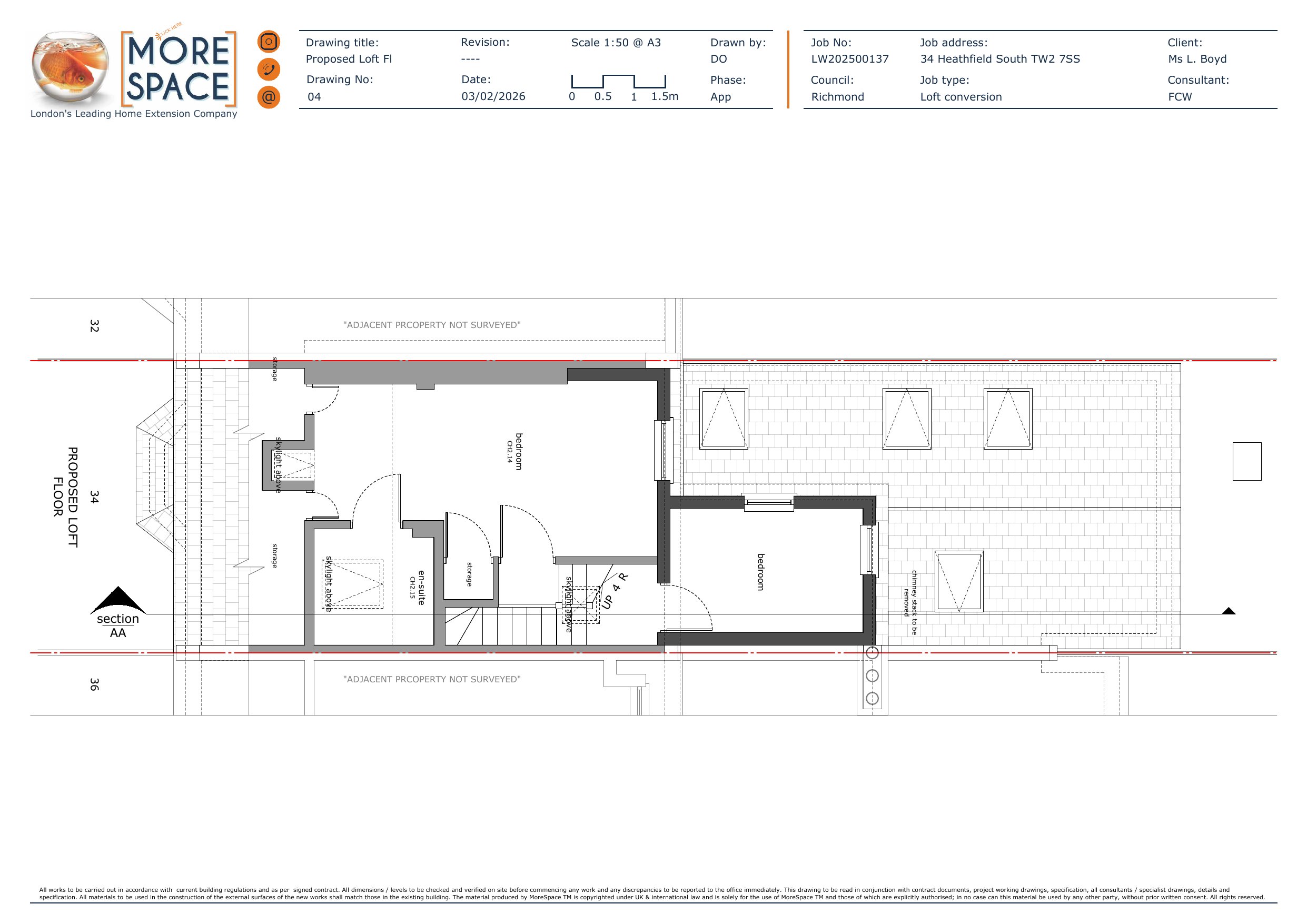
A proposed dormer loft conversion over the existing rear roof

Documents

Application Form - Redacted
Archived · Original link
Application Form
Archived · Original link
Submitted Drawing
Archived · Original link
Report
Archived · Original link
Submitted Drawing
Archived · Original link
Submitted Drawing
Archived · Original link
Submitted Drawing
Archived · Original link
Submitted Drawing
Archived · Original link
Submitted Drawing
Archived · Original link
Submitted Drawing
Archived · Original link
Submitted Drawing
Archived · Original link

Have your say

Your comment matters. Councils must consider every representation that raises material planning considerations.

Write a comment