← London Borough of Richmond upon Thames

Status

Pending Consideration House extension
Received
05 Feb 2026
New homes
0

Full proposal

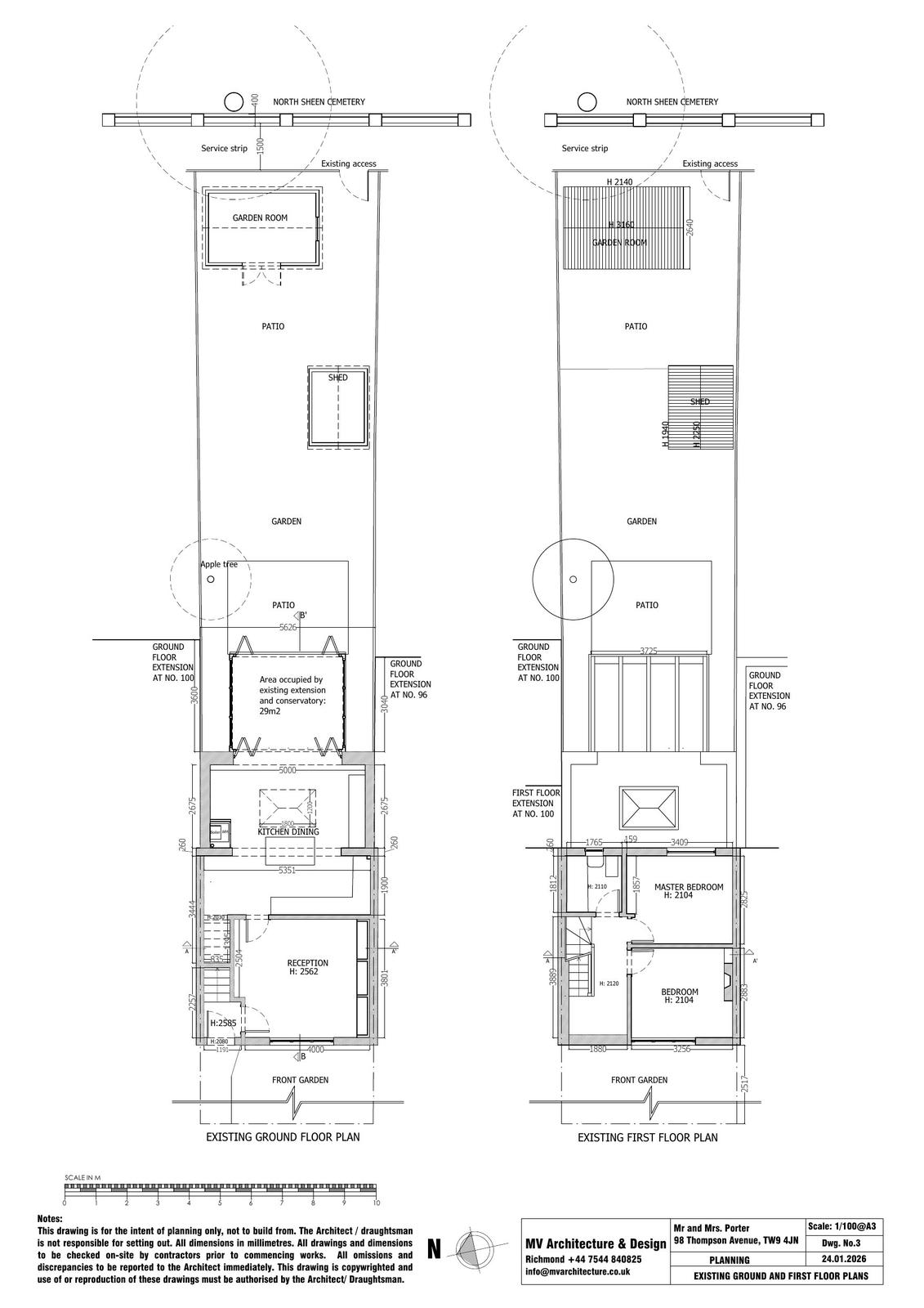
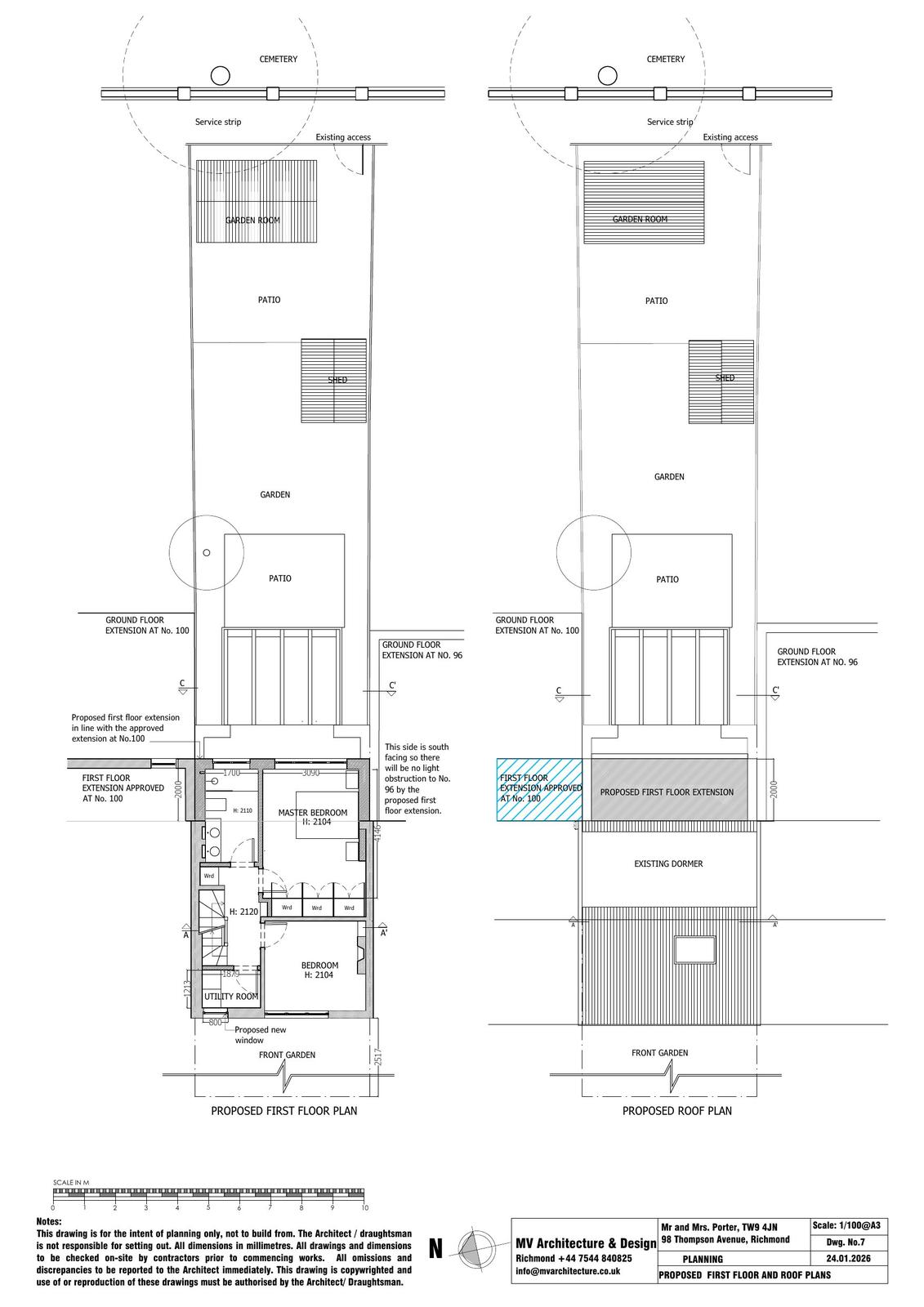
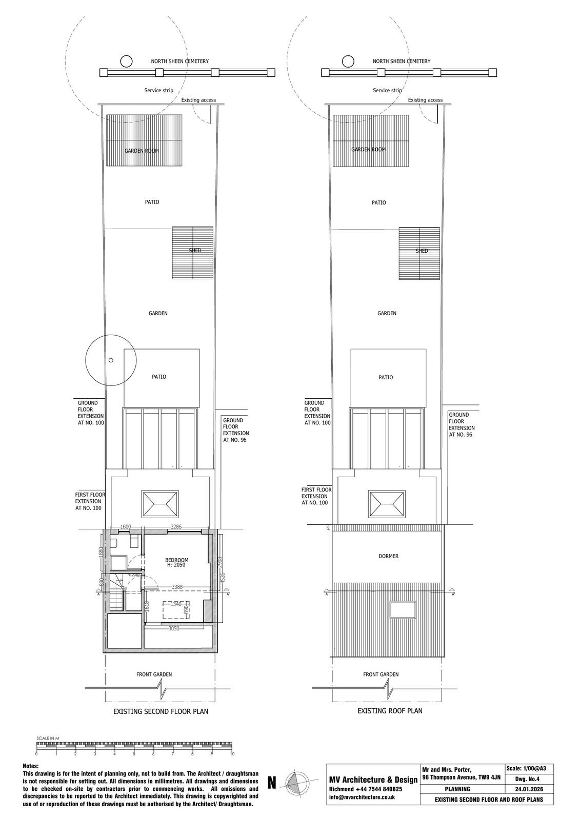
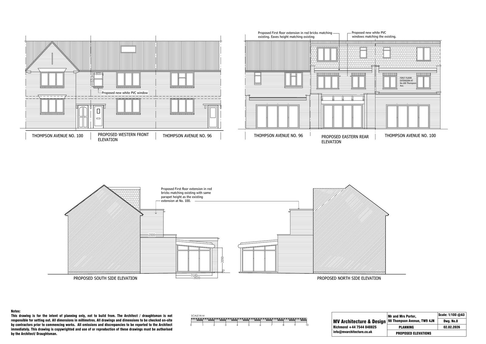
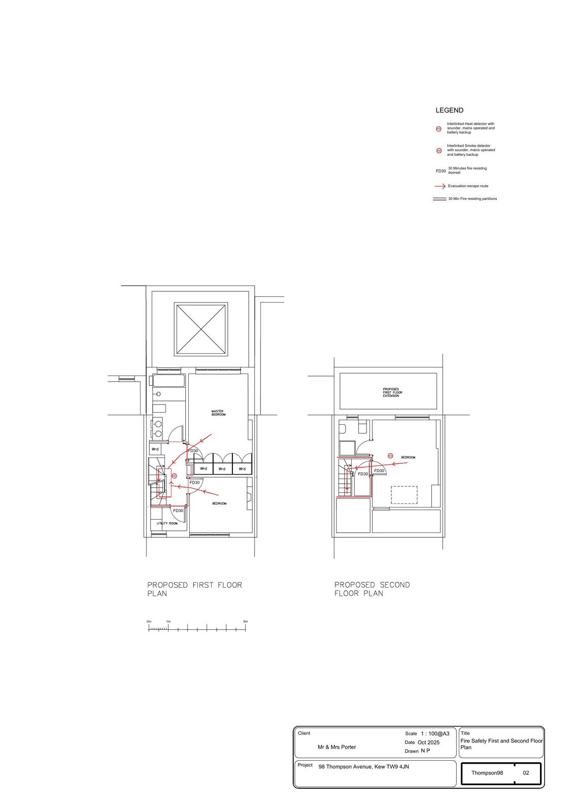
First-floor rear extension with a flat roof, extending 2m from the existing rear wall, with the eaves height matching the existing first floor level. External materials—including red brickwork, window frames, and roof finishes—will match those of the existing dwelling to maintain continuity within the terrace. A new small window is also proposed on the front elevation, consistent in material, colour, and proportion with the existing fenestration.

Documents

Public Comment - Object
Archived · Original link
Application Form - Redacted
Archived · Original link
Community Infrastructure Levy Form
Archived · Original link
Correspondence
Archived · Original link
Submitted Drawing
Archived · Original link
Submitted Drawing
Archived · Original link
Submitted Drawing
Archived · Original link
Submitted Drawing
Archived · Original link
Submitted Drawing
Archived · Original link
Submitted Drawing
Archived · Original link
Report
Archived · Original link
Submitted Drawing
Archived · Original link
Submitted Drawing
Archived · Original link
Submitted Drawing
Archived · Original link
Submitted Drawing
Archived · Original link
Submitted Drawing
Archived · Original link

Have your say

Your comment matters. Councils must consider every representation that raises material planning considerations.

Write a comment